direct naar inhoud van Ruimtelijke onderbouwing
Plan: Achter de Beek ong., Beek
Status: ontwerp
Plantype: omgevingsvergunning
IMRO-idn: NL.IMRO.0888.PBACHTERDEBEEK-ON02

Ruimtelijke onderbouwing

Hoofdstuk 1 Inleiding

1.1 Aanleiding

Ter plaatse van een open plek in de bebouwing aan de straat Achter de Beek te Beek bestaat het voornemen een vrijstaande levensloopbestendige woning op te richten. De betreffende locatie maakt onderdeel uit van de tuin behorend bij de westelijk gelegen woning aan Achter de Beek 5. Het perceel behorend bij Achter de Beek 5 is ruimtelijke gezien voldoende groot dat het kan worden gesplitst, waardoor kadastraal gezien een nieuw perceel ontstaat waarop de woning gerealiseerd kan worden.

Het planvoornemen tot realisatie van de levensloopbestendige woning op de betreffende locatie is overlegd met de gemeente Beek. Vanuit de gemeente is er geen sprake van stedenbouwkundig bezwaar tegen het planvoornemen en de levensloopbestendige woning zou onder voorwaarden gerealiseerd kunnen worden. Echter, op basis van het vigerend bestemmingsplan is de realisatie van een woning op deze locatie planologisch-juridisch gezien niet mogelijk. Er is ter plaatse van de beoogde woning namelijk wel sprake van een woonbestemming, maar geen sprake van een bouwvlak waarbinnen het is toegestaan om een nieuwe woning op te richten.

Om de realisatie van de vrijstaande levensloopbestendige woning planologisch-juridisch gezien mogelijk te maken, dient van het vigerend bestemmingsplan te worden afgeweken. Dit wordt gedaan in de vorm van een omgevingsvergunning voor afwijking van het bestemmingsplan ('Handelen in strijd met regels Ruimtelijke Ordening') in combinatie met de activiteit bouwen. Door middel van een procedure conform de Wet Algemene Bepalingen Omgevingsrecht (Wabo) en meer specifiek artikel 2.12 lid 1a onder 3 (ook wel de 'uitgebreide procedure') wordt de omgevingsvergunning aangevraagd voor de afwijking van het bestemmingsplan. Met deze ruimtelijke onderbouwing wordt aangetoond dat de realisatie van een vrijstaande levensloopbestendige woning op deze locatie beleidsmatig, ruimtelijk en milieuhygiënisch gezien aanvaardbaar is.

1.2 Begrenzing locatie

Het besluitgebied is gelegen aan de straat Achter de Beek te Beek en kadastraal bekend als gemeente Beek, sectie B, nummers 6762, 8329 en 8331. Aan de westelijke en oostelijke zijde wordt het besluitgebied begrensd door woonpercelen. De noordzijde van het besluitgebied wordt begrensd door de straat Achter de Beek, met aan de overzijde tevens woonpercelen gelegen. De zuidzijde van het besluitgebied wordt begrensd door een multifunctioneel centrum waar maatschappelijke functies c.q. voorzieningen zijn gevestigd.

afbeelding "i_NL.IMRO.0888.PBACHTERDEBEEK-ON02_0001.png"

Begrenzing besluitgebied

1.3 Geldend bestemmingsplan

1.3.1 Bestemmingsplan 'Kern Beek'

Ter plaatse van het besluitgebied geldt het bestemmingsplan 'Kern Beek', vastgesteld door de gemeenteraad van Beek op 26 april 2012. Op basis van dit bestemmingsplan is het besluitgebied bestemd als 'Wonen' met (gedeeltelijk) de bouwaanduiding 'bijgebouwen'. Verder geldt ter plaatse van het besluitgebied de archeologische dubbelbestemming 'Waarde - Archeologie 1'. Tot slot gelden voor het besluitgebied de gebiedsaanduidingen 'geluidzone - industrie', 'luchtvaartverkeerzone' en 'milieuzone - bodembeschermingsgebied'.

afbeelding "i_NL.IMRO.0888.PBACHTERDEBEEK-ON02_0002.png"

Uitsnede geldend bestemmingsplan

Ten aanzien van de gebiedsaanduidingen waarbinnen het besluitgebied is gelegen geldt het volgende:

  • ‘Luchtvaartverkeerzone': In art. 27 lid 2 onder 1 van het bestemmingsplan ‘Kern Beek’ is opgenomen dat de aanduiding ‘Luchtvaartverkeerzone’ de bescherming en instandhouding van de geluidsruimte tot doel heeft en het niet is toegestaan (nieuwe) geluidgevoelige objecten binnen het plangebied te bouwen (art. 27 lid 2 sub 2);
  • ‘Milieuzone — bodembeschermingsgebied’: Deze gronden dienen naast de andere aangewezen bestemming(en) tevens voor de bescherming van de kwaliteit van de bodem en het grondwater en de waarden daarvan. Er mag geen bebouwing plaatsvinden waarmee de kwaliteit van de bodem en de waarden daarvan onevenredig wordt verminderd;
  • ‘Geluidzone — industrielawaai’: Ter plaatse van deze aanduiding mogen geen nieuwe woningen, dan wel nieuwe andere geluidgevoelige bebouwing worden opgericht.

De voor 'Wonen' aangewezen gronden zijn o.a. bestemd voor woningen met de daarbij behorende voorzieningen als tuinen en erven, parkeervoorzieningen en bouwwerken van openbaar nut. Woningen mogen uitsluitend binnen een bouwvlak worden opgericht als vervangende nieuwbouw. Ter plaatse van het besluitgebied is echter geen bouwvlak opgenomen. Ook heeft de ontwikkeling geen betrekking op vervangende nieuwbouw. De realisatie van één vrijstaande levensloopbestendige woning is daarom op basis van het vigerend bestemmingsplan planologisch-juridisch gezien op deze locatie niet mogelijk. Om deze reden wordt door middel van een procedure conform de Wet Algemene Bepalingen Omgevingsrecht (Wabo) en meer specifiek artikel 2.12 lid 1a onder 3 (ook wel de 'uitgebreide procedure') een omgevingsvergunning aangevraagd voor de afwijking van het bestemmingsplan ten behoeve van de realisatie van één vrijstaande levensloopbestendige woning binnen het besluitgebied. Hierbij wordt tevens invulling gegeven aan de eisen c.q. voorwaarden zoals opgenomen in de geldende gebiedsaanduidingen.

1.3.2 Bestemmingsplan 'Parkeren'

Naast het bestemmingsplan ‘Kern Beek’ is op het gebied het bestemmingsplan ‘Parkeren’ (vastgesteld d.d. 8 november 2018) van toepassing. Bij een wijziging van de bestemming moet hieraan worden getoetst. Het bestemmingsplan ‘Parkeren’ verwijst naar de nota parkeerbeleid en in deze nota wordt naar de meest recente CROW normen verwezen. Er dient op eigen terrein aan deze parkeernorm te worden voldaan (zie paragraaf 2.2.2).

1.3.3 Voorbereidingsbesluit detailhandel

Tot slot geldt dat de gronden binnen het besluitgebied zijn belast met een voorbereidingsbesluit. In de gemeenteraad van 10 juni 2021 is dit voorbereidingsbesluit genomen. In het voorbereidingsbesluit is opgenomen dat het verboden is het huidige gebruik van de gronden en/of bouwwerken te wijzigen voor het gebruik als detailhandel. Aangezien onderhavig planvoornemen uitgaat van woningbouw heeft het voorbereidingsbesluit geen beperkende werking.

1.4 Leeswijzer

Na dit inleidende hoofdstuk wordt in hoofdstuk 2 eerst een beschrijving van de bestaande situatie en het beoogde planvoornemen c.q. situering van de vrijstaande levensloopbestendige woning binnen het besluitgebied gegeven. Daarbij wordt ingegaan op de structuur en de aanwezige functies. Daarna wordt in hoofdstuk 3 ingegaan op de huidige de beleidskaders van het Rijk, de provincie, en de gemeente. Vervolgens wordt in hoofdstuk 4 aandacht besteed aan de verschillende omgevingsaspecten die van invloed (kunnen) zijn op de opzet en inhoud van het planvoornemen, zoals milieuaspecten, water, flora en fauna, archeologie en cultuurhistorie, etc. Tot slot wordt in hoofdstuk 5 en 6 respectievelijk de uitvoerbaarheid aangetoond en de te doorlopen procedure beschreven.

Hoofdstuk 2 Beschrijving ontwikkeling

2.1 Bestaande situatie

Het besluitgebied is gelegen in de kern Beek. Beek wordt aan de noordzijde begrensd door Geleen, aan de oostzijde door het Heuvelland, aan de zuidzijde door de luchthaven Maastricht-Aachen Airport en aan de westzijde door de gemeente Stein.

De stedenbouwkundige structuur van Beek is in belangrijke mate opgehangen aan het historisch gegroeide wegenpatroon. De Burgemeester Janssenstraat-Bourgognestraat volgt de loop van het dal van de Keutelbeek (noordoostelijke richting). Ook van de andere, destijds minder belangrijke straten, als de Heirstraat/Carmelstraat, Bruiloftsteeg en Stegen, is de dalrichting bepalend geweest. Het gebied tussen de Burgemeester Janssenstraat en Stegen vormt het diepste punt van het beekdal en het gebied is hier vrijwel vlak. Het besluitgebied is in dit gebied gelegen.

afbeelding "i_NL.IMRO.0888.PBACHTERDEBEEK-ON02_0003.png"

Ligging besluitgebied (gele contour) in gebied tussen Burg. Janssenstraat en Stegen

In de kern Beek zijn een aantal typen in stedenbouwkundige opzet te onderscheiden. Onderhavig besluitgebied is binnen het gebiedstype 'Kern' gelegen. Voor wat betreft het kerngebied geldt dat de oude structuur met de bijbehorende bebouwing (boerderijen met poortconstructies) nog goed herkenbaar is. Ten noordwesten van het besluitgebied is de Martinuskerk gelegen.

afbeelding "i_NL.IMRO.0888.PBACHTERDEBEEK-ON02_0004.png"

Impressie bebouwingstructuur rondom besluitgebied (rode contour)

De weg Achter de Beek loopt voor de Martinuskerk langs in de richting van de Luciastraat. Voor de kerk zijn een keermuur en bomen gesitueerd. De aanwezige woningen zijn overwegend gebouwd in twee bouwlagen met kap en dateren uit verschillende bouwperioden. De gaten tussen de bebouwingselementen zijn in verschillende perioden successievelijk ingevuld, waardoor er momenteel sprake is van een vrijwel gesloten bebouwingswand. Omdat de straat in dit oudste gedeelte van Beek relatief smal is, ontbreekt een groenstructuur hier vrijwel volledig.

Aan het 'begin' van de straat Achter de Beek, ter hoogte van de nummers 1, 3, 11 en 13, zijn karakteristieke panden gelegen. Het betreft hier gebouwen die aan het einde van de 19e en begin van de 20e eeuw zijn gebouwd. Het 'laatste' gedeelte van Achter de Beek kenmerkt zich door vrijstaande woningen, opgebouwd in twee lagen met kap, uit verschillende bouwperioden. Hier zijn tevens voortuinen aanwezig, waardoor het straatprofiel hier ruimer oogt. Het besluitgebied is ongeveer in het midden van de straat gelegen. De omgeving van het besluitgebied is hierdoor zeer gedifferentieerd qua verschijningsvorm, gevelindeling, goot-bouwhoogte en nokrichting.

afbeelding "i_NL.IMRO.0888.PBACHTERDEBEEK-ON02_0005.png" Impressie bebouwing 'begin' van de straat, nabij besluitgebied (gele pijl)

afbeelding "i_NL.IMRO.0888.PBACHTERDEBEEK-ON02_0006.png"

Impressie bebouwing 'eind' van de straat nabij besluitgebied (bij gele pijl)

In de huidige situatie maakt het besluitgebied deel uit van de tuin behorend bij het woonperceel Achter de Beek 5. Het besluitgebied wordt aan straatzijde omheind door dichte hagen behorend bij deze tuin. Aan de oostelijke zijde van het besluitgebied bevindt zich een oprit met daarachter een overkapping c.q. garage en nutsvoorziening. De nutsvoorziening maakt geen onderdeel uit van het planvoornemen en blijft in zijn huidige vorm behouden.

afbeelding "i_NL.IMRO.0888.PBACHTERDEBEEK-ON02_0007.png"

Impressie huidige situatie besluitgebied

afbeelding "i_NL.IMRO.0888.PBACHTERDEBEEK-ON02_0008.png"

Aanzicht besluitgebied vanaf Achter de Beek (hagen en inrit met overkapping/garage en nutsvoorziening)

2.2 Beoogde ontwikkeling

2.2.1 Stedenbouwkundig ontwerp

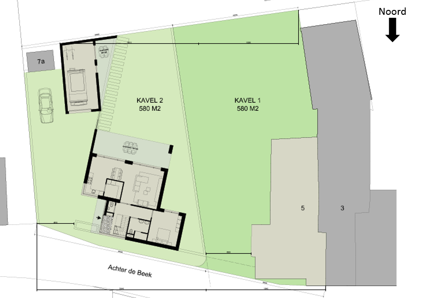
Dit planvoornemen voorziet in de realisatie van een vrijstaande levensloopbestendige woning. De te realiseren woning vult een open plek in tussen reeds bestaande bebouwing aan de straat Achter de Beek. Hiermee wordt het straatbeeld ter plaatse voltooid. Ten aanzien van de bouwhoogte van de woning geldt dat wordt aangesloten op de bouwregels van het geldend bestemmingsplan Kern Beek. Zo bestaat de beoogde woning uit maximaal twee bouwlagen (in dit geval: één bouwlaag met een opbouw omdat het een levensloopbestendige woning betreft). Verder geldt dat voor de bebouwing een afstand van minimaal 3 meter tot de zijdelingse perceelsgrens wordt gehanteerd. Gebouwen in de vorm van bijgebouwen, bestaande uit één bouwlaag, mogen wel opgericht worden in deze zone van 3 meter tussen de woning en de zijdelingse perceelsgrens. De oppervlakte aan bijgebouwen mag maximaal 100 m2 bedragen. De voorziene garage/berging aan de noordzijde van het perceel bedraagt zodoende ca. 80 m2. De bestaande nutsvoorziening blijft behouden en blijft, net als in de huidige situatie, bereikbaar via de oprit (recht van overpad).

afbeelding "i_NL.IMRO.0888.PBACHTERDEBEEK-ON02_0009.png"

Schematische weergave toekomstige inrichting besluitgebied (bron: Wehrung Architecten)

afbeelding "i_NL.IMRO.0888.PBACHTERDEBEEK-ON02_0010.png"

afbeelding "i_NL.IMRO.0888.PBACHTERDEBEEK-ON02_0011.png"

Impressie beoogde bebouwing besluitgebied (bron: Wehrung Architecten)

2.2.2 Verkeer en parkeren

Verkeer

Voor het bepalen van de verkeersgeneratie kan gebruik worden gemaakt van de CROW publicatie 317 ‘Kencijfers parkeren en verkeersgeneratie’. Onderhavig besluitgebied is gelegen in ‘matig stedelijk gebied’ en ‘rest bebouwde kom’. Per vrijstaande woning dient rekening te worden gehouden met minimaal 7,8 en maximaal 8,6 motorvoertuigbewegingen per werkdagetmaal.

Voorliggend planvoornemen leidt zodoende tot een verkeersgeneratie van maximaal 9 motorvoertuigbewegingen per werkdagetmaal. De woning wordt ontsloten door de bestaande oprit aan de westelijke zijde van het perceel. Om de ontsluiting van de bestaande woning aan Achter de Beek 5 te waarborgen wordt een nieuwe oprit, ten westen van de bestaande woning, gerealiseerd.

Verondersteld mag worden dat het genoemde aantal bewegingen een zeer beperkte toename betreft van het totale aantal bewegingen over de straat Achter de Beek, gelet op het aantal reeds bestaande woningen dat ontsloten is op deze weg. Problemen in de verkeersdoorstroming en verkeersveiligheid worden redelijkerwijs niet verwacht gezien de marginale toename van het aantal verkeersbewegingen.

Parkeren

Voor het bepalen van het aantal benodigde parkeerplaatsen dient gebruik te worden gemaakt van de Parkeernota Beek 2018, zoals vastgesteld door de gemeenteraad van Beek op 4 oktober 2018. Onderhavig besluitgebied is blijkens de zoneringenkaart gelegen in de ‘rest bebouwde kom’. Uitgaande van deze gegevens dienen per vrijstaande (koop)woning minimaal 1,9 en maximaal 2,7 parkeerplaatsen beschikbaar te zijn. Deze parkeergelegenheid dient binnen de eigen perceelsgrenzen te kunnen worden gerealiseerd, zodat de openbare parkeerbalans niet wordt verstoord.

Het terrein aan de westelijke zijde van het perceel wordt ingericht ten behoeve van het parkeren. Hier wordt een garage gerealiseerd en wordt voldoende ruimte beschikbaar gehouden voor het onoverdekt parkeren van minimaal twee auto's. Hiermee wordt in de benodigde parkeerbehoefte voorzien.

Gevolg planvoornemen

Geconcludeerd wordt dat het aspect 'verkeer en parkeren' geen belemmering vormt voor het planvoornemen.

Hoofdstuk 3 Beleidskader

Gemeenten zijn niet geheel vrij in het voeren van hun eigen beleid. Rijk en provincies geven met het door hen gevoerde en vastgelegde beleid de kaders aan waarbinnen gemeenten kunnen opereren. In dit hoofdstuk wordt aangetoond dat het voorgenomen planvoornemen niet strijdig is met het voor het besluitgebied relevante nationale en provinciale beleid en dat het in lijn is met het van toepassing zijnde beleid van de gemeente Beek.

3.1 Rijksbeleid

3.1.1 Nationale omgevingsvisie (NOVI)

De nationale omgevingsvisie (NOVI) is op 11 september 2020 vastgesteld. Deze visie is door het rijk opgesteld in het kader van de nieuwe omgevingswet, die per 1 januari 2023 in werking treedt. Aan de hand van een toekomstperspectief is hierin de langetermijnvisie in beeld gebracht. Op nationale belangen wil het Rijk (net als nu) sturen en richting geven. Hiervoor worden de volgende vier prioriteiten onderscheiden:

  • 1. Ruimte voor klimaat adaptatie.
  • 2. Duurzaam economisch groeipotentieel.
  • 3. Sterke en gezonde steden en regio's.
  • 4. Toekomstigbestendige ontwikkelinge van het landelijk gebied.

Om invulling te kunnen geven aan deze vier prioriteiten hanteert het rijk de volgende drie afwegingsprincipes:

  • 1. Combinaties van functies gaat voor enkelvoudige functies.
  • 2. Kenmerken en identiteit van een gebied staan centraal.
  • 3. Afwentelen wordt voorkomen.

Met de NOVI wordt gebouwd aan sterke, aantrekkelijke en gezonde steden, waarbij wordt gestreefd naar de verdere ontwikkeling van het Stedelijk Netwerk Nederland. De wens is om daar naar toe te groeien en een goed bereikbaar netwerk van steden en regio’s te realiseren. De grote actuele woningbehoefte vraagt tegelijkertijd om oplossingen op korte termijn. Het kabinet heeft voor de korte termijn daarom een pakket aan maatregelen voorgesteld om de woningbouw een nieuwe, stevige impuls te geven. De locaties bevinden zich in het Stedelijk Netwerk Nederland. De ontwikkeling vindt plaats in lijn met de ambities van de integrale verstedelijkingsstrategie, zo veel mogelijk in bestaand stedelijk gebied, klimaatbestendig en natuurinclusief. Grote open ruimten tussen de steden houden hun groene karakter. Het aanbod en de kwaliteit van het groen in de stad worden versterkt en de aansluiting op het groene gebied buiten de stad wordt verbeterd.

De opgave is daarbij om de veiligheid en gezondheid van onze leefomgeving zodanig te verbeteren dat in 2050 negatieve omgevingseffecten op onze gezondheid naar een verwaarloosbaar laag niveau zijn gebracht. Daarnaast streeft het kabinet ernaar om in 2030 te voldoen aan de huidige WHO-advieswaarden. Een belangrijk aspect van de NOVI betreft het creëren van prettige woonmilieu's (prioriteit 'Sterke en gezonde steden en regio's'.) Hierbij wordt vooral gestuurd op inbreiding in plaats van uitbreiding. Er zijn veel woningen nodig voor de groeiende groep ouderen.

Conclusie

Onderhavig planvoornemen voorziet in de realisatie van een vrijstaande levensloopbestendige woning op een open plek tussen de woonbebouwing aan de straat Achter de Beek (binnen de bestaande ruimtelijke structuur van het stedelijk gebied). Er wordt ingespeeld op de wensen om een kwalitatief hoogwaardig woonmilieu te creëren voor een vergrijzende doelgroep dicht bij de voorzieningen in het centrum van Beek. Daarbij geldt dat de nieuwe vrijstaande levensloopbestendige woning klimaatbestendig en duurzaam gerealiseerd wordt en hiermee een bijdrage wordt geleverd aan een veilige en gezonde leefomgeving.

3.1.2 Besluit ruimtelijke ordening: ladder voor duurzame verstedelijking

Op grond van artikel 3.1.6 lid 2 van het Besluit ruimtelijke ordening dienen overheden nieuwe stedelijke ontwikkelingen te motiveren. Per 1 juli 2017 zijn de 3 treden van de Ladder losgelaten en geldt dat de toelichting bij een bestemmingsplan of ruimtelijke onderbouwing bij afwijking van het bestemmingsplan die een nieuwe stedelijke ontwikkeling mogelijk maakt, een beschrijving bevat van de behoefte aan die ontwikkeling, en, indien het bestemmingsplan of ruimtelijke onderbouwing bij afwijking van het bestemmingsplan die ontwikkeling mogelijk maakt buiten het bestaande stedelijk gebied, een motivatie waarom niet binnen bestaand stedelijk gebied in die behoefte kan worden voorzien.

Zoals gezegd is de Ladder-onderbouwing verplicht voor 'nieuwe stedelijke ontwikkelingen'. Onder stedelijke ontwikkeling wordt de ruimtelijke ontwikkeling van een bedrijventerrein, zeehaventerrein, kantoren, detailhandel, woningbouwlocaties of andere stedelijke voorzieningen verstaan. Deze laatste categorie is in de handreiking bij de Ladder voor duurzame verstedelijking (ministerie van Infrastructuur en Milieu) nader gespecificeerd in accommodaties voor onderwijs, zorg, cultuur, bestuur en indoor sport en leisure.

In de definitie voor stedelijke ontwikkeling (artikel 1.1.1 lid 1 sub i van het Bro) is geen ondergrens opgenomen. Hieruit zou men kunnen concluderen dat iedere stedelijke ontwikkeling, hoe kleinschalig dan ook, valt binnen het toepassingsbereik van de Ladder. Echter, uit vaste jurisprudentie van de Afdeling blijkt dat er wel sprake kan zijn van een voorziene ontwikkeling die te kleinschalig is om als nieuwe stedelijke ontwikkeling te kunnen worden aangemerkt. Volgens vaste jurisprudentie zijn bijvoorbeeld elf woningen (welke op één en dezelfde locatie worden gerealiseerd) het maximale aantal woningen wat door de Afdeling als te kleinschalig wordt geacht om als een stedelijke ontwikkeling te kunnen worden gekwalificeerd. Het minimale aantal woningen wat gerealiseerd moet worden (op dezelfde locatie) om als stedelijke ontwikkeling te worden gekwalificeerd is aldus twaalf.

Conclusie

Op basis van bovenstaande wordt geconcludeerd dat de ontwikkeling van slechts één vrijstaande levensloopbestendige woning niet wordt aangemerkt als stedelijke ontwikkeling. Toetsing aan de Ladder is niet aan de orde.

3.2 Provinciaal beleid

3.2.1 Provinciale Omgevingsvisie Limburg (POVI)

De nieuwe Omgevingswet treedt naar verwachting op 1 januari 2023 in werking. De provincie moet dan beschikken over een Provinciale Omgevingsvisie en Omgevingsverordening. De provincie heeft in dat verband het POL2014 te vervangen door de Omgevingsvisie Limburg (hierna: POVl, vastgesteld 1 oktober 2021). De POVI richt zich op de langere termijn (2030-2050) en beschrijft onderwerpen zoals wonen, bodem, infrastructuur, milieu, ruimtelijke economie, water, natuur, luchtkwaliteit, landschap en cultureel erfgoed. Maar ook het aspect gezondheid en een gezonde leefomgeving wordt in de Omgevingsvisie meegenomen.

De zoneringen op grond van het POL2014 zijn in de POVI overgenomen op de kaart 'Limburgse principes'. In de POVI is onderhavig besluitgebied, net als in het POL, gelegen in het 'stedelijk gebied' Vanuit beleidsmatig oogpunt in relatie tot voorliggend planvoornemen is geen sprake van relevante wijzigingen. Het planvoornemen ligt in lijn met het POVI en kan daarom met betrekking tot de provinciale visie als toekomstbestendig worden geacht.

afbeelding "i_NL.IMRO.0888.PBACHTERDEBEEK-ON02_0012.png"

Uitsnede kaart 'Limburgse principes' ontwerp POVI met aanduiding besluitgebied

Voor wat betreft woningbouw, op korte en middellange termijn, zit de grootste opgave in het toekomstgeschikt maken van de verouderde en niet-courante bestaande woningvoorraad. Conjuncturele ontwikkelingen en migratiestromen beïnvloeden vraag en aanbod op de woningmarkt. Daarnaast verandert de woonvraag waardoor het woningaanbod niet altijd aansluit op de vraag. Daardoor is er op korte termijn een vraag naar woningen voor specifieke doelgroepen (starters en senioren) en lokaal een overschot aan incourante plannen en woningen. Voor zover (harde en zachte) planvoorraad voorziet in de mogelijkheid om woningen te bouwen waar niet langer behoefte aan is, zal de Provincie in overleg met de gemeenten onderzoeken hoe deze planvoorraad aangepakt kan worden. Hiertoe is reeds in POL2014 een oproep gedaan aan gemeenten, die Limburg breed nog niet het gewenste resultaat heeft opgeleverd. Het gevolg is dat woningbouwplannen waaraan dringend behoefte bestaat, niet kunnen worden toegevoegd vanwege een te grote voorraad aan niet meer actuele plannen die niet meer aansluiten bij de behoefte.

Daarnaast zijn ook sociaal-economische omstandigheden, gezondheid, leefbaarheid, het voorzieningenniveau, de bereikbaarheid en een veilige omgeving zijn van belang. Leegstand, criminele activiteiten, ondermijning of verloedering en eenzijdig samengestelde woongebieden hebben invloed op de leefbaarheid en kunnen de kloof in de samenleving vergroten. Gemengde wijken met ruimte voor verschillende leefstijlen dragen bij aan een sterker sociaal weefsel en kunnen bijdragen aan het voorkomen van sociale problemen'.

Conclusie

Het planvoornemen voorziet in de realisatie van één vrijstaande levensloopbestendige woning in een bestaande woonomgeving. Door een vrijstaande levensloopbestendige woning voor de doelgroep ouderen te bouwen, in de directe nabijheid van de voorzieningen in het centrum van Beek, wordt aangesloten op de huidige woonvraag op korte termijn. Hierdoor zijn de toekomstige bewoners in staat langer zelfstandig te blijven wonen. Al dan niet, op termijn, met inkoop van eventuele noodzakelijke zorg. Het planvoornemen ligt derhalve in lijn met het POVI en kan daarom met betrekking tot de provinciale visie als toekomstbestendig worden geacht.

3.2.2 Omgevingsverordening Limburg 2014

Gelijktijdig met het Provinciaal Omgevingsplan 2014 (POL2014) is de Omgevingsverordening Limburg 2014 vastgesteld. Daarin heeft de juridische doorwerking van het omgevingsbeleid uit het POL2014 plaatsgevonden. Hoewel in oktober 2021 inmiddels de nieuwe Omgevingsvisie Limburg is vastgesteld en voorsorterend op de inwerkingtreding van de Omgevingswet in december 2021 ook als de nieuwe Omgevingsverordening Limburg (2021) is vastgesteld, geldt vooralsnog de Omgevingsverordening Limburg 2014. De nieuwe verordening treedt pas in werking na bekendmaking, hetgeen wordt gekoppeld aan de inwerkingtreding van de Omgevingswet. Op dat moment vervalt de Omgevingsverordening Limburg 2014.

De Omgevingsverordening Limburg 2014 bevat een hoofdstuk ‘Ruimte’, waarin instructieregels zijn opgenomen die gemeenten in acht dienen te nemen bij het opstellen en vaststellen van onder meer bestemmingsplannen. Van die instructieregels zijn de volgende onderwerpen van belang, waarbij per onderwerp wordt ingegaan op de relatie met het planvoornemen.

Ladder voor duurzame verstedelijking

In de Omgevingsverordening Limburg 2014 (artikel 2.2.2) is nogmaals geborgd dat in geval van een nieuwe stedelijke ontwikkeling wordt getoetst aan de Ladder voor duurzame verstedelijking, zoals neergelegd in artikel 3.1.6, tweede lid Bro. Daarbij dient tevens te worden ingegaan op de mogelijkheden voor herbenutting van leegstaande monumenten of beeldbepalende gebouwen. In paragraaf 3.1.2 is reeds ingegaan op de Ladder voor duurzame verstedelijking zoals die is geborgd in artikel 3.1.6, tweede lid Bro en daarin is onderbouwd dat wordt voorzien in c.q. voldaan aan de afwegingen rondom (duurzaam) ruimtegebruik waar de ladder om vraagt. De extra trede die door de provincie Limburg is toegevoegd aan de Ladder betreft de afweging of het plan kan worden gerealiseerd door herbenutting van leegstaande monumentale of beeldbepalende gebouwen. Daar kan binnen onderhavig plangebied niet concreet in worden voorzien omdat sprake is het invullen van een open plek in de bestaande ruimtelijke structuur.

Wonen

Ten aanzien van wonen geldt dat een ruimtelijk plan voor een gebied gelegen in de regio Zuid-Limburg niet in de toevoeging van woningen aan de bestaande voorraad woningen voorziet alsmede aan de bestaande planvoorraad woningen. Dit is niet van toepassing indien:

  • a. er sprake is van een door de gemeenteraad vastgestelde Structuurvisie Wonen Zuid-Limburg; en
  • b. het ruimtelijk plan voldoet aan het bepaalde in de vastgestelde Structuurvisie Wonen Zuid-Limburg.

In de volgende paragraaf (paragraaf 3.3.1) is toegelicht dat de realisatie van één vrijstaande levensloopbestendige woning in de kern Beek passend is binnen het beleid als vastgesteld in de Structuurvisie Wonen Zuid-Limburg.

Overige kaders

Op grond van de verordening kan op basis van de kaart 'Beschermingszones natuur en landschap' worden vastgesteld dat het besluitgebied niet is gelegen in een beschermingszone natuur en/of beschermingszone landschap.

afbeelding "i_NL.IMRO.0888.PBACHTERDEBEEK-ON02_0013.png"

Uitsnede themakaart 'Beschermingszones natuur en landschap' met besluitgebied bij rode aanwijzer

Gezien het feit dat onderhavig besluitgebied niet binnen een beschermde landschapszone of natuurzone valt, is er ter plaatse van het besluitgebied verder geen sprake van een specifiek beschermingsregime voor natuur en landschap.

Conclusie

Onderhavig planvoornemen voldoet aan de eisen ten aanzien van duurzame verstedelijking. Het plan is passend binnen het beleid zoals vastgesteld binnen de Structuurvisie Wonen Zuid-Limburg (zie paragraaf 3.3.1). Daarnaast geldt dat het besluitgebied niet is gelegen binnen een beschermde landschapszone of natuurzone. Gelet op vorenstaande wordt geconcludeerd dat het plan passend is binnen de Omgevingsverordening Limburg 2014.

3.3 Regionaal beleid

3.3.1 Structuurvisie Wonen Zuid-Limburg

Op 20 oktober 2016 heeft de gemeenteraad van Beek ingestemd met de Structuurvisie Wonen Zuid-Limburg (SVWZL). De SVWZL is een gezamenlijke, Zuid-Limburgse ruimtelijke visie op de woningmarkt, opgesteld door de 18 Zuid-Limburgse gemeenten Beek, Brunssum, Eijsden-Margraten, Gulpen-Wittem, Heerlen, Kerkrade, Landgraaf, Maastricht, Meerssen, Nuth, Onderbanken, Schinnen, Simpelveld, Sittard-Geleen, Stein, Vaals, Valkenburg aan de Geul en Voerendaal.

Het kader voor de SVWZL is in samenwerking met de provincie en andere direct betrokken partijen tot stand gekomen. Dit kader vloeit tevens voort uit het in december 2014 vastgestelde Provinciaal Omgevingsplan Limburg (POL) welk eveneens een visie bevat van de woningmarkt in Zuid-Limburg. In de SVWZL staat de transformatieopgave centraal, dat wil zeggen de totale woningbehoefte op basis van het aantal huishoudens, rekening houdend met de huidige woningvoorraad en de leegstand.

De SVWZL bevat een driedelige opgave voor gemeenten, namelijk:

  • a. het verdunnen van de bestaande voorraad waar sprake is van een overschot;
  • b. het terugdringen van de ongewenste planvoorraad tot het niveau van de transformatieopgave;
  • c. het toevoegen van woonproducten waar een tekort van is, passend binnen de uitgangspunten van de SVWZL.

Beleidsregel Ruim baan voor goede woningbouwplannen 2021

Eind 2020 heeft een evaluatie van de SVWZL plaatsgevonden. Hierbij is de wens geuit om de bouw van woningen waaraan behoefte bestaat te stimuleren. Daartoe is voorgesteld om voor dergelijke goede plannen de compensatieregeling (Beleidsregel Tijdelijke versoepeling van de compensatiesystematiek van de Structuurvisie Wonen Zuid-Limburg) los te laten. Om dit ook juridisch te kunnen regelen is door de raad op 17 december 2020 de Beleidsregel Ruim baan voor goede woningbouwplannen vastgesteld.

In deze beleidsregel is opgenomen dat een goed woningbouwplan niet meer hoeft te worden gecompenseerd. Daartoe dient het woningbouwplan dan wel te voldoen aan alle drie de opgenomen criteria:

  • Criterium 1: Het plan heeft maatschappelijke meerwaarde
    Een woningbouwplan heeft maatschappelijke meerwaarde wanneer bijvoorbeeld sprake is van één van de volgende situaties:
    • 1. Aantoonbare verbetering van de leefbaarheid in centra en kernen
    • 2. Herstructurering/vervangingsbouw van woningen
    • 3. Hergebruik van winkels of (ander) bestaand waardevol vastgoed met passende woningbouw
    • 4. Aantoonbare bijdrage aan de transformatie van de bestaande woningvoorraad.
      Daarbij wordt aangesloten op het ruimtelijke uitgangspunt dat inbreiding boven uitbreiding gaat.
  • Criterium 2: Het plan is planologisch aanvaardbaar
    Een plan is (ruimtelijk) planologisch aanvaardbaar als het voldoet aan de Ladder van Duurzame verstedelijking (Besluit ruimtelijke ordening; artikel 3.1.6. lid 2) voor nieuwe stedelijke ontwikkelingen. Dit betekent dat een beschrijving van de kwalitatieve en kwantitatieve behoefte nodig is:
    • 1. Criterium 2a: Het plan sluit aan bij de kwantitatieve behoefte
    • 2. Criterium 2b: Het plan sluit aan bij de kwalitatieve behoefte
  • Criterium 3: Het plan is (sub)regionaal afgestemd
    Het derde criterium betreft subregionale afstemming, zodat gezamenlijke oordeelsvorming plaatsvindt en het gemeenschappelijk belang voorop blijft staan (geen onderlinge concurrentie en overschotten op subregionaal niveau). De subregio bepaalt of het plan aan de subregionale woningmarktprogrammering wordt toegevoegd. Woningbouwplannen die concurrerend zijn op regionale schaal (de Zuid-Limburgse woningmarkt), worden ook op Zuid-Limburgse schaal afgestemd.

Gevolg planvoornemen

Initiatiefnemers wonen al jaren in hun carréboerderij te Groot Genhout. Het betreft een ouder echtpaar waar het huidige woonhuis en perceel te groot wordt om (zelf) te onderhouden. Daarbij geldt dat de investering te hoog is om deze woning levensloopbestendig te maken. Aangezien er in de kern Genhout géén levensloopbestendige woningen worden aangeboden, is het idee ontstaan om op het perceel aan Achter de Beek ongenummerd (in eigendom bij een familielid) één levensloopbestendige woning te realiseren (onder de NHG-grens). Ook voor hen wordt het huidige perceel te groot om in de toekomst zelf te onderhouden. Zij zien graag hun familie in de toekomst hier wonen.

Het betreffende perceel is gelegen aan Achter de Beek ongenummerd en ligt tegenover de kerk en daarmee midden in het centrum van de kern Beek. Door deze transitie door te voeren is het mogelijk om ouderen in de kern van Beek te laten wonen en elkaars eerste zorg behoefte op te laten vangen. Beide woningen, zowel de nieuwbouw als de bestaande woning, zijn generatieneutraal, beschikken over een tuin en parkeerplaats op eigen terrein en zijn daarmee ook goed geschikt voor starters en/of gezinnen.

Deze transitie wordt als maatschappelijke meerwaarde voor zowel de kern van Beek als Genhout beschouwd. In Genhout ontstaat er een doorstroom op de woningmarkt en in de kern Beek worden twee woningen generatie neutraal opgericht c.q. getransformeerd. Het huisvesten van deze doelgroep in de kern stimuleert de ondernemers en de verenigingen die hier zijn gehuisvest. Zo worden links van het perceel levensloopbestendige appartementen aangeboden en grenst aan de achterzijde het perceel aan de voormalige basisschool waar momenteel activiteiten voor ouderen worden ontplooit.

Verder geldt dat het planvoornemen aansluit bij de kwalitatieve en kwantitatieve woningbehoefte binnen de kern Beek. Dit is nader beschreven in paragraaf 3.4.3. Ook is het zo dat de woning wordt gerealiseerd op een planologisch aanvaardbare plek: op een 'open plek' in de bebouwing van het centrumgebied van de kern Beek. Tot slot geldt dat het plan regionaal is afgestemd in het Bestuurlijk Overleg Wonen Westelijke Mijnstreek. Op basis hiervan is geconcludeerd dat onderhavig planvoornemen een goed woningbouwplan betreft en compensatie niet aan de orde is.

3.4 Gemeentelijk beleid

3.4.1 Strategische toekomstvisie

Op 10 december 2009 heeft de gemeenteraad de strategische toekomstvisie ‘Ondernemend Beek: veelzijdig en vitaal in Zuid-Limburg’ vastgesteld. Eén van de dragers van deze strategische toekomstvisie is een ‘aantrekkelijke woongemeente’. Ook in de komende 20 jaar zal Beek een aantrekkelijke woongemeente blijven met voorzieningen voor zowel jong als oud. Het toevoegen van woningen, voor zover mogelijk op basis van het geldende beleid, dient binnen het bebouwd gebied plaats te vinden.

Deze toekomstivisie is onlangs herijkt. Drie trends stellen Beek daarbij richting 2030 en de jaren daarna voor flinke uitdagingen, te weten: demografische transitie, druk op ruimte en fysieke leefomgeving en economische transitie. In dat kader is het voor Beek belangrijk om zich te blijven ontwikkelen als een vitale gemeenschap en in haar positionering ten opzichte van haar omgeving, de Westelijke Mijnstreek en Zuid-Limburg. Dus een gemeente waar Beekenaren prettig kunnen wonen en (samen)leven in een groene omgeving en waar Beekenaren en mensen uit de regio ook goed kunnen werken in de stadse dynamiek.

In dat kader wordt het huidige woonbeleid dan ook voortgezet. Dit is gericht op de transformatie van de bestaande woningvoorraad en leegstaande panden en op kwalitatieve toevoegingen van nieuwbouw. Dat betekent enerzijds het bouwen van woningen waar op lange termijn vraag naar is en anderzijds het op termijn uit de woningvoorraad onttrekken van verouderde woningen die niet meer aansluiten op de woningvraag van de toekomst.

Conclusie

In onderhavige situatie wordt de vrijstaande levensloopbestendige woning gerealiseerd binnen bebouwd gebied waardoor de ruimtelijke structuur ter plaatse wordt versterkt. De ambitie daarbij is ‘Aangenaam wonen en leven’. De woning draagt bij aan de bouw van woningen waar op lange termijn vraag naar is, namelijk een levensloopbestendige woning zodat mensen langer zelfstandig kunnen blijven wonen dicht bij de voorzieningen. Het plan voldoet daarmee aan de kaders uit de strategische toekomstvisie.

3.4.2 Gemeentelijke structuurvisie Beek 2012-2022

In de gemeentelijke structuurvisie Beek 2012-2022 ruimte voor veelzijdigheid en vitaliteit zijn ambities en visies en kern kwaliteiten per kern weergegeven. Op de ambitiekaart maakt het besluitgebied onderdeel uit van het deelgebied Beek — Neerbeek. In dit deelgebied zijn de ambities ten aanzien van wonen: toevoegen gewenste woningen gekoppeld aan onttrekking ongewenste woningen, transformatie en herstructurering. Het betreft het toevoegen van juiste woningen op een juiste plek.

Het planvoornemen voldoet aan het ontwikkelprincipe ‘behoud door ontwikkeling – heldere, zichtbare en betekenisvolle basisstructuren’. Een onderdeel van dit ontwikkelprincipe is de kernen beter herkenbaar en leefbaar maken door het versterken van de samenhang en de structuur binnen die kernen. De realisatie van een vrijstaande levensloopbestendige woning op een open plek tussen de bestaande ruimtelijke bebouwingsstructuur draagt hieraan bij. Door de invulling van de open plek met een woning wordt het straatbeeld ter plaatse voltooid en daarmee de samenhang en structuur ter plaatse van de straat Achter de Beek versterkt. Daarnaast betreft het een woning voor ouderen nabij de voorzieningen in het centrum van Beek. Hierdoor is sprake van een juiste woning op een juiste plek.

Conclusie

Geconcludeerd wordt dat het planvoornemen passend is binnen de beschreven ambities in de Gemeentelijke structuurvisie Beek 2012-2022.

3.4.3 Woonvisie 2019-2035

De 'Woonvisie 2019-2035: Samen bouwen veur Baek' is op 21 maart 2019 door de gemeenteraad vastgesteld. De regionaal afgestemde ‘Structuurvisie Wonen Zuid-Limburg’ is hierin op lokale schaal uitgewerkt. In de woonvisie is aandacht voor de gevolgen van krimp en vergrijzen en de hieruit volgende uitdagingen om de woningmarkt op lange termijn gezond te houden. Er ontstaat namelijk een steeds grotere mismatch tussen het aanbod en de vraag naar woningen. Het merendeel van de woningen in Beek zijn eengezinswoningen. Terwijl 50% van de inwoners nu 50+ is. Dit samen met nieuwe uitdagingen zoals de hoge ambities op het gebied van duurzaamheid maken duidelijk dat de gemeente voor een enorme transformatieopgave staat. Een opgave waarbij de gemeente Beek het belangrijk vindt dat iedereen zoveel mogelijk in zijn eigen vertrouwde omgeving prettig en veilig kan blijven wonen. De gemeente neemt daarom de regie bij de opgave en zet in op de transformatie van de bestaande woningvoorraad en leegstaande panden, kwalitatieve toevoegingen van nieuwbouw: woningen waar op lange termijn vraag naar is en het op termijn het onttrekken van verouderde woningen die niet meer aansluiten op de woningvraag van de toekomst.

In de woonvisie wordt de opgave in het kader van volkshuisvesting geduid en legt de raad een 6-tal ambities vast. Deze ambities hebben betrekking op het volgende:

  • 1. Woningtype: de gemeente Beek richt zich op het realiseren van gelijkvloerse nieuwbouw woningen voor pensionados. Daarmee beoogt zij de doorstroming in de woningvoorraad op gang te brengen waardoor ook uiteindelijk voor starters woningen vrijkomen.
  • 2. Transformatie bestaande voorraad (verbouw en/of vervanging): de gemeente beoogt om verbouwingen van de eigen woning dan wel vervangende nieuwbouw te faciliteren en te stimuleren in het kader van duurzaamheid en levensloopbestendigheid.
  • 3. Meest kwetsbare woningtypen: de gemeente beoogt de leegstand in haar gemeente zo laag mogelijk te houden. Zij is voornemens om eigenaren van woningen te informeren over de mogelijk negatieve effecten van de dalende huishoudensontwikkeling en daarnaast beoogt zij eigenaren te stimuleren om de waardevastheid en de verkoopbaarheid van hun woning te behouden.
  • 4. Vestigingsklimaat: de gemeente Beek is voornemens om de ontwikkelingen op de woningvoorraad en de huishoudensontwikkeling goed in de gaten te houden zodat, indien nodig, het beleid kan worden aangepast.
  • 5. Ontmoeten en samenbrengen: bestaande gebouwen of niet bebouwde gebieden binnen de kernen worden als eerste aangesproken voor de realisatie van gelijkvloerse woningen. Tevens kunnen niet bebouwde gebieden binnen de bebouwingslinten, in het uitzonderlijke geval dat de benaderbaarheid van het omliggende landschap niet wordt geschaad, worden bebouwd met woningen in het dure segment.
  • 6. Sociale huur: sociale huurwoningen maximaal te verduurzamen tegen een zo laag mogelijke meerprijs en daarmee meer wooncomfort.

Conclusie

Voorliggend planvoornemen is gericht op het realiseren van een nieuwe vrijstaande levensloopbestendige woning aan de straat Achter de Beek te Beek. De vrijstaande levensloopbestendige woning sluit met name aan bij de woningbehoeften van pensionados en empty-nesters. Deze doelgroepen laten bij verhuizing vaak een gezinswoning achter, zoals in dit geval een woning in Genhout. De doorstroming die hierbij op gang komt levert een belangrijke bijdrage aan het aanbieden van voldoende aanbod. De realisatie van een vrijstaande levensloopbestendige woning past dan ook bij de huidige en toekomstige woonvraag binnen de gemeente Beek.

Het is helder dat een woning fysieke ruimte in beslag neemt. Woningen zijn daarmee sturende principes in het gebruik van de overige ruimte. Naar mate men ouder wordt, neemt het gebruik van de auto af. Dat houdt in dat de bereikbaarheid van (bestaande) voorzieningen afneemt als de woning (te) ver van de voorzieningen is gelegen (eenzaamheid). De juiste woning op de juiste plek, houdt daarom ook in dat de realisatie van woningen voor de 'empty nester'/ pensionados zo dicht mogelijk bij (bestaande) voorzieningen dient plaats te vinden. Met de realisatie van de vrijstaande levensloopbestendige woning op onderhavige locatie, nabij de voorzieningen in het centrum van de kern Beek, wordt ook hierin voorzien.

Met inachtneming van bovenstaande doelstellingen draagt onderhavig woningbouwinitiatief bij aan deze ambities. De juiste woning op de juiste plek, brengt een verhuistrein op gang waarmee meerdere doelgroepen (huizenzoekers) worden bediend.

Hoofdstuk 4 Milieu- en omgevingsaspecten

4.1 Inleiding

Milieubeleid wordt steeds meer geïncorporeerd in andere beleidsvelden. Verbreding van milieubeleid naar andere beleidsterreinen is dan ook een belangrijk uitgangspunt. Ook in de ruimtelijke planvorming is structureel aandacht voor milieudoelstellingen nodig. De milieudoelstellingen worden daartoe integraal en vanaf een zo vroeg mogelijk stadium in het planvormingsproces meegewogen.

De diverse milieuaspecten (bedrijven en milieuzonering, bodem, externe veiligheid, geluid, luchtkwaliteit) komen in dit hoofdstuk aan bod, samen met de overige relevante sectorale aspecten (archeologie en cultuurhistorie, flora en fauna, water).

4.2 Bodem

Het planvoornemen ziet toe op de realisatie van een vrijstaande levensloopbestendige woning ter plaatse van een 'open plek' in de woonbebouwing aan de straat Achter de Beek te Beek. Conform de Wet ruimtelijke ordening, is het noodzakelijk inzichtelijk te maken of de kwaliteit van de bodem hier geschikt is voor het voorgenomen gebruik. Het besluitgebied is reeds bestemd als 'Wonen' en derhalve kan beargumenteerd worden dat een woonfunctie hier dan ook al is toegestaan. Echter, voor de activiteit bouwen zal ook een verkennend asbest- en bodemonderzoek noodzakelijk worden geacht. Om deze reden is voor onderhavige procedure (aanvraag omgevingsvergunning 'Handelen in strijd met regels RO') een verkennend asbest- en bodemonderzoek conform NEN5707 en NEN 5740 (Aelmans, rapportnummer E216741.011/HWO, 21 juni 2021) uitgevoerd. De onderzoeksrapportage is toegevoegd als Bijlage 1 bij deze ruimtelijke onderbouwing.

Uit het onderzoek is gebleken dat ten aanzien van grond de hypothese 'onverdacht' op basis van de onderzoeksresultaten wordt verworpen. Echter de lichte verontreinigingen zijn van dien aard, dat deze geen belemmeringen veroorzaken voor de toekomstige realisatie van de woning. Ten aanzien van asbest wordt de hypothese onverdacht bevestigd. Ondanks het feit dat het onderzoek een indicatief karakter heeft kan de hypothese 'onverdacht' geaccepteerd worden. Resumerend kan gesteld worden, dat ondanks de licht verhoogde concentraties in de boven- en ondergrond deze vanuit milieuhygiënisch oogpunt geen belemmering vormt voor het voorgenomen gebruik. Er is derhalve geen aanleiding om over te gaan tot het uitvoeren van een nader onderzoek.

4.3 Geluid

Ten aanzien van geluid zijn de regels uit de Wet geluidhinder (Wgh) van toepassing. De Wgh voorziet rond (gezoneerde) industrieterreinen, langs wegen en langs spoorwegen in zones en bevat tevens geluidsnormen en richtlijnen met betrekking tot de toelaatbare geluidsniveaus van de voorgenoemde geluidsbronnen. Indien een omgevingsvergunning een geluidsgevoelig object mogelijk maakt binnen een geluidszone van een bestaande geluidsbron, of indien de ontwikkeling een nieuwe geluidsbron of wijziging van een bestaande geluidsbron (aanpassing weg) mogelijk maakt, dient volgens de Wgh een akoestisch onderzoek plaats te vinden bij het voorbereiden van de vaststelling van de ruimtelijke onderbouwing.

4.3.1 Wegverkeerslawaai

Deze ontwikkeling voorziet in het planologisch-juridisch mogelijk maken van de bouw van een vrijstaande levensloopbestendige woning. Een woning is een geluidgevoelig object in het kader van de Wet geluidhinder (Wgh). De woning is gelegen binnen de onderzoekszone van de zoneplichtige wegen Brugstraat en Adsteeg. In dat kader is door middel van een akoestisch onderzoek wegverkeerslawaai (Aelmans, rapportnr. M216735.001.002/GGO, d.d. 22 september 2021) de geluidbelasting op de gevel (gevelbelasting) van de woning berekend ten gevolge van het omliggende wegenet voor het jaar 2021 + 10 jaar na realisatie en getoetst aan de normstelling uit de Wet geluidhinder. Tevens is voor de 'nieuwe situatie' bepaald wat de cumulatieve geluidbelasting ter hoogte van de woning is, zodat bezien kan worden of extra geluidwerende maatregelen noodzakelijk zijn. Het akoestisch onderzoek is tevens toegevoegd als Bijlage 2 bij deze ruimtelijke onderbouwing In onderstaande zijn de resultaten en conclusies uit het onderzoek overgenomen.

Uit de toets in het kader van de Wet geluidhinder blijkt dat de geluidbelasting van het wegverkeer op de Brugstraat of andere zoneplichtige wegen de voorkeursgrenswaarde van 48 dB op geen enkele gevel van de woning overschrijdt.

4.3.2 Spoorweglawaai

Het besluitgebied is niet gelegen binnen een onderzoekszone van een spoorweg. Het aspect spoorweglawaai vormt dan ook geen belemmering voor de ontwikkeling.

4.3.3 Industrielawaai

Het besluitgebied is gelegen binnen de geluidzone industrielawaai (50 dB(A)) van Chemelot. De geluidbelasting industrielawaai is 52 dB(A). De voorkeursgrenswaarde van 50 dB wordt met 2 dB overschreden. Een aanvraag om een hogere waardevoor industrielawaai is noodzakelijk.

4.3.4 Luchtvaartlawaai

Tot slot geldt dat het besluitgebied is gelegen binnen de 35-40 Ke contour luchtvaartlawaai van luchthaven Maastricht Aachen Airport. In artikel 4 van het Besluit Geluidbelasting Grote Luchtvaart is geregeld dat in beginsel binnen de 35 Ke-zone géén nieuwbouw van woningen of andere geluidgevoelige bestemmingen mag plaatsvinden. Artikel 5 maakt echter uitzonderingen mogelijk op deze hoofdregel. Met betrekking tot onderhavig planvoornemen kan gebruik worden gemaakt van de uitzondering die artikel 5, sub a, onder 1 biedt. Deze bepaling is namelijk gericht op het realiseren van nieuwbouwwoningen of andere geluidsgevoelige gebouwen die een open plek in de bestaande, te handhaven bebouwing opvullen. Daarmee vormt de 35 Ke-contour van Maastricht Aachen Airport geen belemmeringen voor de realisatie van de beoogde woning

Wel dient in het kader van de aanvraag omgevingsvergunning (activiteit bouwen) in kaart te worden gebracht wat de gevelisolatiewaarde van de te realiseren woning is als gevolg van het vliegtuiglawaai, uitgaande van een geluidbelasting van 35-40 Ke.

De geluidbelasting van het luchtvaartlawaai is in deze situatie veruit maatgevend. Er is geen voorkeursgrenswaarde voor luchtvaartlawaai. Het luchtvaartlawaai wordt gehanteerd voor de gecumuleerde geluidsbelasting als aanvullende afweging bij het vaststellen van hogere grenswaarden. Uit de situering van de te realiseren woning ten opzichte van de 35-Ke contour en de afstanden ten opzichte van de 40 en 35 Ke-contouren volgt een karakteristieke geluidwering van minimaal 32 dB.

4.3.5 Conclusie

In het kader van een goede ruimtelijke ordening en ten behoeve van de bepaling van de benodigde geluidwering van de gevels ten behoeve van een goed woon- en leefklimaat moet worden gerekend met een cumulatieve geluidbelasting van 65 dB op alle gevels.

De maximaal benodigde geluidwering van de gevel (GA;k), is volgens het Bouwbesluit 2012 de hoogste cumulatieve waarde minus 33 dB met een minimum van 20 dB. De geluidbelasting van de gevels van de nieuwe woonfunctie is 65 dB.

Met een aanvullend onderzoek naar de geluidwering van de gevel moet worden aangetoond op welke wijze wordt voldaan het Bouwbesluit en dat het woon- en leefklimaat in de woning is gewaarborgd.

Naar aanleiding hiervan is een aanvullend akoestisch onderzoek verricht naar de geluidwering van de gevels van de woning (Aelmans, rapportnr. M216735.001.006.R1/GGO, d.d. 9 februari 2022, Bijlage 3). Op basis van dit onderzoek is een karakteristieke geluidwering van minimaal 32 dB vereist. In bijlage 3 van dit akoestisch onderzoek is aangetoond dat de karakteristieke geluidwering van de uitwendige scheidingsconstructie, die de scheiding vormt tussen een verblijfsgebied en de buitenlucht, tenminste gelijk is aan 32 dB. In hoofdstuk 4 van het betreffende akoestisch onderzoek zijn de benodigde voorzieningen en de minimale geluidisolatie weergegeven. Alternatieve voorzieningen zijn mogelijk indien de geluidisolatiewaarden minimaal gelijk zijn aan de in dit rapport vermelde RA-waarden. Uiteraard zullen de geluidniveaus, welke uiteindelijk na realisering in de diverse vertrekken ontstaan, afhankelijk zijn van de noodzakelijk goede uitvoering.

4.4 Luchtkwaliteit

Op 15 november 2007 is de Wet luchtkwaliteit in werking getreden, waarmee de hoofdlijnen voor regelgeving rondom luchtkwaliteitseisen zijn beschreven in de Wet milieubeheer (Wm, hoofdstuk 5). Hiermee is het Besluit luchtkwaliteit 2005 vervallen. Artikel 5.16 Wm (lid 1) geeft weer, onder welke voorwaarden bestuursorganen bepaalde bevoegdheden (uit lid 2) mogen uitoefenen. Als aan minimaal één van de volgende voorwaarden wordt voldaan, vormen luchtkwaliteitseisen in beginsel geen belemmering voor het uitoefenen van de bevoegdheid:

  • er is geen sprake van een feitelijke of dreigende overschrijding van een grenswaarde;
  • een project leidt – al dan niet per saldo – niet tot een verslechtering van de luchtkwaliteit;
  • een project draagt 'niet in betekenende mate' (NIBM) bij aan de luchtverontreiniging;
  • een project past binnen het NSL (Nationaal Samenwerkingsprogramma Luchtkwaliteit), of binnen een regionaal programma van maatregelen.

NIBM

Hoofdstuk 5 van de Wet Milieubeheer maakt onderscheid tussen projecten die 'Niet in betekenende mate' (NIBM) en 'In betekenende mate' (IBM) bijdragen aan de uitstoot van luchtverontreinigende stoffen. In de regeling NIBM is een lijst met categorieën van gevallen opgenomen die NIBM zijn. Deze NIBM-projecten kunnen zonder toetsing aan de grenswaarden voor het aspect luchtkwaliteit uitgevoerd worden. Als een project ervoor zorgt dat de concentratie fijn stof of CO2 met meer dan 3% van de grenswaarde verhoogd, draagt het project in betekenende mate bij aan luchtvervuiling en dient er een luchtkwaliteitsonderzoek uitgevoerd te worden. Deze regel komt voort uit het NSL. Deze 3%-grens is voor een aantal categorieën projecten in een ministeriële regeling omgezet in getalsmatige grenzen, bijvoorbeeld:

  • woningbouw: 1.500 woningen netto bij 1 ontsluitingsweg, 3.000 woningen bij 2 ontsluitingswegen;
  • kantoorlocaties: 100.000 m² bruto vloeroppervlak bij 1 ontsluitingsweg, 200.000 m² bruto vloeroppervlak bij 2 ontsluitingswegen.

Onderhavig planvoornemen voorziet in het planologisch-juridisch mogelijk maken van de bouw van slechts één vrijstaande levensloopbestendige woning. Het mogelijk maken van slechts één woning valt binnen het niet in betekenende mate criterium van de Wet milieubeheer. Dit wordt bevestigd door het invullen van de NIBM-tool o.b.v. de verwachte verkeersgeneratie als beschreven in paragraaf 2.2.2

afbeelding "i_NL.IMRO.0888.PBACHTERDEBEEK-ON02_0014.png"

Uitsnede NIBM-tool

Fijn stof

Voor wat betreft de beoordeling van het woon- en leefklimaat ten aanzien van het aspect luchtkwaliteit dient er gelet te worden op de fijnstofconcentraties ter plaatse. Hiervoor is de NSL (Nationaal Samenwerkingsprogramma Luchtkwaliteit) geraadpleegd. Ten westen van het besluitgebied, aan de Burgstraat, zijn meerdere rekenpunten gelegen. Om een beeld te krijgen van de luchtkwaliteit ter plaatse, zijn de fijnstofconcentraties ter plaatse van een nabijgelegen rekenpunt beoordeeld. Uit de NSL-monitoringskaart blijkt dat de jaargemiddelde grenswaarden voor NO2, PM10 (beide 40 ìg/m3) en PM2,5 (20 ìg/m3) ter plaatse van het rekenpunt niet wordt overschreden (zie onderstaande afbeelding). Het aantal overschrijdingsdagen van de 24 uur gemiddelde concentratie is maximaal 6,42 (7)), waardoor het maximum van 35 dagen niet wordt overschreden. De concentratie fijnstof heeft geen negatieve gevolgen voor het woon- en leefklimaat ter plekke van het besluitgebied. Het aspect fijnstof vormt geen belemmering voor onderhavig planvoornemen.

afbeelding "i_NL.IMRO.0888.PBACHTERDEBEEK-ON02_0015.png"

Uitsnede NSL-monitoringstool met besluitgebied bij gele contour

Conclusie

Geconcludeerd wordt dat het aspect luchtkwaliteit (NIBM, fijn stof) geen belemmering vormt voor onderhavig planvoornemen.

4.5 Bedrijven en milieuzonering

Zowel in het kader van een goede ruimtelijke ordening als vanuit milieuwet- en regelgeving wordt gestreefd naar het voorkomen van voorzienbare hinder en gevaar door milieubelastende activiteiten, met als doel het handhaven en waar mogelijk bevorderen van een goede kwaliteit van het leefmilieu. Dit gebeurt onder andere door het fysiek scheiden van milieubelastende activiteiten (zoals bedrijven) en milieugevoelige objecten (zoals woningen) door het aanbrengen van een voldoende ruimtelijke scheiding daartussen. Deze ruimtelijke scheiding bestaat doorgaans uit het aanhouden van een bepaalde afstand, hetgeen ook wel wordt aangeduid als milieuzonering. Die onderlinge afstand moet groter zijn naarmate de milieubelastende functie het milieu sterker belast. Milieuzonering heeft twee doelen:

  • 1. het voorkomen of zoveel mogelijk beperken van hinder en gevaar bij woningen en andere gevoelige functies;
  • 2. het bieden van voldoende zekerheid aan bedrijven dat zij hun activiteiten duurzaam onder aanvaardbare voorwaarden kunnen uitoefenen.

Bij ruimtelijke ontwikkelingen dient derhalve rekening te worden gehouden met milieuzoneringen van bestaande en toekomstige bedrijven, om de kwaliteit van het leefmilieu te garanderen en te bevorderen. Bij de milieuzonering wordt gebruik gemaakt van de door de Vereniging van Nederlandse Gemeenten (VNG) opgestelde handreiking Bedrijven en milieuzonering. Hierin wordt per bedrijf aangegeven wat de milieu-invloed op de omgeving is en welke indicatieve afstand (zogenaamde richtafstand) hierbij minimaal in acht moet worden genomen. Van deze indicatieve afstand kan worden afgeweken indien op basis van een onderzoek de daadwerkelijke afstand kan worden bepaald. Daarnaast geldt voor inrichtingen waar dieren worden gehuisvest geurspecifieke regelgeving, waarin milieuafstanden zijn bepaald.

Indicatieve afstand op basis van Handreiking Bedrijven en milieuzonering

De richtafstanden opgenomen in de VNG-publicatie 'Bedrijven en milieuzonering' zijn afgestemd op de omgevingskwaliteit, zoals die wordt nagestreefd in een rustige woonwijk of een vergelijkbaar omgevingstype (zoals een rustig buitengebied, een stiltegebied of een natuurgebied).

Indien de aard van de omgeving dit rechtvaardigt, kunnen gemotiveerd kleinere richtafstanden worden aangehouden bij het omgevingstype gemengd gebied, dat gezien de aanwezige functiemenging of ligging nabij milieu-inrichtingen of drukke wegen, al een hogere milieubelasting kent.

Een gemengd gebied is een gebied met een matige tot sterke functiemenging. Direct naast gevoelige functies komen belastende functies voor, die om die reden een milieuzone kennen; zoals winkels, horeca en bedrijven. Gebieden die direct langs de hoofdinfrastructuur liggen behoren eveneens tot het omgevingstype gemengd gebied. De richtafstanden kunnen, zonder dat dit ten koste gaat van het woon- en leefklimaat, met één afstandsstap worden verlaagd, indien sprake is van het omgevingstype gemengd gebied.

De VNG-publicatie merkt bij stap 1 op dat overwogen kan worden om de richtafstanden met één afstandstap te verlagen (50 meter wordt dan 30 meter) in het geval dat de omgeving van de woning als een 'gemengd gebied' kan worden beschouwd. In voorliggend geval is echter sprake van een rustige woonomgeving.

Toetsing effecten van omliggende functies

Een woning wordt beschouwd als hindergevoelige functie en om deze reden zijn hinderveroorzakende functies in de omgeving van het besluitgebied nader beschouwd. Ten noorden van het besluitgebied is een kerk gelegen. Een kerk wordt op basis van de VNG publicatie ingeschaald onder de milieucategorie 2 met een grootste richtafstand voor geluid van 30 meter. De afstand van het besluitgebied tot de kerk bedraagt ca. 33 meter. Hiermee wordt aan de richtafstand voldaan.

Verder geldt dat ten zuiden van het besluitgebied een multifunctioneel centrum is gelegen. Binnen het multifunctioneel centrum zijn maatschappelijke functies gevestigd zoals een heemkundemuseum, een gymzaal, een computer doe- en leercentrum en een bijeenkomstruimte voor de Katholieke Bond van Ouderen. Deze functies worden ingeschaald onder de milieucategorie 1, waarvoor een grootste richtafstand geldt van 10 meter. De afstand van het multifunctioneel centrum tot de geprojecteerde woning bedraagt ca. 25 meter. Hiermee wordt ruimschoots aan de richtafstand voldaan.

Ten aanzien van het multifunctioneel centrum geldt dat deze is gevestigd binnen de bebouwing van een voormalige basisschool. Ter plekke geldt de bestemming 'Maatschappelijk', op basis waarvan bedrijfsactiviteiten in de milieucategorie 2 met bijbehorende grootste richtafstand formeel zijn toegestaan. In theorie zou zich hier in de toekomst opnieuw een basisschool of sporthal kunnen vestigen. Echter geldt dat in de huidige situatie het maatschappelijke perceel reeds wordt omsloten door woningen (gelegen op een afstand van <10 meter). Deze woningen vormen een belemmering voor een eventuele vestiging van opnieuw een basisschool dan wel sporthal (of andere maatschappelijke functie in de milieucategorie 2) op de locatie. Gezien het feit dat de vestiging van een hinderveroorzakende (maatschappelijke) functie in de milieucategorie 2 op deze locatie op basis van de bestaande situatie niet mogelijk is, zal dit ook geen belemmering vormen voor de realisatie van één vrijstaande levensloopbestendige woning binnen het besluitgebied.

Omgekeerd vormt de te realiseren woning geen belemmering voor het hinderveroorzakende functies in de omgeving omdat reeds op kortere afstand woningen gelegen zijn die maatgevend zijn voor deze bedrijven.

Conclusie

Er wordt voldaan aan de indicatieve richtafstanden op basis van de VNG publicatie Bedrijven en milieuzonering ten opzichte van hinderveroorzakende functies. Verder geldt dat de toevoeging van de vrijstaande levensloopbestendige woning niet leidt tot nadelige milieueffecten op omliggende functies en er geen bedrijven in hun duurzame bedrijfsvoering worden geschaad. Op grond van voorgaande wordt geconcludeerd dat vanuit het aspect 'Bedrijven en milieuzonering' sprake is van een goed woon- en leefklimaat en dat dit aspect geen belemmering vormt voor onderhavige ontwikkeling.

4.6 Externe veiligheid

Wettelijk kader

Bij de ruimtelijke planvorming moet rekening worden gehouden met het aspect externe veiligheid. Het externe veiligheidsbeleid richt zich op het voorkomen en beheersen van risicovolle bedrijfsactiviteiten en risicovol transport. Daarbij gaat het om de risico's verbonden aan 'risicovolle inrichtingen', waar gevaarlijke stoffen worden geproduceerd, opgeslagen of gebruikt en anderzijds om het 'vervoer van gevaarlijke stoffen' via wegen, spoorwegen, waterwegen en buisleidingen. Het uitgangspunt van wet- en regelgeving en beleid ten aanzien van externe veiligheid is scheiding van kwetsbare functies en risicobronnen, waarmee men het volgende wil bereiken:

  • bescherming van personen die zich bevinden in de nabijheid van een risicobron tegen de kans op overlijden ten gevolge van een ongeval met gevaarlijke stoffen of ten gevolge van een ongeval met een vliegtuig op of nabij een luchthaven;
  • bescherming van de samenleving tegen het ontwrichtende effect van een dergelijk ongeval met een groot aantal slachtoffers.

Om de mogelijke risico's in kaart te brengen is een inventarisatie van risicobronnen rondom het besluitgebied uitgevoerd waarbij gebruik is gemaakt van de “Risicokaart Nederland” - www.risicokaartnederland.nl (samenwerking van het Rijk, de provincies en de gemeenten). Op basis van de risicokaart is inzichtelijk gemaakt welke risicobronnen zich in de omgeving van het besluitgebied bevinden.

afbeelding "i_NL.IMRO.0888.PBACHTERDEBEEK-ON02_0016.png"

Uitsnede risicokaart met besluitgebied bij blauwe ster

Er moet getoetst worden aan het Bevi, Bevt en Bevb wanneer bij een ontwikkeling (beperkt) kwetsbare objecten worden toegestaan. Woningen zijn kwetsbare objecten, waarvoor de effecten op het gebied van externe veiligheid moeten worden getoetst.

Inrichtingen

Op basis van de risicokaart wordt geconcludeerd dat er geen risicovolle objecten in de directe omgeving van het besluitgebied aanwezig zijn. Het besluitgebied is op geruime afstand (> 700 meter), buiten de zonering c.q. het invloedsgebied van de risicovolle inrichtingen gelegen. Ten noorden van het besluitgebied ligt het bedrijventerrein Chemelot, waar sprake is van risicovolle activiteiten. Het terrein van Chemelot valt onder het Besluit Risico's Zware Ongevallen en onder het Bevi. Volgens de gegevens van de risicokaart reikt de plaatsgebonden risicocontour 10-6 van de site niet over het besluitgebied. Ook kan gesteld worden dat het besluitgebied buiten de plaatsgebonden risicocontour 10-8 (invloedsgebied) van de site Chemelot is gelegen. Wel is het besluitgebied binnen het toxisch effectgebied van de site Chemelot gelegen. Een verantwoording van het groepsrisico conform artikel 13 van het Bevi is niet aan de orde.

Buisleidingen

De dichtstbijzijnde buisleiding is gelegen op ongeveer 700 meter ten noordwesten van het besluitgebied en betreft een hogedrukaardgasleiding van de Gasunie (Z-530). Het besluitgebied bevindt zich daarmee buiten het invloedsgebied van deze gasleiding en het bijbehorende gasontvangststation. Het invullen van de verantwoordingsplicht voor het groepsrisico van rsicovol transport per (buis)leiding is dan ook niet aan de orde.

Spoor

Op een afstand van ongeveer 1,3 km ten noordwesten van het besluitgebied ligt de spoorlijn Maastricht-Eindhoven, waarover in beperkte mate transport van gevaarlijke stoffen plaatsvindt. De plaatsgebonden risicocontour 10-7 ligt op minder dan 14 meter van de as van het spoor, wat betekent dat deze contour geen besluit legt op de ruimte buiten de spoorbaan zelf. De plaatsgebonden risicocontour 10-8 bedraagt 190 meter (route 100, trajectnummer D) en valt daardoor niet over de gronden gelegen binnen het besluitgebied. Het invloedsgebied van deze spoorlijn wordt bepaald door het vervoer van toxische gassen B2 en bedraagt 995 meter. Hiermee is het besluitgebied niet gelegen binnen het invloedsgebied van deze spoorlijn en is een beperkte verantwoording van het groepsrisico niet aan de orde. Er is geen plaatsgebonden risicocontour van 10-6 vastgesteld voor de spoorlijn Maastricht-Eindhoven.

Water

Er is in de directe omgeving van het besluitgebied geen water gelegen, waarover transport van gevaarlijke stoffen plaatsvindt, dat een belemmering kan vormen voor het voorgenomen planvoornemen.

Wegverkeer

Ten westen van het besluitgebied ligt op ongeveer 800 meter afstand de A2. Ten noorden van het besluit gebied ligt de A76 op een afstand van ongeveer 2 kilometer. Over deze wegen vindt transport van gevaarlijke stoffen plaats. Op basis van het Basisnet Weg, hebben deze transportroutes ter hoogte van het besluitgebied een plaatsgebonden risicocontour 10-6 van 0 meter. Verder is ter plaatse sprake van een plasbrandaandachtsgebied, waarvan de breedte 30 meter bedraagt, gemeten vanaf de buitenste kantstrepen. Het plasbrandaandachtsgebied is het gebied waarin bij het realiseren van kwatsbare objecten rekening gehouden dient te worden met de effecten van zogenaamde plasbrand. Deze plasbrand kan ontstaan door de ontsteking van uitgestroomde brandbare vloeistof uit een tankwagen. Gezien de afstand tussen het besluitgebied en de A2 zijn de gronden binnen het besluitgebied niet gelegen binnen het plasbrandaandachtsgebied of de plaatsgebonden risicocontour 10-6. Hetzelfde geldt voor de noordelijk gelegen A76, welke op iets grotere afstand is gelegen.

Aangezien verder sprake is van een ligging op meer dan 200 meter van de A2 en A76, dient in verband met de ligging binnen het invloedsgebied (van het vervoer van toxische vloeistoffen en toxische gassen) op basis van artikel 7 en 8 van het Bevt, wel een beperkte verantwoording van het groepsrisico plaats te vinden. Deze verantwoording van het groepsrisico vindt hierna plaats.

Verantwoording groepsrisico

Gezien de ligging van het besluitgebied binnen het invloedsgebied van de A2 en de A76 is op basis van artikel 7 en 8 van het Bevt een verantwoording van het groepsrisico noodzakelijk. Op basis van artikel 8, lid 2, onderdeel b van het Bevt kan worden volstaan met een beperkte verantwoording van het groepsrisico. Bovendien is advies aangevraagd bij de Veiligheidsregio Zuid-Limburg.

Zoals reeds beschreven, is voor de A2 en de A76 een beperkte verantwoording van het groepsrisico noodzakelijk. Bij een dergelijke verantwoording dient op basis van artikel 7 van het Bevt aandacht besteed te worden aan de volgende items:

  • 1. De mogelijkheden ter voorbereiding van bestrijding en beperking van de omvang van een ramp of zwaar ongeval (bestrijdbaarheid).
  • 2. De mogelijkheid van personen binnen het invloedsgebied om zichzelf in veiligheid te brengen (zelfredzaamheid).

Ad 1: bestrijdbaarheid

Voor wat betreft de A2 en A76 bestaan er met name risico's in verband met ongelukken:

  • met brandbare vloeistoffen;
  • met brandbaar gas (BLEVE);
  • met giftige gassen en vloeistoffen (toxisch scenario)

De kans op overlijden ten gevolge van een incident met gevaarlijke stoffen binnen het besluitgebied is zeer klein. Er bestaan geen feitelijke mogelijkheden om in het kader van deze afwijking van het bestemmingsplan de mogelijkheden tot voorbereiding van bestrijding en beperking van de omvang van een ramp direct te beïnvloeden. De bestrijding vindt voor zover mogelijk plaats bij de risicobron. Hierbij dient te worden opgemerkt dat het besluitgebied bij eventuele calamiteiten over het algemeen goed bereikbaar is voor hulpdiensten via de bestaande infrastructuur.

Ad 2: zelfredzaamheid

Bij het beschrijven van de mogelijkheden tot zelfredzaamheid is het van belang om in te gaan op de verschillende soorten calamiteiten, zijnde calamiteiten:

  • met brandbare vloeistoffen;
  • met brandbaar gas (BLEVE);
  • met giftige gassen en vloeistoffen (toxisch scenario).

Indien bij een calamiteit met brandbare vloeistoffen personen betrokken zijn, dienen zij zich in veiligheid te brengen door zich van de bron af te wenden. Hierbij dient de hulpverlening de risicocommunicatie in te zetten ter bevordering van het juiste zelfreddende gedrag. De mogelijkheden tot zelfredzaamheid bij een BLEVE bestaan met name uit vluchten en in tweede instantie uit schuilen in combinatie met het sluiten van ramen en deuren. Voor het vluchten geldt dat dit bij voorkeur tot buiten het directe invloedsgebied dient plaats te vinden. Het besluitgebied is goed ontsloten en er zijn vluchtroutes in meerdere richtingen aanwezig.

Voor blootstelling aan een toxische gaswolk (het bepalende scenario), is “schuilen” in combinatie met het sluiten van ramen en deuren de enige juiste methode. Schuilen vindt plaats binnen bouwwerken. De mate waarin deze bouwwerken afsluitbaar zijn tegen de indringing van toxisch gas en de tijdsduur dat deze bouwwerken worden blootgesteld zijn hierbij parameters.

Van belang is verder dat bewoners tijdig gewaarschuwd worden. Dit gebeurt door het in werking stellen van het WAS (Waarschuwing- en AlarmeringSysteem) als onderdeel van de algemene Rampenbestrijding en mogelijk in de toekomst via NL-alert. Verder informeert de veiligheidsregio c.q. gemeente haar inwoners over de handelingsstrategie bij calamiteiten.

Tevens is ter voorbereiding advies gevraagd aan de Veiligheidsregio Zuid-Limburg vanwege de ligging in het invloedgebied van de A2 en A76. In haar advies van 4 februari 2021 geeft de veiligheidsregio aan dat geadviseerd wordt om ten aanzien van een toxisch scenario binnen te schuilen totdat aangegeven wordt dat het weer veilig is en dat het besluitgebied voldoende bereikbaar is (van twee zijden). Daarnaast is er voldoende bluswater aanwezig om voor een eventuele brand te bestrijden. Wel wordt vanuit de brandweer geadviseerd om de woning uit te voeren met een afsluitbare ventilatie die centraal kan worden gestuurd. De ventilatieopeningen (aanzuiging) dien (indien mogelijk) niet aan de zijde van de risicobronnen (A2, A76) te worden aangebracht.

Gevolg planvoornemen

Het aspect 'externe veiligheid' vormt geen belemmering voor het planvoornemen.

4.7 Ecologie

4.7.1 Inleiding

Bij elk ruimtelijk plan moet, met het oog op beschermenswaardige natuurwaarden, rekening worden gehouden met de regelgeving op het gebied van gebiedsbescherming en soortenbescherming. Dit wordt geregeld in de Wet natuurbescherming die op 1 januari 2017 in werking is getreden. Het natuurbeschermingsrecht is verder te vinden in verdragen, Europese en nationale regelgeving en in nationaal en provinciaal beleid. Vanuit de Europese regelgeving wordt met name nadruk gelegd op de bescherming van plant- en diersoorten (Vogelrichtlijn) en leefgebieden (Habitatrichtlijn). Ten behoeve hiervan zijn dan ook diverse beschermingsgebieden aangewezen. De belangrijkste beschermingszones zijn Natura 2000-gebieden.

4.7.2 Gebiedsbescherming

Het besluitgebied ligt niet in de nabijheid van Natura 2000-gebieden. De dichtsbijzijnde Natura 2000-gebieden zijn 'Bunder- en Elslooërbos' op ca. 2,6 km in westelijke richting en 'Geleenbeekdal' op ca. 3,2 km in noordoostelijke richting. Effecten voor licht en geluid zijn vanwege de afstand tezamen met de aard van de ingreep (realisatie van één vrijstaande levensloopbestendige woning) uit te sluiten. Negatieve effecten ten aanzien van stikstof zijn op voorhand niet uit te sluiten. Om deze reden is door Pouderoyen Tonnaer een onderzoek naar stikstofdepositie uitgevoerd. Het onderzoek is bijgevoegd als Bijlage 4. Uit het onderzoek blijkt dat het planvoornemen niet leidt tot een toename in stikstofdepositie op Natura 2000-gebieden. Vervolgonderzoek wordt daarom niet noodzakelijk geacht.

Negatieve effecten ten gevolge van stikstof op de instandhoudingsdoelen van Natura2000-gebieden kunnen op basis van het voorgaande worden uitgesloten, waardoor een vergunning in het kader van de Wet natuurbescherming niet vereist.

4.7.3 Soortenbescherming

De bescherming van dier- en plantensoorten is eveneens in de Wet natuurbescherming geregeld. In deze wet zijn drie beschermingsregimes opgenomen: voor vogels in de zin van de Vogelrichtlijn, voor dier- en plantensoorten uit de Habitatrichtlijn en voor overige soorten. Kort gezegd is het verboden om beschermde diersoorten opzettelijk te doden, te vangen of te verstoren. Hun voortplantings- en rustplaatsen mogen niet (opzettelijk) worden beschadigd of vernield. Verder is het verboden beschermde plantensoorten te vernielen. Onder voorwaarden is ontheffing van de verbodsbepalingen mogelijk. Het bevoegd gezag voor het verlenen van een ontheffing zijn gedeputeerde staten van de provincie.

Het besluitgebied is gelegen binnen bebouwd gebied en in de huidige situatie in gebruik als tuin bij de woning aan Achter de Beek 5. De ondergrond bestaat uit gazon, verhardingen en beplanting. Deze hebben geen natuurwaarde. Het geheel wordt regelmatig onderhouden. Gezien de ligging in bebouwd gebied (nabij het centrum van Beek), het gebruik en het regelmatige onderhoud zijn er geen beschermde dier- en plantensoorten binnen het besluitgebied aanwezig. Indien eventueel beplanting gerooid moet worden, dient dit wel buiten het broedseizoen te gebeuren.

Het aspect soortenbescherming vormt geen belemmering voor onderhavige ontwikkeling gezien de ligging in bestaande bebouwd gebied, het ontbreken van natuurwaarden en het regelmatige onderhoud.

4.7.4 Conclusie

Het aspect ecologie (gebieds- en soortenbescherming) vormt geen belemmering voor het planvoornemen.

4.8 Archeologie en cultuurhistorie

4.8.1 Archeologie

Het archeologisch erfgoed wordt binnen Nederland als zeer waardevol beschouwd. De Wet op de Archeologische Monumentenzorg (WaMZ) legt de verantwoordelijkheid voor de bescherming van het archeologische erfgoed bij de gemeente. Zo verplicht de WaMZ om bij de vaststelling van een bestemmingsplan of bij afwijking daarvan rekening te houden met in de bodem aanwezige of te verwachten archeologische waarden. De feitelijke bescherming daarvan krijgt gestalte door het opnemen van regels in het bestemmingsplan ten behoeve van de afgifte van omgevingsvergunningen in die gebieden die als archeologisch waardevol zijn aangemerkt. De op 1 juli 2016 in werking getreden Erfgoedwet heeft de Monumentenwet 1988 deels vervangen als het gaat om archeologie. In de Erfgoedwet is vastgelegd wat onder cultureel erfgoed (waar archeologie onder valt) wordt verstaan. Onderdelen van de Monumentenwet 1988 die de omgang met archeologie in de fysieke leefomgeving betreffen, gaan naar de Omgevingswet die naar verwachting pas in 2021 van kracht wordt. Voor een aantal onderdelen (onder andere bestemmingsplannen) is voor de periode tot inwerkingtreding van de Omgevingswet een overgangsregeling in de Erfgoedwet opgenomen.

afbeelding "i_NL.IMRO.0888.PBACHTERDEBEEK-ON02_0017.png"

Uitsnede archeologische beleidskaart Beek met besluitgebied bij rode contour

Op basis van de archeologische beleidsadvieskaart (zie bovenstaande afbeelding) wordt geconcludeerd dat het besluitgebied een gebied van archeologische waarde betreft. Zodoende is er binnen het besluitgebied ook de dubbelbestemming ‘Waarde – Archeologie 1’ opgenomen. Op basis van deze bestemming geldt dat bodemverstorende ingrepen kleiner dan 250 m2 en het bouwen van gebouwen ter vervanging van bestaande gebouwen, waarbij de bestaande oppervlakte van het gebouw niet wordt vergroot of veranderd en waarbij de onderbouw van het gebouw ook niet dieper reikt dan de bestaande onderbouw, zijn toegestaan.

Conclusie

Uitgaande van de footprint van de beoogde woning (12*10=120 m2) en garage (8*4=32 m2) bedraagt het te bebouwen oppervlak ca. 152 m2. Redelijkerwijs wordt aangenomen dat het te verstoren bodemoppervlak < 250 m2 bedraagt, waardoor geen archeologische onderzoeksplicht geldt. Te allen tijde geldt dat bij toevalsvondsten deze per direct gemeld dienen te worden bij het bevoegde gezag conform de Erfgoedwet, paragraaf 5.4, artikel 5.10.

Geconcludeerd wordt dat het aspect 'archeologie' geen belemmering vormt voor het planvoornemen.

4.8.2 Cultuurhistorie

Op 5 juli 2011 is een wijziging van het Besluit ruimtelijke ordening (Bro) gepubliceerd. Vanaf 1 januari 2012 moet ieder nieuw bestemmingplan of afwijking een analyse van cultuurhistorische waarden bevatten. In aansluiting op de vaststelling van de Wet tot wijziging van de Monumentenwet 1988 en de Wet algemene bepalingen omgevingsrecht in mei 2011 zijn op 17 juni 2011 het Bro, het Besluit omgevingsrecht (Bor) en het Besluit archeologische monumentenzorg aangepast.

Door een wijziging van het Bro moeten cultuurhistorische waarden voortaan vooraf in het proces van ruimtelijke ordening worden meegenomen, met name bij de voorbereiding en vaststelling van bestemmingsplannen dan wel afwijking van een bestemmingsplan. Het Bro bevat eisen waaraan de voorbereiding van een bestemmingsplan of afwijking moet voldoen. Zo wordt er onder meer een beschrijving verlangd van de manier waarop met de in het gebied aanwezige cultuurhistorische waarden en in de grond aanwezige of te verwachten monumenten wordt omgegaan. De wetgever wil hiermee bereiken dat aandacht voor cultuurhistorische waarden voortaan in het planproces naar voren wordt gehaald.

Inventarisatie

Het besluitgebied is onbebouwd en in gebruik als tuin. Binnen het besluitgebied zijn geen cultuurhistorisch waardevolle elementen aanwezig. Ten westen van het besluitgebied (Aan de Beek 3-5) is een beeldbepalend pand aanwezig. Met de realisatie van de levensloopbestendige woning ten oosten van het beeldbepalend pand, wordt geen afbreuk gedaan aan de hier aanwezige cultuurhistorische waarden.

Conclusie

Het aspect cultuurhistorie vormt dan ook geen belemmering voor de beoogde ontwikkeling.

4.9 Water

4.9.1 Inleiding

Water vormt een steeds belangrijker aspect bij ontwikkelingen op onder meer het gebied van woningbouw en bedrijventerreinen. Belangrijke thema’s zijn: het vasthouden in plaats van direct afvoeren van hemelwater, het hergebruik van water, het zuinig omgaan met drinkwater en het beperken van de onttrekking van grondwater. Het is dan ook verplicht om bij nieuwe ruimtelijke ontwikkelingen in de toelichting c.q. ruimtelijke onderbouwing aan te geven op welke wijze rekening is gehouden met de gevolgen van het plan voor de waterhuishouding. Deze verantwoording wordt ook wel de waterparagraaf genoemd. Deze paragraaf kan als waterparagraaf worden beschouwd.

4.9.2 Watertoets

Het doel van de watertoets is om water een uitgesproken en inhoudelijk betere plaats te geven bij het opstellen en beoordelen van alle waterhuishoudkundig relevante plannen. De watertoets vraagt niet alleen een beschrijving van de waterhuishoudkundige situatie en de invloed die de voorgestane ruimtelijke ontwikkelingen hebben, maar ook een vroegtijdig overleg met waterbeheerders.

Beleid Waterschap Limburg

Het besluitgebied valt onder het beheer van Waterschap Limburg. Het beleid van het waterschap is gericht op het zo lang mogelijk vasthouden van gebiedseigen water, gecombineerd met het zoveel mogelijk scheiden van schoon en verontreinigd water. Het beleid van het waterschap is opgenomen in het Waterbeheerplan 2016-2021 en nader geconcretiseerd in de zogenoemde Keur van het waterschap. Uitgangspunten van het Waterschap Limburg met betrekking tot het waterbeheer zijn onder andere:

  • 1. Circa 10% van het plangebied reserveren voor water
  • 2. Rekening houden met hoogteverschillen in plangebied en omgeving
  • 3. Uitvoeren van bodem- en infiltratieonderzoek en bepalen grondwaterstand
  • 4. Toepassen voorkeursvolgorde voor de waterkwaliteit
  • 5. Toepassen voorkeursvolgorde voor de waterkwantiteit
  • 6. Toepassen voorkeurstabel afkoppelen
  • 7. Infiltratie- en bergingsvoorzieningen in het plan dimensioneren op 80 mm per twee uur (ten zuiden van Sittard), met een beschikbaarheid van de gehele berging binnen 24 uur
  • 8. Beheer en onderhoud regelen. Denk aan bereikbaarheid, controlemogelijkheid, verantwoordelijkheid
  • 9. Watersysteem verankeren in het bestemmingsplan

Kenmerken van het watersysteem

Grondwater en waterkwaliteit

Het besluitgebied ligt niet binnen een waterwingebied, een grondwaterbeschermingsgebied of een boringsvrije zone. Het is van belang in het besluitgebied verontreiniging als gevolg van afstromend hemelwater te voorkomen. Om de waterkwaliteit te garanderen wordt geadviseerd bij de aanleg van de in het besluitgebied te realiseren gebouwen geen gebruik te maken van uitlogende materialen. Daarnaast dient het gebruik van strooizout en chemische onkruidbestrijdingsmiddelen in het besluitgebied zoveel mogelijk te worden voorkomen.

Oppervlaktewater

In het besluitgebied zelf is geen primair oppervlaktewater aanwezig. Daarnaast wordt in de toekomstige situatie ook niet voorzien in nieuw oppervlaktewater binnen het besluitgebied. Uit zowel de POVI als de Omgevingsverordening Limburg 2014 blijken geen belemmeringen voor het besluitgebied.

In het straatprofiel van de weg is de Keutelbeek gelegen. Dit betreft een primaire watergang met bijbehorende beschermingszone. Deze beek is in het beheer van het Waterschap Limburg. De beekloop is enkele jaren geleden zichtbaar gemaakt in het straatprofiel van de straat Achter de Beek. De beschermingszone van de beek is niet over het besluitgebied gelegen. Wel is bij extreme buien sprake van enige wateroverlast omdat het verval van de straat Achter de Beek relatief groot is in combinatie met de smalle loop. Hierdoor loopt het water dan af via het wegdek. Ter hoogte van het besluitgebied is daarom voorzien in een klein keermuurtje en ter hoogte van de oprit in een afvoergoot waarin het water opgevangen kan worden. Hierdoor is het besluitgebied bij extreme buien voldoende beschermd tegen eventueel wateroverlast bij extreme buien. Om te voorkomen dat er eventueel wateroverlast in de te realiseren vrijstaande levensloopbestendige woning zal ontstaat, zal het peil van de woning minimaal 0,5 meter boven het peil van de weg gesitueerd worden.

afbeelding "i_NL.IMRO.0888.PBACHTERDEBEEK-ON02_0018.png"

Legger waterschap Limburg met globale aanduiding besluitgebied (rode contour)

afbeelding "i_NL.IMRO.0888.PBACHTERDEBEEK-ON02_0019.png"

Waterloop Keutelbeek in straatprofiel

afbeelding "i_NL.IMRO.0888.PBACHTERDEBEEK-ON02_0020.png"

Kolk met keermuurtje ter hoogtevan besluitgebied

Hemelwater- en afvalwater

Op 25 oktober 2015 is de uitvoeringsnotitie ‘Verwerken hemelwater particulier terrein bij nieuwbouw’ vastgesteld voor de Westelijke Mijnstreek. Deze uitvoeringsnotitie geeft invulling aan in wetgeving en gemeentelijk beleid verankerde voorschriften voor particulieren aangaande verwerking van hemelwater. Daarin ligt vast dat particulieren bij nieuwbouw hemelwater op eigen terrein moeten bergen. Het regenwater dat afstroomt van de daken en verhardingen zal daarom binnen het besluitgebied worden opgevangen en geïnfiltreerd middels een infiltratiesysteem. Het regenwater zal in geen geval afgegeven mogen worden op het gemeentelijke rioleringsstelsel.

Op 1 april 2019 zijn de nieuwe Beleidsregels Keur Waterschap Limburg 2019 in werking getreden. In deze beleidsregels is vastgesteld dat de bergings-/infiltratievoorziening minimaal gedimensioneerd dient te worden op een neerslaggebeurtenis met een herhalingstijd van eens in de 100 jaar gebaseerd op het gemiddelde klimaatscenario 2050. Voor de regio Zuid-Limburg geldt bij maatwerk een buiduur van twee uur, zijnde 80 mm.

Om de capaciteit van de beoogde hemelwatervoorziening te kunnen berekenen, wordt uitgegaan van de vuistregel dat 50% van het bouwperceel bebouwd c.q./verhard wordt. Dit betreft een oppervlakte van 290 m2 (0,5 x 580). Dit oppervlak impliceert een hoeveelheid te bufferen en af te voeren hemelwater van 23,2m3 (290 x 0,08). Deze benodigde capaciteit zal op eigen terrein worden aangelegd in de vorm van enerzijds een groen dak en anderzijds door het aanbrengen van infiltratiekratten onder de (bestaande) op/inrit. Het hemelwater van het dak kan door het groene dak vertraagd worden afgevoerd naar de infiltratiekratten van waaruit het hemelwater in de bodem kan infiltreren. De infiltratiekratten worden daarbij aangelegd conform onderstaand principe.

afbeelding "i_NL.IMRO.0888.PBACHTERDEBEEK-ON02_0021.png"

Voorbeeldtekening

Verder dient de infiltratievoorziening van een noodoverstort te worden voorzien. Bij (eventuele) zeer intensieve buien (T>100), zal de infiltratievoorziening het toestromende hemelwater mogelijk niet kunnen verwerken en kan het hemelwater gecontroleerd naar elders afstromen. Er wordt gekozen voor een ondergrondse overstort op het gemeentelijk riool, welke wordt voorzien van een terugslagklep.

Conclusies en overleg met de waterbeheerder

Gezien de ontwikkeling voorziet in een toename van het verhard oppervlak die kleiner is dan 2.000 m2 is overleg met het waterschap niet noodzakelijk.

Hoofdstuk 5 Uitvoerbaarheid

Naast het toetsen van een omgevingsvergunning in afwijking van het bestemmingsplan aan diverse milieu- en veiligheidsaspecten, dient de aanvraag van de omgevingsvergunning ook getoetst te worden aan de uitvoerbaarheid van het project. Hierbij wordt gekeken naar de economische uitvoerbaarheid en de maatschappelijke uitvoerbaarheid.

5.1 Economische uitvoerbaarheid

Ingevolge het bepaalde in artikel 3.1.6 van het Besluit ruimtelijke ordening dient inzicht te worden gegeven over de uitvoerbaarheid van het plan. Hiermee wordt mede de financiële uitvoerbaarheid bedoeld. Er is sprake van een omgevingsvergunning dat een bouwplan mogelijk maakt. Het bouwplan wordt op kosten van initiatiefnemer uitgevoerd.

Het exploitatieplan biedt de grondslag voor het publiekrechtelijk kostenverhaal. In artikel 6.12, eerste en tweede lid, Wro is bepaald in welke situatie een exploitatieplan gemaakt moet worden. In artikel 6.2.1 Bro worden de bouwplannen aangewezen waarvoor de gemeenteraad een exploitatieplan moet vaststellen. Een exploitatieplan wordt gelijktijdig vastgesteld met het ruimtelijk plan of besluit waarop het betrekking heeft. In welke gevallen kan worden afgezien van het vaststellen van een exploitatieplan is eveneens vastgelegd in de Wro c.q. het Bro. Van het vaststellen van een exploitatieplan kan worden afgezien indien het verplichte kostenverhaal anderszins is verzekerd. Daaraan wordt voldaan wanneer met de initiatiefnemer een zogenoemde anterieure overeenkomst wordt gesloten waarin het in kostenverhaal wordt voorzien.

Tussen de gemeente Beek en initiatiefnemer wordt een anterieure overeenkomst gesloten, een exploitatieplan is hierdoor niet meer nodig. Eventuele planschadeclaims komen volledig voor rekening van de initiatiefnemer. Dit wordt eveneens vastgelegd in de anterieure overeenkomst. Hiermee is de financiële uitvoerbaarheid gewaarborgd.

5.2 Maatschappelijke uitvoerbaarheid

Het project voorziet in de bouw van één vrijstaande levensloopbestendige woning op een 'open plek' in de bebouwing aan de straat Achter de Beek te Beek. Daarmee wordt zowel kwantitatief als kwalitatief voorzien in de actuele woningbehoefte. De levensloopbestendige woning wordt gerealiseerd op het terrein ten oosten van de woning Achter de Beek 5 (nu in gebruik als tuin). Met de bouw van de woning wordt een open plek in de bestaande stedelijke structuur van de straat Achter de Beek op een stedenbouwkundige verantwoorde manier ingevuld. Met deze ontwikkeling vindt geen wijziging plaats van de bestaande ruimtelijke structuur en daardoor is er geen sprake van een grootschalige ontwikkeling.

De gronden waarop de vrijstaande levensloopbestendige woning is voorzien, worden gekocht van de eigenaar van het perceel Achter de Beek 5. Door de verkoop van deze gronden ten behoeve van de realisatie van de vrijstaande levensloopbestendige woning geeft de huidige eigenaar van het perceel in feite zijn medewerking aan de realisatie van de woning. Verder zijn de andere buren (overzijde en belendend perceel oostzijde) geinformeerd over het planvoornemen. Zij hebben aangegeven geen bezwaar te hebben tegen de realisatie van een vrijstaande levensloopbestendige woning op deze open plek.

Mocht iemand nog bedenkingen hebben ten aanzien van het project dan kan ten aanzien van het ontwerpbesluit een zienswijze kenbaar worden gemaakt en na verlening van de omgevingsvergunning eventueel bezwaar en beroep worden ingesteld.

Hoofdstuk 6 Procedure

6.1 De te volgen procedure

Deze ruimtelijke onderbouwing is opgesteld als onderdeel van de aanvraag ten behoeve van de noodzakelijke omgevingsvergunning voor de realisatie van een vrijstaande levensloopbestendige woning. De Wet algemene bepalingen omgevingsrecht (Wabo) bevat twee procedures voor het verkrijgen van een omgevingsvergunning, te weten de reguliere en de uitgebreide procedure. In het onderhavige geval, waarbij afgeweken wordt van het geldende bestemmingsplan, dient de uitgebreide procedure te worden gevolgd.

6.2 Ontwerp

De omgevingsvergunning (ontwerpbesluit) wordt, inclusief deze ruimtelijke onderbouwing met bijbehorende bijlagen, conform de uitgebreide procedure gedurende zes weken ter inzage gelegd. Gedurende deze termijn kan een ieder reageren op het ontwerpbesluit en zijn of haar zienswijzen indienen.