| Plan: | Markt 11 |
|---|---|
| Status: | vastgesteld |
| Plantype: | omgevingsvergunning |
| IMRO-idn: | NL.IMRO.0888.PBTERRASMARKT11-VA01 |
Bij de gemeente Beek is een verzoek binnengekomen om in het voormalige ABN AMRO kantoor vier woningen op de bovenetages van het pand aan de Markt 11 te realiseren. Tevens zal op de begane grond een horeca en detailhandel gerealiseerd worden. Vanwege de vigerende bestemming 'Centrum - 1' met de functieaanduiding 'kantoor' is het realiseren van horeca en detailhandel wel toegestaan, maar de realisatie van vier woningen op de bovenetages in het voormalige kantoorpand qua beleid en gebruik niet rechtstreeks toestaan. Ten behoeve van dit planvoornemen moet derhalve een aanvraag voor een omgevingsvergunning in afwijking van het bestemmingsplan gedaan worden, met kennisgeving van de zogenaamde 'kruimelgevalbepaling' ( artikel 4, lid 9 van hoofdstuk IV, bijlage II Besluit omgevingsrecht juncto artikel 2.12, eerste lid, onder a, onder 2 Wabo).
Bij schrijven van 24 maart 2017 heeft de gemeente Beek aangegeven dat de gemeente in principe bereid is medewerking te verlenen aan de realisatie van vier woningen in het voormalige kantoorpand. Om de realisatie van de woningen mogelijk te maken in dit voormalige kantoorpand dient ten behoeve van de omgevingsvergunning voor het gebruik afgeweken te worden van het vigerende bestemmingsplan. In deze ruimtelijke onderbouwing dient nader verantwoord te worden dat het voormalige kantoorpand geschikt is voor de beoogde functie in de vorm van woningen binnen de bestaande bebouwing in relatie tot de directe omgeving.
Als onderdeel van de ruimtelijke onderbouwing dient verantwoord te worden dat voldaan wordt aan het woningbouwbeleid en deze woningen gecompenseerd worden dan wel het betalen van een financiële bijdrage. Hierover zijn door de gemeente nadere afspraken gemaakt met de initiatiefnemer.
De kern Beek is in het westelijk deel van de gemeente Beek gelegen en grenst hier direct aan de gemeente Stein. Het besluitgebied is gelegen in het centrum van de kern Beek. Het betreft een voormalige kantoorpand direct aan de Markt in een centrumomgeving. Het besluitgebied is kadastraal bekend als gemeente Beek, sectie B, perceelnummer 6355.
Het besluitgebied is gelegen binnen het vigerende bestemmingsplan 'Kern Beek', dat door de raad is vastgesteld op 26 april 2012. Het besluitgebied is gelegen binnen de enkelbestemmingen 'Centrum - 1', alsmede de dubbelbestemming 'Waarde - Archeologie 3'. Binnen de enkelbestemming 'Centrum - 1 ' is de functieaanduiding 'kantoor' van toepassing. Daarnaast gelden de gebiedsaanduidingen 'geluidzone - industrie' en 'luchtvaartverkeerzone'.
Uitsnede vigerend bestemmingsplan 'Kern Beek'
De voor 'Centrum - 1' aangewezen gronden zijn bestemd voor:
alsmede voor:
Binnen deze bestemming is wonen toegestaan, echter mag het aantal woningen niet worden uitgebreid. In het huidige pand is geen woning gelegen en dienovereenkomstig bestemd.
Gezien de bestemmingsomschrijving is de beoogde detailhandel en horeca op de begane grond toegestaan. Dit wordt verder dan ook niet in onderhavige ruimtelijke onderbouwing meegenomen. De beoogde 4 appartementen op de bovenetages zijn echter op basis van de bestemmingsomschrijving niet toegestaan. Het aantal woningen wordt immers uitgebreid. In onderhavige ruimtelijke onderbouwing worden de appartementen nader verantwoord.
De dubbelbestemming 'Waarde – Archeologie 3' (gebied met middelhoge verwachtingswaarde) is gericht op het behoud, de bescherming en/of het herstel van de voorkomende archeologische waarden. Binnen deze bestemming mag niet worden gebouwd. Dit is niet van toepassing indien:
Omdat sprake is van het toevoegen van woningen op de 1e t/m 3e etage in het bestaande
gebouw, is er geen sprake van een bodemverstorende ingreep en zal deze
dubbelbestemming geen belemmering zijn voor onderhavig plan.
Deze ruimtelijke onderbouwing bestaat uit de volgende hoofdstukken: In de beschrijving van het besluitgebied (hoofdstuk 2) zijn de aanwezige functies in het gebied beschreven. In Hoofdstuk 3 worden de relevante visies beschreven die er op de verschillende bestuursniveaus zijn ten aanzien van het besluitgebied (Beleidskader). In Hoofdstuk 4 wordt aangegeven welke uitgangspunten en randvoorwaarden er voor het planvoornemen gelden. Hoofdstuk 5 gaat in op de economische- en maatschappelijke uitvoerbaarheid van het planvoornemen. In het laatste hoofdstuk wordt de doorlopen procedure beschreven.
Om een beeld te krijgen van de omgeving van het besluitgebied wordt eerst een gebiedsbeschrijving van Beek en met name van de directe omgeving van het besluitgebied gegeven. Dit wordt gedaan aan de hand van de ontstaansgeschiedenis, de ruimtelijke structuur en functionele structuur.
De oudste vermelding van Beek is een vermelding van het Zuid-Limburgse dorp Becca, De naam 'Beek' is afkomstig van de Keutelbeek, die dwars door Beek stroomt. De oudste, menselijke ontwikkelingen hebben dan ook hoogstwaarschijnlijk langs deze hooglandbeek plaatsgehad.
Vermoedelijk liep door het huidige grondgebied van Beek een Romeinse heerweg, die van Maastricht naar Tüddern liep. De straatnaam Heirstraat suggereert waar deze ongeveer heeft gelopen. Het dorp vormde zich als een lintdorp voornamelijk langs deze oude verbindingsweg. Halverwege de 18e eeuw werd de postweg van Maastricht naar Roermond aangelegd, die ook Beek passeerde.
Vanaf de 19e eeuw kwam het dorp aan de rijksweg Maastricht - Nijmegen te liggen (de huidige Maastrichterlaan/Prins Mauritslaan). Desondanks begon Beek zich pas werkelijk te ontwikkelen nadat de Staatsmijn Maurits in het nabijgelegen Lutterade in bedrijf kwam, waarvoor in Beek een groot aantal woningen voor de mijnarbeiders werd gebouwd. De Staatsmijnen breidden hun territorium in 1951 uit naar het grondgebied van Beek met de bouw van de cokesfabriek Emma II, die in 1954 in gebruik werd genomen. Na de sluiting van deze fabriek werd op deze plaats het Polychem gevestigd, het chemisch bedrijf van de Staatsmijnen (later DSM), dat tegenwoordig onderdeel is van het chemiecomplex Chemelot.
In de loop der tijd heeft Beek zich ontwikkeld tot een kern met de nodige voorzieningen en tot zijn huidige omvang door middel van een aantal complexgewijze uitbreidingen in de 2e helft van de 20e eeuw.
Beek is een relatief groot 'dorp' en vertoont zowel dorpse kenmerken (smalle straatjes met oude boerderijen) als stedelijke kenmerken (drukke verkeerswegen en hoogbouw). De plaats wordt omringd door zowel landelijk gebied als door stedelijk gebied als door sterk industrieel gebied.
Aan de noordzijde van de plaats ligt Geleen met het industriecomplex Chemelot, aan de oostzijde het heuvelland, aan de zuidzijde de luchthaven Maastricht-Aachen Airport (plaatselijk beter bekend als Vliegveld Beek) en aan de westzijde de gemeente Stein, met haar gelijknamige hoofdplaats.
De kern heeft vele eigen voorzieningen. Naast het dorpscentrum ligt op het bedrijventerrein 'Beekerhoek' ten noorden van de kern Beek het grote overdekte winkelcentrum Makado waar grotere winkels als HEMA en Albert Heijn zijn gevestigd.
De ruimtelijke structuur in de directe omgeving van het besluitgebied wordt gekenmerkt door de aanwezige ontsluitingsstructuur met daaraan en daarop de bebouwing gesitueerd en georienteerd. Het pand is gelegen aan de Markt van Beek en wordt omringd door gebouwen van maximaal 3 bouwlagen waarvan de plint veelal bestaat uit detailhandel, kantoor en horeca en de etages veelal uit woningen bestaan.
Impressie van het pand, gezien vanaf de Marktstraat
De belangrijkste functies in de directe omgeving van het besluitgebied zijn de functies detailhandel en horeca. In de directe omgeving van het pand bevinden zich o.a. een bloemenzaak, kledingwinkel, cafetaria, brasserie, accountantskantoor en een geldautomaat.
Deze geldautomaat is een overblijfsel van de vorige huurder van het pand, namelijk de ABN AMRO bank. Dit regionale kantoor is inmiddels vertrokken, waardoor het pand momenteel leeg staat en er ter plaatse geen activiteiten meer plaats vinden. Dit is dan ook de aanleiding voor het planvoornemen.
Impressie van het pand (rechts), gezien vanaf de markt
Gemeenten zijn niet geheel vrij in het voeren van hun eigen beleid. Rijk en provincies geven met het door hen gevoerde en vastgelegde beleid de kaders aan waarbinnen gemeenten kunnen opereren. Hierna worden in het kort de voornaamste zaken uit het voor het besluitgebied relevante nationale en provinciale beleid weergegeven, aangevuld met het van toepassing zijnde beleid van de gemeente.
Op 13 maart 2012 is de Structuurvisie Infrastructuur en Ruimte vastgesteld. In deze structuurvisie worden ambities voor Nederland gesteld voor de periode tot in 2040, die inspelen op de (inter)nationale ontwikkelingen die de ruimtelijke en mobiliteitsopgaven bepalen richting 2040. Het Rijk zet het ruimtelijk- en mobiliteitsbeleid in voor een concurrerend, bereikbaar, leefbaar en veilig Nederland.
Deze structuurvisie vervangt de Nota Ruimte, de Structuurvisie Randstad 2040, de Nota Mobiliteit, de MobiliteitsAanpak en de Structuurvisie voor de Snelwegomgeving.
De Structuurvisie gaat in grote mate uit van decentralisatie van verantwoordelijkheden. In vergelijking tot de 33 nationale belangen uit de bij de Nota Ruimte behorende Realisatieparagraaf Nationaal Ruimtelijk Beleid is het aantal Rijksbelangen sterk in omvang teruggebracht. Het Rijk legt hiermee op het vlak van de ruimtelijke ordening meer verantwoordelijkheid bij de provincies en gemeenten.
Het Rijk formuleert drie hoofddoelen om Nederland concurrerend, bereikbaar, leefbaar en veilig te houden voor de middellange termijn (2028). Deze doelen betreffen nadere uitwerkingen van een aantal Rijksbelangen uit de Realisatieparagraaf Nationaal Ruimtelijk beleid.
Met het hergebruik van de bestaande bebouwing van het voormalige kantoorpand in bestaand gebied zijn geen Rijksbelangen in het geding.
Op 30 december 2011 is het Besluit algemene regels ruimtelijke ordening (Barro) in werking getreden.
Voor de nationale belangen die kaderstellend zijn voor besluiten van gemeenten zijn in het Besluit algemene regels ruimtelijke ordening (Barro) regels opgenomen die direct het bestemmingsplan en daarmee gelijk te stellen besluiten betreffen. Zij strekken ertoe dat de nationale ruimtelijke afweging, die door het kabinet in samenspraak met de Tweede en Eerste Kamer der Staten-Generaal is gemaakt, bij besluitvorming over bestemmingsplannen wordt gerespecteerd.
Onderwerpen waarvoor het rijk ruimte vraagt zijn de mainportontwikkeling van Rotterdam, bescherming van de waterveiligheid in het kustfundament en in en rond de grote rivieren, bescherming en behoud van de Waddenzee en enkele werelderfgoederen, zoals de Beemster, de Nieuwe Hollandse Waterlinie en de Stelling van Amsterdam en de uitoefening van defensietaken.
Op 1 oktober 2012 is het besluit aangevuld met de ruimtevraag voor de onderwerpen veiligheid op rijksvaarwegen, toekomstige uitbreiding van infrastructuur, de elektriciteitsvoorziening, de ecologische hoofdstructuur (EHS), de veiligheid van primaire waterkeringen, reserveringsgebieden voor hoogwater langs de Maas en maximering van de verstedelijkingsruimte in het IJsselmeer. Ook is het onderwerp duurzame verstedelijking in de regelgeving opgenomen.
Op het besluitgebied zijn geen onderwerpen vanuit de Barro van toepassing.
De kern Beek is gelegen in het Belvedère gebied 'Heuvelland'. Het Heuvelland behoort tot het lössontginningenlandschap. De fysieke dragers van het landschap zijn de plateaus met grote open akkercomplexen of velden uit de Middeleeuwen, de beboste steile plateauranden en de relatief besloten dalen. Kenmerkende landschapselementen zijn landgoederen en buitenplaatsen, holle wegen, paden die dwars over de landbouwgronden lopen, graften, hoogstamboomgaarden en dergelijke, maar ook agrarische nederzettingspatronen, geconcentreerd in dorpen met lineair en verspreid voorkomende solitaire bebouwing, waarvan circa twintig beschermde dorpsgezichten. In de gemeente Beek zijn echter geen beschermde dorpsgezichten gelegen. De cultuurhistorische identiteit van het Heuvelland dient behouden te blijven maar ook verder te worden ontwikkeld.
Het voormalige kantoorpand heeft geen cultuurhistorische waarden. Daarnaast worden de 4 appartementen binnen het bestaand bouwvolume gerealiseerd. De uiteindelijke verschijningsvorm blijft daardoor ongewijzigd in relatie tot de omgeving.
Het Nationaal Waterplan (NWP) bevat de hoofdlijnen van het nationaal waterbeleid en de daartoe behorende aspecten van het ruimtelijk beleid. Het kabinet actualiseert het waterbeleid op een aantal terreinen.
Het kabinet bereidt, aansluitend bij de Omgevingswet, een Nationale Omgevingsvisie voor die sectorale visies en beleidsplannen vervangt. Dit NWP is daar een belangrijke bouwsteen voor. De Nationale Omgevingsvisie wordt een samenhangende visie op strategisch niveau. Om hiertoe te komen is in 2015 begonnen met de voorbereidingen die in 2016 zullen uitmonden in een Nationale Omgevingsagenda. In 2016 en 2017 zal deze agenda worden verdiept en worden relevante beleidsalternatieven onderzocht. Naar verwachting zal de Nationale Omgevingsvisie in 2018 worden vastgesteld.
In dit nieuwe NWP komt een aantal onderwerpen uit het vorige NWP niet terug. Alleen de onderwerpen die in de Structuurvisie Infrastructuur en Ruimte (SVIR) als rijksbelang zijn aangemerkt, staan in dit NWP. Gedecentraliseerde onderwerpen komen niet meer aan de orde: de gebiedsgerichte regionale uitwerkingen, het onderwerp wateroverlast en diverse gebruiksfuncties zoals recreatie(vaart). Ook de relatie tussen bodemdaling en waterhuishouding komt in dit NWP niet aan de orde. In de aanloop naar de Nationale Omgevingsvisie zal het Rijk een gezamenlijk proces van co-creatie starten met andere overheden en stakeholders, om te bezien welke nieuwe beleidsuitdagingen er zijn. Daarbij kunnen deze onderwerpen wel aan de orde komen.
Vanuit de verantwoordelijkheid voor het watersysteem verankert het Rijk de volgende principes:
De vier appartementen worden binnen de bestaande bebouwing van het voormalige kantoorpand gerealiseerd. De waterhuishoudkundige situatie blijft hierdoor ongewijzigd.
Conform het bepaalde in artikel 3.1.6, lid 2 van het Besluit ruimtelijke ordening moet bij ruimtelijke ontwikkelingen sprake zijn van zorgvuldig ruimtegebruik en overprogrammering worden voorkomen. Door middel van de 'ladder van duurzame verstedelijking' (kortweg: duurzaamheidsladder) vindt een toetsing plaats. De ladder bestaat uit drie treden:
Alvorens te toetsen aan voornoemde drie treden van de ladder, dient te worden vastgesteld of sprake is van een stedelijke ontwikkeling. Dit begrip is in artikel 1.1.1 Bro gedefinieerd als 'ruimtelijke ontwikkeling van een bedrijventerrein of zeehaventerrein, of van kantoren, detailhandel, woningbouwlocaties of andere stedelijke voorzieningen. Uit de jurisprudentie die is verschenen ten aanzien van dit begrip blijkt dat de omvang van de ontwikkeling een rol speelt en is er een zekere ondergrens gesteld.
Is er sprake van een kleinschalige ontwikkeling, dan kan weliswaar sprake zijn van een stedelijke ontwikkeling, maar kan een dergelijke ontwikkeling als te kleinschalig worden aangemerkt om te worden aangemerkt als stedelijke ontwikkeling als bedoeld in artikel 1.1.1 Bro.
Gezien het in onderhavig plan om een functiewijziging gaat en de toevoeging van 4 appartementen is de ladder van duurzame verstedelijking niet van toepassing en is een toets niet noodzakelijk.
Met de realisatie van de woningen in een voormalig kantoorpand te midden van een centrumomgeving zijn geen van deze belangen van toepassing. Het rijksbeleid is gezien het voorgaande niet in het geding. In paragraaf 4.3 wordt verder in gegaan op de consequenties met betrekking tot het aspect water als gevolg van het planvoornemen.
Op 12 december 2014 is door Provinciale Staten het Provinciaal Omgevingsplan 2014 (POL2014) vastgesteld. Het POL 2014 heeft vier wettelijke functies: structuurvisie (Wet ruimtelijke ordening), provinciaal milieubeleidsplan (Wet milieubeheer), regionaal waterplan (Waterwet) en het Provinciaal Verkeer- en Vervoersplan (Planwet verkeer en vervoer). In het POL 2014 komen alleen die zaken aan bod, die er op provinciaal niveau echt toe doen en die vragen om regionale oplossingen. Dat sluit aan bij de basisfilosofie en ook bij de aanpak van de rijksoverheid die zich beperkt tot een 13-tal nationale ruimtelijke belangen. Zo veel mogelijk ligt de verantwoordelijkheid bij gemeenten en andere partners die met lokale kennis prima maatwerk kunnen leveren.
In het POL staan de fysieke kanten van het leef- en vestigingsklimaat centraal. Belangrijke uitdagingen zijn het faciliteren van innovatie, het aantrekkelijk houden van de regio voor jongeren en arbeidskrachten, het versnellen van de energietransitie, de fundamenteel veranderde opgaven op het gebied van wonen en voorzieningen, de leefbaarheid van kernen en buurten en het inspelen op de klimaatverandering. De belangrijke principes in het Limburgse omgevingsbeleid zijn:
De grote variatie in omgevingskwaliteiten is een kenmerk en een sterk punt van Limburg. Om daaraan recht te doen, worden in dit POL zeven globaal afgebakende gebiedstypen onderscheiden. Dit zijn zones met elk een eigen karakter, herkenbare eigen kernkwaliteiten, en met heel verschillende opgaven en ontwikkelingsmogelijkheden. In het bebouwd gebied gaat het om de zones “bedrijventerrein”, “stedelijk centrum” en “overig bebouwd gebied” en in het landelijk gebied gaat het om de “goudgroene natuurzone”, de “zilvergroene natuurzone”, de “bronsgroene landschapszone” en het “buitengebied”. Voor het besluitgebied is bezien welk gebiedstype van toepassing is.
Het besluitgebied is gelegen in het bebouwd gebied en ligt in de zone “overig bebouwd gebied”. Dit zijn gemengde woon/werkgebieden met voorzieningen, deels met een stedelijk karakter, deels met een dorps karakter. Het accent ligt hier op de transformatie van de regionale woningvoorraad, de bereikbaarheid, de balans voorzieningen en detailhandel, stedelijk groen en water en kwaliteit leefomgeving.
In de visie op Zuid-Limburg zijn de belangrijkste uitgangspunten voor wonen: werken aan de kwaliteit van de bestaande voorraad door kwaliteitsverbetering, herstructurering (transformatieopgave zorgvastgoed en huursector) en waar nodig sloop en nieuwkomers (waaronder arbeidsmigranten). Maar ook het terugdringen van nog niet gerealiseerde plannen die niet bijdragen aan de beoogde vernieuwing.
Uitgangspunt daarbij is om voor Zuid-Limburg stapsgewijs vóór 2018 alle plancapaciteit op uitleglocaties te laten vervallen en de totale plancapaciteit terug te brengen tot de werkelijke transformatieopgave. In een gezamenlijk door de Zuid-Limburgse gemeenten overeengekomen structuurvisie voor Wonen wordt de detaillering bepaald, zoveel mogelijk gedifferentieerd naar segment en doelgroepen en gebaseerd op de kwalitatieve woonmilieubenadering. In de regionale structuurvisie Wonen Zuid-Limburg worden de keuzes verder uitgewerkt die op regionale schaal noodzakelijk zijn. Met het planvoornemen (hergebruik voormalig kantoorpand) is sprake van een ontwikkeling die past binnen het stedelijk gebied. Van belang is dat aangesloten wordt bij het accent voor de transformatie van de regionale woningvoorraad. In de volgende paragrafen wordt nader ingegaan op het provinciale en regionale woonbeleid en de wijze waarop het planvoornemen hierbinnen past.
Uitsnede POL kaart 2014
Het besluitgebied is eveneens gelegen in het Nationaal Landschap Zuid Limburg. Ook de ruimtelijke relaties tussen het Nationaal Landschap, het aangrenzende stedelijke gebied en het Maasdal dienen hierbij versterkt te worden.
Echter gezien de ligging van het besluitgebied in bestaand bebouwd gebied, het hergebruik van een voormalig kantoorpand en het ontbreken van de relatie met het buitengebied, is geen sprake van aantasting van de kernkwaliteiten van het Nationaal Landschap.
Met het vaststellen van het provinciaal omgevingsplan is ook de Omgevingsverordening Limburg 2014 vastgesteld. Op basis van de omgevingsverordening blijkt dat het volkshuisvestingsbeleid strikter is geworden. In het kader van dynamisch voorraadbeheer is er nog slechts ruimte voor nieuwe toevoegingen aan de woningvoorraad als deze echt kwaliteit toevoegen én samengaan met het schrappen van slechte voorraad. Nieuwbouwplannen dienen gecompenseerd te worden, wat inhoud dat wanneer een nieuwe woning wordt toegevoegd er ook een woning gesloopt dient te worden.
Het toevoegen van vier nieuwe appartementen wordt middels de compensatieregeling gecompenseerd. In een privaatrechtelijke overeenkomst wordt de financiële verplichting vastgelegd. Dit betekent dat het toevoegen van de vier appartementen niet strijdig is met de provinciale omgevingsverordening. Daarnaast worden de appartementen gerealiseerd binnen de bestaande bebouwing van een voormalig kantoorpand. Het pand wordt hiermee hergebruikt binnen bestaand bebouwd gebied waardoor leegstand wordt voorkomen en het pand voorzien wordt van een duurzame invulling.
Het besluitgebied is gelegen in het centrum van de kern Beek. De appartementen worden in bestaande bebouwing van een voormalig kantoorpand opgericht. Door de ligging in het centrum is er geen sprake van een relatie met het buitengebied. Er vindt hierdoor geen aantasting plaats van de landschappelijke kernkwaliteiten van het Nationaal Landschap Zuid Limburg. Het planvoornemen past dan ook binnen het provinciaal beleid.
Het relevante regionale beleid in dit kader is de Structuurvisie Wonen Zuid-Limburg als vastgesteld door de gemeenteraad van Beek op 20 oktober 2016. Deze visie verwoordt de gezamenlijke aanpak van de Zuid-Limburgse gemeenten om te komen tot een excellent woon- en leefklimaat in Zuid-Limburg door een goed functionerende woningmarkt met aantrekkelijke, elkaar aanvullende woonmilieus. De driedelige opgave die de structuurvisie bevat is:
Om invulling te kunnen geven aan deze opgaven zijn een dertiental beleidafspraken gemaakt. Zo is onder meer afgesproken dat in een subregionale woningmarktprogrammering de toevoegingen en onttrekkingen op basis van de transformatieopgave per gemeente worden vastgelegd, wordt voorzien in het schrappen van harde plancapaciteit aan met name de randen van steden en kernen en in te zetten op herinvulling van cultuurhistorisch waardevol bestaand vastgoed. Tevens is voorzien in een compensatieregeling voor het toevoegen van nieuwe woningen.
Met onderhavig voornemen vindt transformatie en herinvulling van een voormalig kantoorpand in het centrum van Beek plaats. Hiermee wordt leegstand voorkomen en het behoud van het pand gewaarborgd.
Het planvoornemen voorziet in het toevoegen van een viertal appartementen aan de bestaande woningvoorraad. Concluderend uit het beleid uit de Structuurvisie Wonen dient er fysiek gecompenseerd te worden in de vorm van het slopen van een viertal wooneenheden. Fysieke sloop is echter niet mogelijk. In de Structuurvisie Wonen is hiervoor de mogelijkheid opgenomen om een sloopcompensatiefonds in te stellen. Op basis van de beleidsregel compensatie bij kleine woningbouwinitiatieven biedt de gemeente dit alternatief voor fysieke sloop, namelijk de storting van een bijdrage per te ontwikkelen woning in een fonds.
De initiatiefnemer van het planvoornemen is bereid om deze bijdrage te leveren. Hierover zijn nadere afspraken gemaakte tussen de initiatiefnemer en de gemeente. Deze afspraken zijn vastgelegd in een privaatrechtelijke overeenkomst. Daarmee wordt voldaan aan het regionale beleid.
Op 10 december 2009 heeft de gemeenteraad de strategische toekomstvisie van de gemeente vastgesteld. Deze toekomstvisie beschrijft in hoofdlijnen de ambities en speerpunten van beleid tot 2030.
Als belangrijkste ontwikkeling de komende 20 jaar krijgt Beek, net als de andere gemeenten in haar omgeving, de komende jaren te maken met demografische krimp. Beek onderkent deze demografische ontwikkelingen en de financiële beperkingen die dit met zich meebrengt voor de gemeente. Het maken van keuzes is daarom noodzakelijk. Beek gaat niet actief inzetten op het van buiten aantrekken van nieuwe inwoners, maar wil een goede woon- en leefomgeving bieden voor haar huidige en toekomstige inwoners.
De leefbaarheid en het voorzieningenniveau, waar inwoners van Beek tevreden over zijn en die ze graag willen behouden, kunnen in de toekomst alleen op voldoende niveau blijven als Beek ook economisch krachtig blijft. Naast het goede woon- en leefklimaat is de bedrijvigheid, in combinatie met de goede bereikbaarheid via weg, spoor én lucht, de belangrijkste kracht van Beek.
Om ook in de toekomst goed te kunnen blijven wonen en leven zal Beek haar economische kracht verder moeten versterken. Een economisch krachtige gemeente biedt niet alleen een basis voor een evenwichtige bevolkingssamenstelling in een aantrekkelijke woonomgeving, maar daarmee ook een basis om de voorzieningen en sociale cohesie in de kernen op peil te houden. Om die voorzieningen binnen de gemeente te kunnen behouden zal gekozen worden om een aantal voorzieningen de komende jaren meer en meer te clusteren.
Met de detailhandel- en horecafunctie op de begane grond wordt aan de versterking van het centrum bijgedragen.
Op 22 maart 2012 heeft de gemeenteraad van Beek de Structuurvisie Beek 2012-2022 vastgesteld.
Centraal in de structuurvisie staat het streven van Beek om een goed woon-, leef- en werkklimaat te (kunnen) blijven bieden aan zowel de huidige als de toekomstige bewoners. Hoofddoel daarbij is behoud en versterking van een duurzame omgeving waarin het prettig wonen, werken en recreëren is, met oog voor wat Beek heeft en wil nalaten voor toekomstige generaties. Beek wil zich blijven ontwikkelen tot een eigentijdse maar authentieke woon-, werk- en leefgemeente, met voorzieningen op maat in elke kern en in een hoogwaardige, duurzame landelijke omgeving met blijvende en beleefbare natuurlijke, landschappelijke en cultuurhistorische kwaliteiten.
Gezien deze doelstellingen zijn de drie centrale ambities van Beek tot 2030:
Met het planvoornemen wordt voorkomen dat leegstand in het centrum van Beek ontstaat. Het gehele voormalig kantoorpand krijgt met het planvoornemen passende functies.
In december 2016 heeft de gemeenteraad van Beek de welstandsnota voor Beek vastgesteld (ingangsdatum 1 januari 2017). Het welstandsbeleid is geformuleerd vanuit de overtuiging dat de lokale overheid het publieke belang van een aantrekkelijke gebouwde omgeving dient te behartigen. De overheid grijpt met welstandtoezicht in, in de individuele vrijheid van burgers en ondernemers, omdat de verschijningsvorm van een bouwwerk geen zaak is van het individu alleen. Een bouwwerk maakt deel uit van de publieke ruimte, de voorbijganger wordt ermee geconfronteerd of hij wil of niet. Een aantrekkelijke, goed verzorgde omgeving is van belang voor het welbevinden van de gebruikers, verhoogt ook de waarde van het onroerend goed en versterkt het vestigingsklimaat.
De nota bestaat uit drie delen:
Het besluitgebied is aangeduid als Wonen 1 + 2 (niveau 2 of 3 ). Hiervoor geldt het volgende beleid.
Uitgangspunten
Ligging in de omgeving
Massa en vorm
Detaillering
Materiaal en kleur
Met dit welstandsbeleid wordt bij de uitwerking van het bouwplan voor de woningen rekening gehouden. De woningen worden gerealiseerde binnen het voormalige kantoorpand. De oppervlakte en inhoud neemt hierdoor niet toe. De bergings- en stallingsfuncties worden allen ondergebracht in het bestaande bouwvolume. De hoofdentree blijft georiënteerd op de Markt. De uiterlijke architectonische verschijningsvorm blijft daarmee ongewijzigd.
De gemeenteraad heeft op 19 december 2016 de Beleidsregel 'financiële compensatie bij kleine woningbouwinitiatieven Zuid-Limburg'" vastgesteld. De beleidsregel is een uitvoeringsinstrument van de Structuurvisie Wonen Zuid-Limburg beschreven in paragraaf 3.4.1 waarmee het voor particulieren mogelijk blijft om woningtoevoegingen financieel te compenseren in plaats van fysieke compensatie door de sloop van een andere woning (1 woning erbij is 1 woning eraf). Aangezien particulieren vaak niet in staat zijn de fysieke compensatie te realiseren, zoals gesteld in paragraaf 3.3.2, kan de gemeente onder een aantal voorwaarden de sloopverplichting op zich nemen. De fysieke compensatie blijft in stand, maar wordt overgenomen door de gemeente.
Voorafgaand aan de toepassing van de financiële compensatie vindt altijd een ruimtelijke beoordeling plaats om te beoordelen of het de juiste plaats is voor een woningtoevoeging en het de juiste woning betreft (de juiste woning op de juiste plaats). Slechts na het positief doorlopen van de ruimtelijke toets kan er sprake zijn van compensatie voor de woningtoevoeging. Voor particulieren blijft het met deze beleidsregels mogelijk om financieel te compenseren.
Conform de beleidsregel kunnen er nieuwe kwalitatief goede, woningbouwinitiatieven toegevoegd worden aan de subregionale woningbouwprogrammering indien een financiële bijdrage als sloopcompensatie wordt aangeboden. Tussen de initiatiefnemer en de gemeente zal in dit geval een privaatrechtelijke overeenkomst gesloten worden waarin overeengekomen wordt dat fysieke onttrekking niet mogelijk is gebleken en er een verplichting tot financiële bijdrage is.
De realisatie van de appartementen doet geen afbreuk aan het gemeentelijk beleid. De woningen dragen bij aan een goede woon- en leefomgeving in Beek alsmede aan het behoud en versterking van een duurzame omgeving waarin het prettig wonen, werken en recreëren is. De woning draagt bij aan het hergebruik en behoud van een voormalige kantoorpand. Leegstand in het centrum wordt hiermee voorkomen. Het kantoorpand wordt ten behoeve van de te realiseren appartementen in combinatie met de detailhandel- en horecafuncties op de begane grond maximaal hergebruikt en minimaal aangepast.
Het planvoornemen is om in de bestaande bebouwing van het voormalige kantoorpand vier appartementen te realiseren. Ten behoeve van de realisatie van de appartementen wordt het voormalige kantoorpand intern verbouwd. De oppervlakte en inhoud van de bebouwing neemt hierdoor niet toe. Ook de gewenste en benodigde bergings- en stallingsruimten worden ondergebracht in het bestaande bouwvolume van het voormalige kantoorpand.
Plattegrond 1e verdieping
Plattegrond 2e verdieping
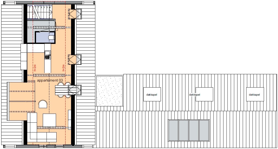
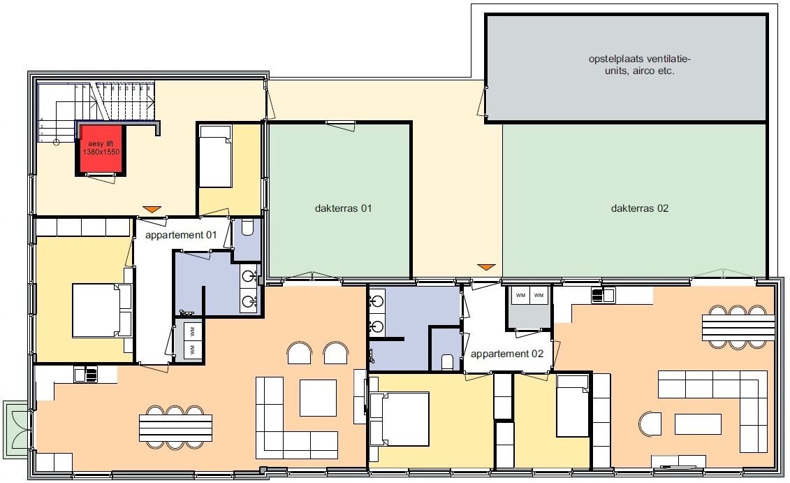
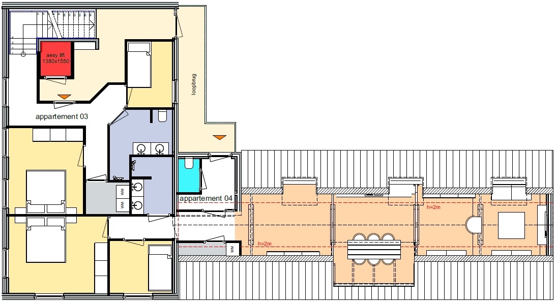
Plattegrond 3e verdieping
De toekomstige appartementen zijn verdeeld over 3 woonlagen. Op de 1e verdieping zijn appartement 1 en 2 gelegen. Deze appartementen zijn voorzien van een woonkamer met keuken, een natte cel, 2 slaapkamers, en een dakterras. Beide zijn bereikbaar via een trapopgang en een lift. Op de 2e verdieping zijn appartement 3 en 4 gelegen, waarbij appartement 4 in zijn geheel op de 2e verdieping gelegen is en bereikbaar is via een loopbrug. Appartement 4 bestaat uit 2 slaapkamers en een natte cel welke zich in het voorste gedeelte van het pand bevinden en een woongedeelte met keuken welke zich op de bovenste etage van het achterste gedeelte van het pand bevindt.
Appartement 3 is verdeeld over de 2e en 3e verdieping. Op de 2e verdieping bevinden zich de beide slaapkamers en natte cel. Op de 3e en tevens bovenste verdieping bevindt zich het woongedeelte met keuken.
Parkeren
In de oude situatie zijn er geen parkeerplaatsen toebehorende aan het pand. Deze maken onderdeel uit van het openbaar gebied. Aan het voormalige kantoorpand kunnen 6 parkeerplaatsen toegerekend worden uitgaand van een oppervlakte van ongeveer 300 m². (Parkeernorm matig stedelijk, centrum (kantoor + balie) min. 1,8 pp per 100m²).
In de nieuwe situatie worden de CROW-richtlijnen aangehouden ten behoeve van de te realiseren horeca en detailhandel en de toevoeging van 4 woningen aan het pand. Om het minimale aantal parkeerplaatsen te kunnen berekenen moet worden voldaan aan de CROW-richtlijnen. De kern Beek wordt op basis van de omgevingsadressendichtheid gezien als 'matig stedelijk'. Daarnaast wordt onderscheid gemaakt in 4 gebieden, te weten: Centrum, Schil centrum, rest bebouwde kom en buitengebied. Het besluitgebied ligt in 'centrum'. Omdat er meerdere functies in het pand gerealiseerd worden, worden er verschillende normen aangehouden. Zo geldt de volgende parkeernormering voor de van toepassing zijnde functies:
Om de ruimtelijke aanvaardbaarheid van het plan aan te tonen kan een berekening worden gemaakt aan de hand van het planvoornemen. Dit leidt tot de volgende parkeerbehoefte:
In totaal dienen er voor het planvoornemen derhalve in het geval van een cafetaria als horecagelegenheid 17 parkeerplaatsen beschikbaar/realiseerbaar te zijn. In het geval een restaurant als horecagelegenheid dienen er 25 parkeerplaatsen beschikbaar/realiseerbaar te zijn. Het besluitgebied biedt geen ruimte tot het realiseren van parkeerplaatsen. Dit bekent dat het parkeren is voorzien op openbare parkeerplaatsen binnen het openbare gebied van het centrum van de gemeente Beek. 6 Parkeerplaatsen kunnen al toegerekend worden aan het besluitgebied. Dit houdt in dat er nog 11 of 19 parkeerplaatsen ten behoeve van het planvoornemen in de openbare ruimte beschikbaar moeten zijn.
Ontheffing
Bewoners binnen het gebied die niet kunnen beschikken over een eigen parkeergelegenheid voor hun auto, komen voor een ontheffing in aanmerking als de gemiddelde loopafstand tussen 10 openbare parkeerplaatsen en de voordeur van de woning meer dan 100 meter bedraagt. Per woning wordt slechts één ontheffing verleend. Hiervoor komen de bewoners van de 4 appartementen in aanmerking.
De nabij gelegen Markt biedt voldoende parkeergelegenheid om in de parkeerbehoefte te voorzien.
Ontsluiting
De toekomstige appartementen wordt rechtstreeks ontsloten via de Markt en Marktstraat. De entree tot de appartementen is voorzien aan de Markt. Het betreft een reguliere aansluiting op de bestaande infrastructuur, waar de maximum snelheid 30 km bedraagt. Gezien de relatief lage verkeersintensiteiten ter plaatse van de Marktstraat blijft de verkeersveiligheid gewaarborgd. De bestaande panden aan de Marktstraat zijn daarnaast op dezelfde wijze aangesloten. In onderstaande afbeeldingen zijn de nieuwe aangezichten van de gevels weergegeven.
Privacy en bezonning
Aan de privacy en bezonningssituatie wijzigt niets. Daarnaast is geen uitbreiding van de bestaande bebouwing voorzien.
Milieubeleid wordt steeds meer ingebed in andere beleidsvelden. Verbreding van milieubeleid naar andere beleidsterreinen is dan ook een belangrijk uitgangspunt. Ook in de ruimtelijke planvorming is structureel aandacht voor milieudoelstellingen nodig. De milieudoelstellingen worden daartoe integraal en vanaf een zo vroeg mogelijk stadium in het planvormingsproces meegewogen. Een duurzame ontwikkeling van de gemeente is een belangrijk beleidsuitgangspunt dat zijn doorwerking heeft in meerdere beleidsterreinen.
Uitgangspunt van een goede ruimtelijke ordening is dat de bodemkwaliteit geschikt is voor de beoogde bestemming en de daarin toegestane gebruiksvormen. Dit betekent dat het aspect bodemkwaliteit voor vrijwel alle nieuwe ontwikkelingen, die met ruimtelijke plannen mogelijk worden gemaakt, onderzocht moet worden.
Het aspect bodem is voor onderhavig planvoornemen niet relevant, gezien de realisatie van 4 appartementen. Omdat sprake is van het toevoegen van appartementen op de 1e t/m 3e etage in het bestaande gebouw, is er geen sprake van een bodemverstorende ingreep dan wel contact met de bodem. Het is uitsluitend een interne verbouwing. Bodem is derhalve geen belemmering voor onderhavig plan.
Voor nieuwbouwplannen geldt dat in het kader van de Wet geluidhinder (Wg) een akoestisch onderzoek noodzakelijk is indien de geluidgevoelige bestemmingen zijn gelegen binnen de zone van een weg, industrieterrein of het spoor. Aangetoond dient dan te worden dat de geluidsbelasting voldoet aan de wettelijke geluidgrenswaarde. Het betreft hier de realisatie van een viertal woningen waardoor er sprake is van geluidsgevoelig objecten.
Wegverkeerslawaai
De Marktstraat en Markt in de directe omgeving van het besluitgebied zijn aangewezen als 30 km/h gebied. Op 100 meter (zuidelijk) van het besluitgebied ligt de Raadhuisstraat en op 150 meter (ten westen) van het besluitgebied ligt de Wolfeynde. Deze wegen zijn aangewezen als 50 km/h gebied. Dit houdt in dat deze wegen zoneplichtig zijn met een onderzoekszone van 200 meter en een akoestisch onderzoek wegverkeerslawaai noodzakelijk is. Tevens dient in het kader van een goede ruimtelijke onderbouwing vanuit de 30 km-wegen verantwoord te worden dat voor de te realiseren woningen sprake is van een goed woon- en leefklimaat.
Industrielawaai
Volgens de integrale zonering van Chemelot is het besluitgebied in de huidige situatie gelegen binnen de 50 dB(A) en 55 dB(A) geluidcontour (inclusief afscherming woonkernen). Tussen de 50 en 55 dB(A) dient ontheffing bij de betreffende gemeente te worden aangevraagd voor woningbouw (in dit geval is dit de RUD Zuid-Limburg).
In het kader van de verleende omgevingsvergunning is voor industrielawaai een hogere grenswaarde verleend d.d. 23 juni 2017. Het besluit hogere grenswaarden Markt 11, Beek is opgenomen in Bijlage 2.
Spoorweglawaai
Spoorweglawaai aan de orde. De afstanden tot het dichtstbijzijnde spoor is dermate groot dat deze niet van invloed is. Derhalve is akoestisch onderzoek in het kader van de Wet geluidhinder niet noodzakelijk.
Geluidzone luchtvaart
De kern Beek ligt onder een van de aanvliegroutes naar de noordzuidbaan van Maastricht-Aachen-Airport. Het besluitgebied is gelegen binnen het geluidinvloedgebied van de luchthaven Maastricht- Aachen-Airport. Het besluitgebied is gelegen binnen de 35 Ke-contour. Deze contour is met name van belang voor de woningbouw. Uit deze contour vloeit geen bouwverbod meer voort. Voor te ontwikkelen woningbouw en andere geluidgevoelige bestemmingen binnen de 35 Ke-contour dient wel aan bepaalde voorwaarden te worden voldaan.
Nieuwbouw binnen deze contouren is mogelijk indien isolatie conform Ke-regels geschiedt op basis van de Ke-geluidsbelasting. Zo dient aan de voorkeursgrenswaarden te worden voldaan dan wel aan de door de Minister van VROM vast te stellen hogere grenswaarden. Voorts dient de isolatie van woningen en andere geluidsgevoelige gebouwen te geschieden conform Ke-regels op basis van de Ke-geluidsbelasting zoals aangegeven door de aanloopcontour.
Conclusie
Op basis van voorgaande is een akoestisch onderzoek (Tritium, Akoestisch onderzoek omgevingslawaai, d.d. 26 april 2017) uitgevoerd. Hiernavolgend zijn de bevindingen en resultaten beschreven. Het volledige onderzoek is opgenomen in Bijlage 1.
Wegverkeerslawaai
Voor de 30 km/h wegen Burgemeester Janssenstraat en Markt geldt dat de geluidbelasting ten gevolge van het wegverkeer op deze wegen de richtwaarde van 48 dB op geen enkele gevel van de nieuwe appartementen overschrijdt. Voor de 30 km/h weg Marktstraat geldt dat de geluidbelasting op de gevels van de nieuwe appartementen de voornoemde richtwaarde met maximaal 4 dB overschrijdt.
Voor de gezoneerde wegen Raadhuisstraat, Stationsstraat en Wolfeynde geldt dat de geluidbelasting ten gevolge van het wegverkeer op deze weg de voorkeursgrenswaarde op geen enkele gevel van de nieuwe appartementen overschrijdt.
Derhalve is een procedure hogere waarde ten gevolge van het wegverkeer niet aan de orde.
Industrielawaai
Het plangebied is gelegen binnen de 50 tot 55 dB(A) contour van industrieterrein Chemelot. De exacte geluidbelasting ter plaatse van de eerste, tweede en derde verdieping is bepaald door de zonebeheerder. De vastgestelde geluidbelasting bedraagt maximaal 52 dB(A) ter plaatse van de voor- en rechterzijgevel op de tweede en derde verdieping.
Maatregelen voor het reduceren van de geluidbelasting ten gevolge van het industrieterrein aan zowel de geluidbron als in de overdracht zijn niet mogelijk.
Geluidzone luchtvaart
Het plangebied is gelegen binnen de 35 tot 40 Ke-contourlijn van luchthaven Maastricht Aachen Airport. Uit rechtlijnige interpolatie van de twee Ke-contourlijnen volgt een geluidbelasting van 37 Ke ter plaatse van het plangebied. Dit komt overeen met een geluidbelasting van circa 58 dB(A).
Maatregelen voor het reduceren van de geluidbelasting ten gevolge van het industrieterrein aan zowel de geluidbron als in de overdracht zijn niet mogelijk.
In onderhavige situatie is sprake van een procedure hogere waarde tengevolge van het industrielawaai en dient voldaan te worden aan de eisen vanuit het bouwbesluit ten gevolge van luchtverkeerslawaai. Bovendien dient, vanwege de hoogte van de geluidbelasting op de gevels van de nieuwe appartementen ten gevolge van de 30 km/h weg Marktstraat, in het kader van van een goede ruimtelijke ordening tevens de GA;K ten gevolge van het wegverkeerslawaai te worden beschouwd.
Vanwege vorenstaande dient conform Bouwbesluit 2012 een aanvullend onderzoek ter bepaling van de geluidwering van de gevels te worden beschouwd. Bij toepassing van de juiste geluidwerende materialen en maatregelen (conform een nader onderzoek) is vervolgens een binnenniveau van 33 dB gewaarborgd en is er dus te allen tijde sprake van een goed woon- en leefklimaat.
Sinds 15 november 2007 vormt het aspect luchtkwaliteit uit de Wet milieubeheer de basis voor de besluitvorming in het kader van de Wet ruimtelijke ordening. Op basis van deze Wet luchtkwaliteit gelden milieukwaliteitseisen voor de luchtkwaliteit. Deze kwaliteitseisen zijn middels grenswaarden vastgelegd voor de luchtverontreinigingscomponenten stikstofdioxide (NO2), zwevende deeltjes (PM10 of fijn stof), zwaveldioxide (SO2), lood (Pb), benzeen (C6H6) en koolmonoxide (CO). De grenswaarden gelden overal in de buitenlucht.
De Wet Luchtkwaliteit maakt onderscheid tussen projecten die 'Niet in betekenende mate' (NIBM) en 'In betekenende mate' (IBM) bijdragen aan de uitstoot van luchtverontreinigende stoffen.
In de regeling NIBM is een lijst met categorieën van gevallen opgenomen die NIBM zijn. Voor projecten die de hoeveelheid fijn stof en stikstofdioxide in de lucht met maximaal 3% verhogen hoeven geen aanvullende maatregelen getroffen te worden. Het project draagt dan niet in betekende mate (NIBM) bij aan de luchtverontreiniging. De NIBM-grens voor woningbouwlocaties is als volgt bepaald: 3% criterium = 1500 woningen (netto) bij minimaal één ontsluitingsweg, en = 3000 woningen bij minimaal twee ontsluitingswegen met een gelijkmatige verkeersverdeling. Dit houdt in dat de ontwikkeling op basis van de Wet Luchtkwaliteit niet in betekende mate bijdraagt aan aantasting van de luchtkwaliteit.
Het betreft hier de realisatie van slechts vier appartementen waardoor de verkeersaantrekkende werking niet toeneemt. Het project kan dan ook worden aangemerkt als NIBM.
Daarnaast komt de kantoorfunctie te vervallen, maar komen daarvoor detailhandel en horeca in de plaats. De verkeersaantrekkende werking blijft door de uitwisseling van deze functie per saldo gelijk.
In de nabijheid van het besluitgebied bevinden zich geen bedrijven met richtafstanden waarbinnen het besluitgebied valt. Er is enkel sprake van detailhandel en horeca. Op basis van de VNG brochure: 'Bedrijven en milieuzonering' worden dergelijke functies aangemerkt als milieucategorie 1 met een grootste richtafstand van 10 meter. Het besluitgebied ligt in het centrum, waarin een menging is van functies (detailhandel, horeca, kantoor, dienstverlening en wonen). Om die reden is geen sprake van een rustige woonwijk en kan de richtafstand worden verlaagd met één afstandsstap naar 0 meter.
Omgekeerd vormt het realiseren van 4 appartementen in de bestaande bebouwing geen belemmering voor de omgeving gezien de afstand en het feit dat reeds andere woningen op dezelfde dan wel kortere afstand gelegen zijn. Er is juist sprake van een kwaliteitsverbetering ter plaatse omdat een woonfunctie juist bijdraagt aan de gemengde omgeving in het centrum.
Externe veiligheid betreft het risico dat aan bepaalde activiteiten verbonden is voor niet bij de activiteit betrokken personen. Het externe veiligheidsbeleid richt zich op het voorkomen en beheersen van risicovolle bedrijfsactiviteiten en van risicovol transport. Het gaat daarbij om de bescherming van individuele burgers en groepen tegen ongevallen met gevaarlijke stoffen of omstandigheden. Daarbij gaat het om de risico's verbonden aan 'risicovolle inrichtingen', waar gevaarlijke stoffen worden geproduceerd, opgeslagen of gebruikt en anderzijds om het 'vervoer van gevaarlijke stoffen' via wegen, spoorwegen, waterwegen en buisleidingen. In
Uitsnede risicokaart
Inrichtingen
In de directe omgeving van het besluitgebied zijn geen risicovolle objecten gelegen. Het dichtst bijzijnde risicovolle object is een gasdrukregel- en meetstation op een afstand van ongeveer 550 meter. Het plaatsgevonden risico van dit station is 15 meter. Gezien de tussenliggende afstand is dit station niet van invloed op het besluitgebied. De risicovolle inrichtingen vormen derhalve geen belemmeringen voor het plan.
Buisleidingen
Op ongeveer gelijke afstand als het gasdrukregel- en meetstation is de hogedruk aardgasleiding Z-530-02 gelegen. De plantontwikkeling bevindt zich niet binnen de 1% (= 45 meter) en 100% (= 30 meter) letaliteitsafstand en vormt derhalve geen belemmeringen voor het plan.
Transport over wegen, spoor en water
Water
Het maximale invloedsgebied ten gevolge van het transport van gevaarlijke stoffen over watwerwegen bedraagt 1.070 meter. Het Julianakanaal ligt op meer dan 2,5 kilometer afstand en vormt derhalve geen belemmering voor het plan.
Spoor
De spoorlijn Lutterade - Visé (B) is gelegen op een afstand van ongeveer 1.050 meter van het planvoornemen. Over het spoortraject vinden conform het Basisnet transporten uit de stofcategorieën A (brandbaar gas), B2 (toxisch gas), C3 (zeer brandbare vloeistof) en D3 (toxische vloeistof) plaats. De maatgevende 1% letaliteitsafstand wordt hierbij veroorzaakt door toxisch gas (B2), zijnde 995 meter. Geconstateerd kan worden dat het planvoornemen buiten het invloedsgebied ligt van de spoorlijn Luttarade - Visé (B).
Weg
Transport van gevaarlijke stoffen vindt niet plaats door de kern Beek. het dichtst bijzijnde transport van gevaarlijke stoffen vindt plaats over de rijksweg A2 en A76. Deze wegen zijn respectievelijk op ongeveer 600 meter en 2000 meter gelegen van het besluitgebied.
Gelet op de grote afstand tussen de planontwikkeling en de voornoemde wegen, is het plaatsgebonden risico en het plasbrandaandachtsgebied in geval van de A2 geen aandachtspunt voor het planvoornemen. Daarnaast bevinden de wegen zich op meer dan 200 meter afstand van het planvoornemen, waardoor de invloed van het plan op de hoogte van het groepsrisico niet middels een berekening inzichtelijk hoeft te worden gemaakt.
Wel ligt het planvoornemen binnen het invloedsgebied van de A2. Conform de telgegevens van Rijkswaterstaat worden over de A2 de stofcategorieën LF1, LF2, LT1, LT2, LT3, GF2, GF3, GT3 en GT4 getransporteerd. De stoffen LT3 en GT4 hebben de grootste 1% letaliteitsafstand, zijnde > 4.000 meter. Het planvoornemen ligt derhalve binnen het invloedsgebied van de A2. Conform de telgegevens van Rijskwaterstaat is het invloedsgebied van de A76 eveneens > 4.000 meter op basis van de stof LT3. Het planvoornemen ligt hiermee binnen het invloedsgebied van de A76. Op basis van het gestelde in artikel 8 van het besluit externe veiligheid transportroutes dienen de risico's als gevolg van de transporten met gevaarlijke stoffen over de A2 en de A76 te worden meegenomen in een beperkte verantwoording van het groepsrisico.
Het bestuur van de veiligheidsregio Zuid-Limburg dient in de gelegenheid te worden gesteld om advies uit te brengen over een ramp of zwaar ongeval en over de zelfredzaamheid van personen binnen het planvoornemen.
Conclusie
De externe veiligheidsrisico's als gevolg van het transport van gevaarlijke stoffen over het spoor, de weg, door buisleidingen en door inrichtingen veroorzaken geen harde beperkingen voor het plan. Het besluitgebied is wel gelegen binnen het invloedsgebied van de Rijksweg A2 en A76. Hiermee dienen de risico's als gevolg van het transport van gevaarlijke stoffen over de weg meegenomen te worden in een beperkte verantwoordingsplicht van het groepsrisico. Hiertoe dient het bevoegd gezag bij besluitvorming het bestuur van de Veiligheidsregio Zuid-Limburg in de gelegenheid te stellen om advies uit te brengen over een ramp of zwaar ongeval en over de zelfredzaamheid van personen binnen het plan.
Inleiding
Met het invullen van de verantwoordingsplicht wordt antwoord gegeven op de vraag in hoeverre externe veiligheidsrisico's in het plangebied worden geaccepteerd en welke maatregelen getroffen zijn om het risico zoveel mogelijk te beperken. Het invullen van de verantwoordingsplicht is een wettelijke taak van het college van burgemeester en wethouders van de gemeente Beek. Door de verantwoordingsplicht wordt het externe veiligheidsaspect meegewogen bij het maken van ruimtelijke keuzes.
Het Besluit transportroutes externe veiligheid (Bevt) geeft de veiligheidsregio een wettelijke adviestaak bij het invullen van de verantwoordingsplicht voor de onderdelen bestrijdbaarheid en zelfredzaamheid.
Inhoud verantwoordingsplicht
In onderhavige situatie is sprake van een beperkte verantwoordingsplicht voor de weg. Het Bevt geeft een opsomming van onderdelen die in ieder geval in de verantwoording van het groepsrisico dienen te worden opgenomen.
De verantwoording dient in te gaan op de volgende onderdelen:
De locatie aan de Markt 11 te Beek is in de huidige situatie bestemd voor kantoordoeleinden. De beoogde plannen voorzien in de realisatie van vier woningen op de bovenetages (1 e, 2e, 3e verdieping). Op de begane grond wordt horeca en detailhandel gerealiseerd.
De planontwikkeling bevindt zich op grote afstand tot de risicobron (A2 en A76). Vanwege de grote afstand tot de risicobron zal een toename van personendichtheden niet significant doorwerken in de rekenkundige hoogte van het groepsrisico. De beschouwing van het groepsrisico en de verantwoording daarvan is om deze reden volledig kwalitatief uitgevoerd.
Het maatgevende scenario voor de A2 en A76 is het toxisch scenario. Effecten als gevolg van een plasbrand of BLEVE reiken niet tot het plangebied.
Het bestrijdbaarheid vraagstuk op deze grote afstand van de risicobron speelt niet. Bestrijding vindt plaats bij de bron.
Ad 4
Blootstelling aan een toxisch gas is het bepalende scenario. In geval van een calamiteit dienen personen te schuilen. De mate waarin deze bouwwerken afsluitbaar zijn tegen indringing van toxisch gas en de tijdsduur dat deze bouwwerken worden blootgesteld zijn hierbij parameters.
Bouwwerken zijn doorgaans goed geïsoleerd, waardoor ze een goede bescherming bieden tegen het binnendringen van het toxisch gas. Belangrijk is wel dat de ventilatievoorzieningen / luchtbehandelingsinstallaties snel kunnen worden uitgeschakeld of worden gesloten.
Daarnaast dient in geval van een calamiteit tijdig gewaarschuwd te worden. Dit gebeurt door het in werking stellen van het WAS (landelijk Waarschuwing Alarm Systeem, voorheen luchtalarm genaamd) in als onderdeel van de algemene Rampenbestrijding.
Conclusie
Geconcludeerd wordt dat er vanuit het oogpunt van externe veiligheid geen belemmeringen zijn voor de planrealisatie aan de Markt 1 1 te Beek. Aandacht moet worden besteed aan de volgende punten:
Bovengenoemde aandachtspunten zijn niet wettelijk afdwingbaar maar kunnen in onderling overleg met de eigenaar genomen worden. De aspecten bestrijdbaarheid en zelfredzaamheid dienen voor advies te worden voorgelegd aan de Veiligheidsregio Zuid-Limburg. Dit advies dient de gemeente Beek mee te nemen in haar verantwoording van het groepsrisico.
In of nabij het besluitgebied liggen geen kabels en leidingen die ten behoeve van het gebruik en/of de veiligheid planologische bescherming behoeven en daarmee een belemmering voor het planvoornemen betekenen. Wel is ten noorden van het besluitgebied een hoogspanningskabel (150 kV) en verdeelstation gelegen. Deze hoogspanningslijn heeft een indicatieve zone van 2 x 80 meter. Vanwege de afstand tot het besluit gebied van ongeveer 900 meter kan gesteld worden dat het invloedsgebied geen effect heeft op onderhavige ontwikkeling. Tevens zijn in het straatprofiel van de Marktstraat en de Markt de huisaansluiting voor gas, water en electra gelegen. Het voormalige kantoorpand is hierop aangesloten.
Tevens worden binnen dit kader eisen gesteld aan de maximumhoogtes van bebouwing. Binnen de juridische regeling van het vigerende bestemmingsplan "Kern Beek" zijn geen zodanige bebouwingshoogtes mogelijk dat hierdoor beperkingen voor de luchtvaart kunnen ontstaan.
Bij elk ruimtelijk plan moet, met het oog op beschermenswaardige natuurwaarden, rekening worden gehouden met de regelgeving op het gebied van gebiedsbescherming en soortenbescherming en nagegaan worden of er schade wordt toegebracht aan beschermde dier- en plantensoorten.
Gebiedsbescherming
De bescherming van Natura 2000-gebieden is geregeld in de Wet natuurbescherming, die de implementatie vormt van de Europese Vogelrichtlijn en Habitatrichtlijn. De Natura 2000-gebieden vormen samen een Europees netwerk van natuurgebieden: Natura 2000. Als ontwikkelingen (mogelijk) leiden tot aantasting van natuurwaarden binnen een Natura 2000-gebied, moet een vergunning worden aangevraagd. Gedeputeerde staten van de provincie zijn het bevoegd gezag voor verlening van deze vergunning. Indien eerst een omgevingsvergunning wordt aangevraagd voor een activiteit waarvoor tevens een vergunning op grond van de Wet natuurbescherming is vereist, dan haakt de natuurtoets aan bij de omgevingsvergunning.
Verder moet rekening worden gehouden met het beleid ten aanzien van het Natuurnetwerk Nederland (NNN). De regels met betrekking tot het NNN zijn opgenomen in de provinciale verordening. Ten aanzien van ontwikkelingen binnen het NNN geldt het 'nee, tenzij-principe'.
In de omgeving van het besluitgebied op een afstand van ongeveer 4,0 km en 4,5 km bevinden zich de Natura2000-gebied Geleenbeekdal en Bunder- en Elsloërbos. Deze gebieden maken tevens onderdeel uit van de Ecologische Hoofdstructuur (EHS). Het besluitgebied maakt onderdeel uit van de bebouwde omgeving van de kern Beek en is zelf niet gelegen in een Natura2000-gebied, de EHS of stiltegebied. Gezien deze afstand is de beoogde ontwikkeling niet van invloed op het Natura 2000-gebied.
Soortenbescherming
De bescherming van dier- en plantensoorten is eveneens in de Wet natuurbescherming geregeld. In deze wet zijn drie beschermingsregimes opgenomen: voor vogels in de zin van de Vogelrichtlijn, voor dier- en plantensoorten uit de Habitatrichtlijn en voor overige soorten. Kort gezegd is het verboden om beschermde diersoorten opzettelijk te doden, te vangen of te verstoren. Hun voortplantings- en rustplaatsen mogen niet (opzettelijk) worden beschadigd of vernield. Verder is het verboden beschermde plantensoorten te vernielen. Onder voorwaarden is ontheffing van de verbodsbepalingen mogelijk. Het bevoegd gezag voor het verlenen van een ontheffing zijn gedeputeerde staten van de provincie. Als eerst een omgevingsvergunning wordt aangevraagd, dan haakt de ontheffing op grond van de Wet natuurbescherming daarbij aan.
Het voormalige kantoorpand waarin de realisatie van de woningen is beoogd staat momenteel leeg. Het besluitgebied is gelegen in de bebouwde omgeving van de kern Beek. Het perceel is volledig bebouwd dan wel verhard. Gezien de 'stenige' omgeving zijn er met de realisatie van de woningen zijn geen natuurwaarden in het geding.
Sinds 1 september 2007 is de nieuwe wet op de archeologische monumentenzorg (Wamz) van kracht. Hiermee geeft de rijksoverheid uitvoering aan de implementatie van het Europese Verdrag van Valletta (“Malta”) uit 1993 dat beoogt het cultureel erfgoed in de bodem beter te beschermen. Met de inwerkingtreding van de Wamz krijgt de gemeente Beek een eigen verantwoordelijkheid voor het bodemarchief (veelal aangeduid als 'archeologische zorgplicht'). De kern daarvan is dat de gemeente verplicht is om archeologische waarden en verwachtingen van meet af aan volwaardig mee te laten wegen in ruimtelijke plannen. Doel is om archeologische waarden zoveel mogelijk in de grond te bewaren. Pas als dat niet mogelijk is, dienen de archeologische waarden door middel van een opgraving veiliggesteld te worden. Daarbij geldt het “veroorzaker-principe”: de initiatiefnemer (bodemverstoorder) betaalt de kosten van archeologisch onderzoek.
Archeologie
Een verantwoord beheer van het archeologisch bodemarchief in de gemeente kan niet zonder een gedegen inzicht in de ligging van alle bekende archeologische waarden en verwachtingen. Daartoe is de archeologische beleidskaart van de gemeente Beek gemaakt. In feite gaat het om twee kaarten: de Archeologische Verwachtingskaart en de Archeologische Beleidsadvieskaart, die zijn vastgesteld door de gemeenteraad in mei 2009).
De Archeologische Verwachtingskaart geeft, op basis van een analyse van landschappelijke en archeologische informatie, een vlakdekkend overzicht van alle bekende en verwachte archeologische waarden op het grondgebied van de gemeente Beek. Zes soorten archeologische gebieden zijn onderscheiden.
Op de Archeologische Advieskaart zijn aan de verschillende archeologische gebieden beleidsadviezen gekoppeld. Voor de verwachtingsgebieden (categorie 1-4) en de gebieden met bekende waarden (categorie 5 en 6) wordt voorgesteld om initiatiefnemers van toekomstige bodemingrepen te verplichten tot het (laten) uitvoeren van onderzoek naar de archeologische waarde van het terrein.
Uitsnede archeologische advieskaart
Op basis van de Archeologische Advieskaart van de gemeente Beek is het besluitgebied aangemerkt zijnde een gebied met een middelhoge verwachting. Dit houdt in dat binnen de gebieden aangewezen gronden zijn, behalve voor de andere daar voorkomende bestemming(en), mede bestemd voor het behoud, de bescherming en/of het herstel van de voorkomende archeologische waarden.
De appartementen worden binnen de bestaande bebouwing op de 1e t/m de 3e verdieping van het voormalige kantoorpand gerealiseerd. Er vinden daarmee geen bodemingrepen plaats. Dit houdt in dat voor onderhavig planvoornemen archeologisch onderzoek niet noodzakelijk is.
Cultuurhistorie
Per 1 januari 2012 is de Modernisering Monumentenzorg (MoMo) in Werking getreden. Als gevolg van de MoMo wijzigt het Bro (artikel 3.6.1, lid 2). Wat eerst alleen voor archeologie gold, geldt nu ook voor al het cultureel erfgoed. In een bestemmingsplan dient een beschrijving te worden opgenomen hoe met de in het gebied aanwezige cultuurhistorische waarden en in de grond aanwezige of te verwachten monumenten rekening is gehouden.
De verlener van de omgevingsvergunning en het daarbij behorende besluit is daarmee dus verplicht om breder te kijken dan alleen naar het facet archeologie. Ook de facetten historische (stede)bouwkunde en historische geografie dienen te worden meegenomen in de belangenafweging. Hierbij gaat het om zowel beschermde als niet formeel beschermde objecten en structuren.
Het voormalige kantoorpand is niet aangemerkt als een rijks- dan wel gemeentelijk monument. Het heeft geen enkele cultuurhistorische waarden. De te realiseren appartementen worden binnen de bestaande bebouwing van dit kantoorpand gerealiseerd. De uiterlijke verschijningsvorm blijft derhalve ongewijzigd.
Waterwet
Op 22 december 2009 is de Waterwet in werking getreden. Een achttal wetten is samengevoegd tot één wet, de Waterwet. De Waterwet regelt het beheer van oppervlaktewater en grondwater, en verbetert ook de samenhang tussen waterbeleid en ruimtelijke ordening. Daarnaast levert de Waterwet een flinke bijdrage aan kabinetsdoelstellingen zoals vermindering van regels, vergunningstelsels en administratieve lasten. Een belangrijk gevolg van de Waterwet is dat de huidige vergunningstelsels uit de afzonderlijke waterbeheerwetten worden gebundeld. Dit resulteert in één vergunning, de watervergunning.
Nationaal waterplan
Het doel van dit als structuurvisie te beschouwen plan is het zodanig omgaan met de waterhuishouding dat ook latere generaties veilig en welvarend van de ruimte gebruik kunnen maken. Bescherming tegen droogte en wateroverlast, maar ook het zorgen voor een goede waterkwaliteit zijn hierbij van groot belang. Door bij ruimtelijke ontwikkelingen rekening te houden met waterhuishoudkundige eisen op korte en lange termijn kan een duurzaam en klimaatbestendig watersysteem bereikt worden.
Provinciaal waterplan 2016-2021
Het provinciaal waterplan 2016-2021 is een structuurvisie van de provincie Limburg waarin het nationale waterbeleid verder doorvertaald wordt. Het plan bevat enkele specifieke doelen om het watersysteem met het oog op de toekomst te verbeteren, te weten het herstel van de sponswerking, het herstel van natte natuur, schoon water, duurzame watervoorziening en een veilige Maas.
Met deze doelen wordt ingezet op nieuw waterbeheer waarbij functies gebonden aan waterkwaliteit in balans moeten zijn met variaties in de beschikbaarheid en kwaliteit van water. Hierbij wordt ingezet op een grensoverschrijdende stroomgebied benadering middels een integrale brongerichte aanpak. Daarnaast moet er meer ruimte gecreëerd worden voor natuurlijke processen in het watersysteem, moet het solidariteitsprincipe in acht genomen worden en dient water vooraf betrokken te worden bij ruimtelijke ontwikkelingen en afwegingen.
Omgevingsverordening Limburg
Het besluitgebied ligt binnen Roerdalslenk zone III, zoals die is opgenomen in de Omgevingsverordening Limburg. In deze zone zijn de regels van artikel 2.14 en 2.16 van deze verordening van toepassing. Op grond daarvan mogen er geen boorputten worden gemaakt, geen bodemenergiesystemen worden aangelegd en mag de grond niet dieper worden geroerd dan de bovenkant van de Bovenste Brunssumklei. De beschermende werking van de Bovenste Brunssumklei mag niet worden aangetast.
Waterplan Beek
In augustus 2007 heeft de gemeenteraad van Beek het waterplan voor de gemeente vastgesteld. Dit plan is opgesteld omdat water een steeds belangrijker aspect vormt voor het behoud van een goede woon- en leefomgeving. Niet alleen neemt de intensiteit van de regenbuien toe als gevolg van klimaatsveranderingen, ook de ecologische en chemische kwaliteit van het oppervlaktewater staat onder de aandacht. Het waterplan heeft tot doel een gezamenlijke visie op te stellen voor de inrichting en het beheer van het water in Beek.
Verdeeld over een aantal thema's is in het waterplan een beeld geschetst van het toekomstig watersysteem in Beek. Belangrijke uitgangspunten daarbij zijn dat:
Om het toekomstbeeld te bereiken is een aantal maatregelen noodzakelijk. In het rapport zijn deze maatregelen benoemd, voorzien van een globale kostenindicatie en uitvoeringsperiode.
Om water in de bebouwde leefomgeving vorm te geven wordt niet alleen de verplichte watertoets gevolgd, maar wordt tevens de handhaving hiervan verbeterd. Om regenwater op een gestructureerde wijze uit het stedelijke gebied af te voeren wordt een waterstructuurkaart opgesteld. Stedelijk grondwater krijgt meer aandacht door het in beeld brengen van grondwateroverlastlocaties, het formuleren van maatregelen, het instellen van een grondwatermeetnet en een grondwaterloket.
Afkoppelen van verhard oppervlak blijft een aandachtspunt. Hier wordt bij ruimtelijke ontwikkelingen zoals in onderhavige situatie indien mogelijk op in gespeeld.
Uit de legger van het waterschap Limburg blijkt dat in of in de directe omgeving van het besluitgebied van het voormalige kantoorpand geen primaire watergangen zijn gelegen. Ten oosten van het besluitgebied is op enige afstand de primaire watergang Keutelberg met bijbehorende beschermingszone gelegen. Gezien de afstand (> 5 meter) is het planvoornemen hierop niet van invloed.
Uitsnede legger waterschap Limburg
De nieuwe appartementen worden binnen de bestaande bebouwing van het voormalige kantoorpand gerealiseerd. De waterhuishoudkundige situatie blijft hierdoor ter plaatse ongewijzigd.
Het voormalige kantoorpand wordt intern verbouwd en is aangesloten op de reeds aanwezige riolering van de Markt/Marktstraat. Deze situatie wijzigt niet. Het afvalwater wordt via het riool afgevoerd naar de regionale RWZI. Wel geldt het advies dat waar mogelijk het hemelwater afgekoppeld wordt van het vuilwater, zodat bij een eventuele toekomstige verplichting deze al gerealiseerd is. De appartementen worden derhalve voorzien van een gescheiden stelsel. Tevens zullen eventuele voorzieningen in de riolering voor de horecafunctie (vetafscheiders, slibvangput, etc.) afgestemd worden met de RUD (Regionale Uitvoeringsdienst).
Naast het toetsen van een omgevingsvergunning in afwijking van het bestemmingsplan aan diverse milieu- en veiligheidsaspecten, dient de omgevingsvergunning ook getoetst te worden aan de uitvoerbaarheid van het planvoornemen. Hierbij wordt gekeken naar de economische uitvoerbaarheid en de maatschappelijke uitvoerbaarheid.
Het betreft hier een private ontwikkeling waarbij het risico geheel gedragen wordt door de initiatiefnemer, tevens eigenaar. Dit wordt geregeld door middel van een privaatrechtelijk overeenkomst met de gemeente Beek. In deze overeenkomst wordt de aan de gemeente te betalen financiële bijdrage op grond van de woningbouwcompensatie en exploitatiebijdragen vastgelegd. Bovendien zal in deze overeenkomst de afwenteling van eventuele planschadeclaims worden geregeld. Voor de gemeente Beek zelf zijn er geen kosten verbonden aan de verwezenlijking van het plan. Op grond van het voorgaande kan worden geconcludeerd dat de economische en financiële uitvoerbaarheid van het project voldoende is gegarandeerd.
Het planvoornemen betreft de realisatie van 4 appartementen in een voormalig kantoorpand aan de Markt 11 te Beek. Door de realisatie van een viertal appartementen met detailhandel- en horeca functie in dit voormalige kantoorpand, komt de functie ter plaatse te vervallen. Door transformatie en herinvulling van het voormalige kantoorpand wordt leegstand in het centrum van Beek voorkomen. De detailhandel- en horecafunctie op de begane grond dragen zelfs bij aan de versterking van het centrum van Beek. Doordat de nieuwe appartementen gerealiseerd worden binnen de bestaande bebouwing van het voormalige kantoorpand wijzigt de ruimtelijke structuur ter plaatse niet. Deze wordt juist versterkt door de beoogde functies.
Aangezien het planvoornemen ruimtelijk gezien zorgt voor een kwaliteitsverbetering en de woning aansluit op de bestaande panden met bovenwoningen in de directe omgeving, mag aangenomen worden dat tegen het planvoornemen geen overwegende bezwaren bestaan.
Het planvoornemen zal gezien het bovenstaande niet leiden tot overwegende planologische bezwaren. Onderhavige afwijking van het bestemmingsplan betekent, na een afweging van de verschillende belangen, een aanvaardbare invulling van het besluitgebied en de continuering van de bebouwing aan de Markt 11.
Deze ruimtelijke onderbouwing is opgesteld als onderdeel van de ten behoeve van de realisatie van de appartementen noodzakelijke omgevingsvergunning als bedoeld in de 'kruimengevalbepaling', te weten artikel 4, lid 9 van hoofdstuk IV, bijlage II Besluit omgevingsrecht juncto artikel 2.12, eerste lid, onder a, onder 2 Wabo.
Het waterschap Limburg heeft medegedeeld dat ruimtelijke ontwikkelingen met een verhard oppervlak minder dan 1000 m² en die niet in een aandachtsgebied liggen niet meer ten behoeve van het vooroverleg hoeven te worden voorgelegd aan het watertoetsloket.
In onderhavige situatie is het oppervlak van het perceel minder dan 1000 m² en vindt de realisatie van de appartementen binnen het voormalige kantoorpand plaats. Het verhard oppervlak blijft als gevolg van het planvoornemen ongewijzigd en neemt niet toe. Verder zijn er geen belangen van het waterschap in het geding. Het planvoornemen is dan ook aan te merken als een klein plan en heeft daarmee geen of nauwelijks invloed op de waterhuishouding. In dat kader wordt onderhavig ruimtelijke onderbouwing dan ook niet voorgelegd aan het watertoetsloket in het kader van de watertoets.