direct naar inhoud van Ruimtelijke onderbouwing
Plan: Raadhuispark 2 Beek
Status: ontwerp
Plantype: omgevingsvergunning
IMRO-idn: NL.IMRO.0888.PBRAADHUISPARK2-ON01

Ruimtelijke onderbouwing

Hoofdstuk 1 Inleiding

1.1 Aanleiding

Aan het Raadhuispark 2 te Beek is het voormalig politiekantoor gelegen. Het pand heeft geruime tijd leeg gestaan. Momenteel is het pand verhuurt en in gebruik als dierenkliniek. De voornaamste reden voor deze leegstand is dat de bouwstijl en de functionele indeling van het pand, als politiekantoor, niet aansluit bij de hedendaagse wensen die aan de orde zijn voor kantoren en aanverwante functies. Momenteel is het voormalite p

In dit kader is de wens ontstaan van de initiatiefnemer om het politiekantoor te herontwikkelen naar een locatie met appartementen voor 1-2 persoonshuishoudens (senioren, starters) in het midden huursegment. Eerdere herontwikkelingen in dit kader binnen de gemeente Beek hebben laten zien dat de vraag naar dergelijke appartementen groot is. Met name in het midden huursegment. Aan de andere kant is het aanbod binnen de gemeente beperkt, zeker op centraal gelegen, goed bereikbare locaties dicht bij het centrum.

De stijgende vraag naar dergelijke (huur)appartementen en aan de andere kant dreigende verpaupering en leegstand in de directe nabijheid van het centrum, maken de herontwikkeling van het Raadhuispark 2 naar 14 appartementen voor 1-2 persoonshuishoudens (senioren, starters) een ontwikkeling waarmee de vitaliteit en de leefbaarheid van het centrum van Beek aanzienlijk wordt vergroot.

Op dit moment kent de locatie een maatschappelijke bestemming binnen het vigerende bestemmingsplan. Binnen deze bestemming is de beoogde ontwikkeling qua gebruik en bouwen (buiten bouwvlak) niet mogelijk. Om het planvoornemen planologisch-juridisch te verankeren is derhalve een omgevingsvergunning in afwijking van het bestemmingsplan noodzakelijk in combinatie met de activiteit bouwen. De gemeente Beek heeft aangegeven principemedewerking te verlenen aan het voornemen.

1.2 Ligging en begrenzing van het besluitgebied

Het besluitgebied is gelegen aan het Raadhuispark 2 in de directe nabijheid van het centrum van Beek. Aan de achterzijde van het besluitgebied is het gemeentehuis van Beek gelegen. Het besluitgebied is kadastraal bekend gemeente Beek, sectie F, nummers 4672 en 4673 ter grootte van 1.380 m2.

afbeelding "i_NL.IMRO.0888.PBRAADHUISPARK2-ON01_0001.png"

Luchtfoto met rood omlijnd het besluitgebied

1.3 Vigerend bestemmingsplan

Het besluitgebied is gelegen binnen het vigerende bestemmingsplan 'Kern Beek', dat door de raad is vastgesteld op 26 april 2012. Het besluitgebied is bestemd met de enkelbestemming 'Maatschappelijk' in combinatie met de functieaanduiding 'kantoor', alsmede de dubbelbestemming 'Waarde - Archeologie 3'. Binnen de enkelbestemming zijn de aanduidingen 'bouwvlak' en maximum goot- en bouwhoogte (6 meter) van toepassing. Daarnaast gelden de gebiedsaanduidingen 'geluidzone - industrie' en 'luchtvaartverkeerszone'.

afbeelding "i_NL.IMRO.0888.PBRAADHUISPARK2-ON01_0002.png"

Uitsnede bestemmingsplankaart met rood omlijnd het besluitgebied

De voor 'Maatschappelijk' aangewezen gronden zijn bestemd voor:

  • doeleinden ten behoeve van onderwijs, openbaar bestuur, religieuze functies, overdekte sport- en spelaccomodaties, medische-sociale functies, maatschappelijke en culturele functies, met dien verstande dat seksinrichtingen en/of pornobedrijven hier in ieder geval niet onder vallen;
  • brug, ter plaatse van de aanduiding "brug";
  • kantoor, ter plaatse van de aanduiding "kantoor";
  • parkeren;
  • groen;
  • bouwwerken van openbaar nut;

alsmede voor:

  • begraafplaats ter plaatse van de aanduiding "begraafplaats".

Binnen deze bestemming is de herontwikkeling naar 14 seniorenappartementen binnen het besluitgebied niet mogelijk. Derhalve is een omgevingsvergunning in afwijking van het bestemmingsplan noodzakelijk in combinatie met de activiteit bouwen.

Naast het bestemmingsplan 'Kern Beek' is op het besluitgebied tevens het vastgestelde bestemmingsplan 'Parkeren' van toepassing. Bij een wijzing c.q. afwijking van het bestemmingsplan moet hieraan worden getoetst. Het bestemmingsplan 'Parkeren' verwijst naar de 'Parkeernota 2018 gemeente Beek', waarin weer wordt verwezen naar de meest recente CROW normen. In het kader van de herontwikkeling naar 14 appartementen voor 1-2 persoonshuishoudens (senioren, starters) zal aan de gestelde parkeernormen voldaan dienen te worden. Hierop wordt in paragraaf 3.2 nader ingegaan

Tot slot is op het besluitgebied ook nog een voorbereidingsbesluit 'Detailhandel' van kracht. In dit voorbereidingsbesluit is opgenomen dat het verboden is het huidige gebruik van de gronden en/of bouwwerken te wijzigen voor het gebruik als detailhandel. Aangezien het onderhavig planvoornemen uitgaat van woningbouw heeft dit voorbereidingsbesluit geen beperkende werking.

1.4 Leeswijzer

Deze ruimtelijke onderbouwing bestaat na dit inleidende hoofdstuk uit de volgende hoofdstukken: In de beschrijving van het besluitgebied (hoofdstuk 2) zijn de aanwezige functies in het gebied beschreven. Het planvoornemen zelf wordt in hoofdstuk 3 beschreven. In Hoofdstuk 4 worden de relevante visies beschreven die er op de verschillende bestuursniveaus (rijk, provincie, gemeente) zijn ten aanzien van het besluitgebied (Beleidskader). In Hoofdstuk 5 worden de milieuaspecten nader onderbouwd. Hoofdstuk 6 gaat in op de economische- en maatschappelijke uitvoerbaarheid van het planvoornemen. Tot slot wordt in hoofdstuk 7 de verdere procedure aangegeven.

Hoofdstuk 2 Gebiedsbeschrijving

2.1 Inleiding

Om een beeld te krijgen van de omgeving van het besluitgebied wordt eerst een gebiedsbeschrijving van Beek en met name van de directe omgeving van het besluitgebied en het besluitgebied zelf gegeven. Dit wordt gedaan aan de hand van de ontstaansgeschiedenis, de ruimtelijke structuur en functionele structuur.

2.2 Ontstaansgeschiedenis

De oudste vermelding van Beek is een vermelding van het Zuid-Limburgse dorp Becca, De naam 'Beek' is afkomstig van de Keutelbeek, die dwars door Beek stroomt. De oudste, menselijke ontwikkelingen hebben dan ook hoogstwaarschijnlijk langs deze hooglandbeek plaats gehad.

Vermoedelijk liep door het huidige grondgebied van Beek een Romeinse heerweg, die van Maastricht naar Tüddern liep. De straatnaam Heirstraat suggereert waar deze ongeveer heeft gelopen. Het dorp vormde zich als een lintdorp voornamelijk langs deze oude verbindingsweg. Halverwege de 18e eeuw werd de postweg van Maastricht naar Roermond aangelegd, die ook Beek passeerde.

Vanaf de 19e eeuw kwam het dorp aan de rijksweg Maastricht - Nijmegen te liggen (de huidige Maastrichterlaan/Prins Mauritslaan). Desondanks begon Beek zich pas werkelijk te ontwikkelen nadat de Staatsmijn Maurits in het nabijgelegen Lutterade in bedrijf kwam, waarvoor in Beek een groot aantal woningen voor de mijnarbeiders werd gebouwd. De Staatsmijnen breidden hun territorium in 1951 uit naar het grondgebied van Beek met de bouw van de cokesfabriek Emma II, die in 1954 in gebruik werd genomen. Na de sluiting van deze fabriek werd op deze plaats het Polychem gevestigd, het chemisch bedrijf van de Staatsmijnen (later DSM), dat tegenwoordig onderdeel is van het chemiecomplex Chemelot.

In de loop der tijd heeft Beek zich ontwikkeld tot een kern met de nodige voorzieningen en tot zijn huidige omvang door middel van een aantal complexgewijze uitbreidingen in de 2e helft van de 20e eeuw.

2.3 Ruimtelijke structuur

Beek is een groot 'dorp' en vertoont zowel dorpse kenmerken (smalle straatjes met oude boerderijen) als stedelijke kenmerken (drukke verkeerswegen en hoogbouw). De plaats wordt omringd door zowel landelijk gebied, als door stedelijk gebied, als door sterk industrieel gebied.

Aan de noordzijde van de kern Beek ligt Geleen met het industriecomplex Chemelot, aan de oostzijde het heuvelland, aan de zuidzijde de luchthaven Maastricht-Aachen Airport (plaatselijk beter bekend als Vliegveld Beek) en aan de westzijde de gemeente Stein, met haar gelijknamige hoofdplaats.

De kern heeft vele eigen voorzieningen. Naast het dorpscentrum ligt op het bedrijventerrein ten noorden van de plaats het grote overdekte winkelcentrum Makado waar grotere winkels als C&A en Albert Heijn zijn gevestigd.

De ruimtelijke structuur in de directe omgeving van het besluitgebied wordt gekenmerkt door een schakering van woonobjecten en centrumvoorzieningen. Zo is direct naast het besluitgebied (aan de achterzijde) het gemeentehuis gelegen. Daarnaast zijn er in de directe nabijheid ruime parkeerplekken gelegen. Direct tegenover het besluitgebied is een appartementencomplex gelegen met vier verdiepingen en een 5e verdieping in de kap. De naastgelegen woonobjecten betreffen allen geschakelde woningen met een verdieping en kap.

Het besluitgebied zelf wordt gekenmerkt door de bebouwing van het voormalige politiekantoor.

afbeelding "i_NL.IMRO.0888.PBRAADHUISPARK2-ON01_0003.png"

Geschakelde woonobjecten met op de hoek het appartementencomplex

afbeelding "i_NL.IMRO.0888.PBRAADHUISPARK2-ON01_0004.png"

Vooraanzicht besluitgebied met voormalig politiekantoor

2.4 Functionele structuur

Het besluitgebied is gelegen in de directe nabijheid van het centrum van Beek. De omgeving wordt daardoor gekenmerkt door een afwisseling van woonfuncties, dienstverlening, maatschappelijke, horeca en detailhandel.

Hoofdstuk 3 Planbeschrijving

3.1 Planvoornemen

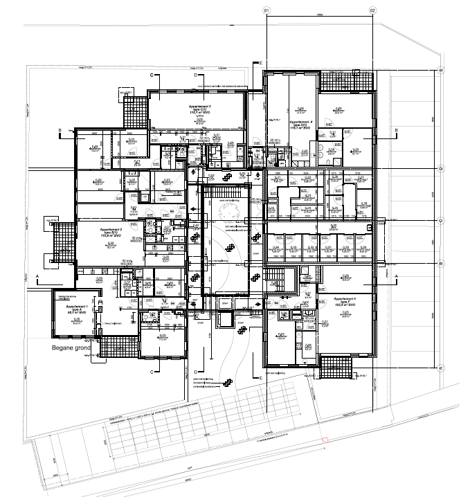
Het planvoornemen omvat de herontwikkeling (transformatie) van het bestaande politiekantoor aan het Raadhuispark 2 in Beek naar 14 appartementen. Deze appartementen worden dusdanig ingericht dat deze toegankelijk zijn voor een breed scala aan doelgroepen, waaronder ook senioren. Er wordt naast de bestaande bebouwing een extra vleugel aangebouwd. Onderstaande afbeelding laat schematisch het planvoornemen zien.

afbeelding "i_NL.IMRO.0888.PBRAADHUISPARK2-ON01_0005.png"

afbeelding "i_NL.IMRO.0888.PBRAADHUISPARK2-ON01_0006.png"

Beoogde inrichting besluitgebied (begane grond)

In de uitgezoomde kaart rechtsonder is de bestaande bebouwing (waarvan de footprint grotendeels behouden blijft) aangeduid met een lichtgrijze kleur. De donkergrijze kleur geeft de nieuwe woonvleugel aan. In zijn totaliteit zal het woongebouw plaats bieden aan 14 appartementen voor 1-2 persoonshuishoudens (senioren, starters) in het midden huursegment. Daarbij zal het oorspronkelijk, lichtgrijs aangeduide deel van het te realiseren woongebouw bestaan uit een tweelaags woongebouw en het donkergrijze deel uit een drielaags woongebouw. De bestaande bebouwing wordt gemoderniseerd en de kapjes op de 'torentjes' aan de voorzijde worden verwijderd. Dit is ook duidelijk te zien in de volgende aanzicht van het woongebouw.

afbeelding "i_NL.IMRO.0888.PBRAADHUISPARK2-ON01_0007.png"

afbeelding "i_NL.IMRO.0888.PBRAADHUISPARK2-ON01_0008.png"

Aanzicht voorgevel

afbeelding "i_NL.IMRO.0888.PBRAADHUISPARK2-ON01_0009.png"

afbeelding "i_NL.IMRO.0888.PBRAADHUISPARK2-ON01_0010.png"

afbeelding "i_NL.IMRO.0888.PBRAADHUISPARK2-ON01_0011.png"

Impressies nieuw woongebouw in relatie tot omgeving (vogelvlucht)

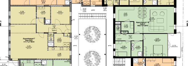
Op de begane grond worden 5 appartementen in combinatie met de bergingen gerealiseerd. De 1e verdieping bestaat uit 6 appartementen. De 2e verdieping ter plaatse van de nieuwe woonvleugel bestaat uit 3 appartementen. De appartementen bestaan uit een hal, woonkamer met keuken, twee slaapkamers, een badkamer, apart toilet, berging en hebben verder allemaal een balkon dan wel een buitenruimte (begane grond). Het totale vloeroppervlak van de appartementen varieert van 90 m2 tot ruim 100 m2, tot het grootste appartement van 120 m2.

afbeelding "i_NL.IMRO.0888.PBRAADHUISPARK2-ON01_0012.png"

Indeling/plattegrond appartement

Het nieuwe woongebouw wordt voorzien van een 'binnentuin' ingeklemd tussen de 'oude' en nieuwe bebouwing. Daarnaast zullen de appartementen en het woongebouw an sich worden afgewerkt met hoogwaardige, duurzame materialen (o.a. gecertificeerd hout). Uitgangspunt hierbij is energiezuinig wonen.

afbeelding "i_NL.IMRO.0888.PBRAADHUISPARK2-ON01_0013.png"

Impressie 'binnentuin'

De appartementen moeten voor een breed scala aan bewoners toegankelijk zijn (generatieneutraal), met name ook senioren en starters. De appartementen zijn gelijksvloers en worden levensloopbestending in gericht. In dat kader is het woongebouw ook voorzien van een lift. Ook is er een e-bike voorziening opgenomen.

3.2 Verkeer en parkeren

Het uitganspunt ten aanzien van parkeren is dat hierin zo veel mogelijk op eigen terrein zal worden voorzien. Op basis van de vigerende beleidsnota 'Parkeernota 2018 gemeente Beek' en de verwachte verkeersaantrekkende werking zal tussen de 14 en 25 parkeerplekken gerealiseerd moeten worden. Dit is gebaseerd op een parkeernorm voor het woningtype huur/etage/duur in weinig stedelijk/centrum, zijnde minimaal 1,0 pp/wonning en maximaal 1,8 pp/woning. De gemeente Beek heeft aangegeven dat voor onderhavig voornemen een parkeernorm van 19 parkeerplekken aan de orde is.

In dat kader is door het college op 14 mei 2019 besloten dat in deze parkeerbehoefte kan worden voorzien door de aanleg van 11 parkeerplekken op eigen terrein. Deze 11 parkeerplaatsen worden in de vorm van haaksparkeren aan het Raadhuispark gesitueerd, in aansluiting op de bestaande (openbare) parkeerplaatsen. Om in de parkeerbehoefte te voorzien worden tevens 3 nabijgelegen garageboxen gehuurd voor de periode van 10 jaar ten behoeve van de parkeervoorziening van de appartementen. Hiervoor is een huurovereenkomst door de initiatiefnemer afgesloten met de eigenaar van de betreffende garageboxen.

Het resterend tekort van 5 parkeerplekken waarvoor het besluitgebied geen plek bied zullen financieel worden gecompenseerd middels een bijdrage in het parkeerfonds van € 2.600,-- per parkeerplaats. Met deze bijdrage kan worden geïnvesteerd in het openbaar gebied. Het openbaar gebied zal in het tekort van deze parkeerplekken op eigen terrein voorzien.

Hoofdstuk 4 Beleidskader

4.1 Inleiding

Gemeenten zijn niet geheel vrij in het voeren van hun eigen beleid. Rijk en provincies geven met het door hen gevoerde en vastgelegde beleid de kaders aan waarbinnen gemeenten kunnen opereren. Hierna worden in het kort de voornaamste zaken uit het voor het besluitgebied relevante nationale en provinciale beleid weergegeven, aangevuld met het van toepassing zijnde beleid van de gemeente.

4.2 Rijksbeleid

4.2.1 Nationale Omgevingsvisie

In het kader van de nieuwe omgevingswet, die per 1 januari 2021 in werking treedt, wordt momenteel de Nationale Omveringsvisie (NOVI, ontwerp) door het rijk opgesteld. Aan de hand van een toekomstperspectief op 2050 wordt hierin de langetermijnvisie in beeld gebracht. Op nationale belangen wil het Rijk (net als nu) sturen en richting geven. Hiervoor worden vier prioriteiten onderscheiden:

  • 1. Ruimte voor klimaat adaptatie.
  • 2. Duurzaam economisch groeipotentieel.
  • 3. Sterke en gezonde steden en regio's.
  • 4. Toekomstbestendige ontwikkeling van het landelijk gebied.

Om invulling te kunnen geven aan deze vier prioriteiten hanteert het rijk de volgende drie afwegingsprincipes:

  • 5. Combinaties van functies gaat voor enkelvoudige functies.
  • 6. Kenmerken en identiteit van een gebied staan centraal.
  • 7. Afwentelen wordt voorkomen.

Echter totdat de NOVI van kracht wordt, is het rijksbeleid vastgelegd in respectievelijk de Structuur Infrastructuur en Ruimte (SVIR), het Besluit algemene regels ruimtelijke ordening en de ladder voor duurzame verstedelijking. Het planvoornemen is in ieder geval in de geest van de ontwerp Nationale Omgevingsvisie. Met de transformatie van het voormalige politiekantoor naar een wooncomplex wordt een bijdrage geleverd aan een sterke en gezonde kern en wordt een kwalitatieve bijdrage gegeven aan de ruimtelijke structuur ter plaatse.

4.2.2 Structuurvisie Infrastructuur en Ruimte (SVIR)

Op 13 maart 2012 is de Structuurvisie Infrastructuur en Ruimte vastgesteld. In deze structuurvisie worden ambities voor Nederland gesteld voor de periode tot in 2040, die inspelen op de (inter)nationale ontwikkelingen die de ruimtelijke en mobiliteitsopgaven bepalen richting 2040. Het Rijk zet het ruimtelijk- en mobiliteitsbeleid in voor een concurrerend, bereikbaar, leefbaar en veilig Nederland.

Deze structuurvisie vervangt de Nota Ruimte, de Structuurvisie Randstad 2040, de Nota Mobiliteit, de MobiliteitsAanpak en de Structuurvisie voor de Snelwegomgeving.

De Structuurvisie gaat in grote mate uit van decentralisatie van verantwoordelijkheden. In vergelijking tot de 33 nationale belangen uit de bij de Nota Ruimte behorende Realisatieparagraaf Nationaal Ruimtelijk Beleid is het aantal Rijksbelangen sterk in omvang teruggebracht. Het Rijk legt hiermee op het vlak van de ruimtelijke ordening meer verantwoordelijkheid bij de provincies en gemeenten.

Het Rijk formuleert drie hoofddoelen om Nederland concurrerend, bereikbaar, leefbaar en veilig te houden voor de middellange termijn (2028). Deze doelen betreffen nadere uitwerkingen van een aantal Rijksbelangen uit de Realisatieparagraaf Nationaal Ruimtelijk beleid:

  • Het vergroten van de concurrentiekracht van Nederland door het versterken van de ruimtelijk-economische structuur van Nederland. Hier onder vallen onderwerpen als het bereiken van een excellent vestigingsklimaat in de stedelijke regio's, ruimte maken voor duurzame energievoorziening en ruimte maken voor het hoofdnetwerk voor vervoer van (gevaarlijke) stoffen via buisleidingen.
  • Het verbeteren, instandhouden en ruimtelijk zeker stellen van de bereikbaarheid waarbij de gebruiker voorop staat. Hier onder vallen onderwerpen als verbeteren van het hoofdnetwerk van weg, spoor en vaarwegen en een betere benutting van de capaciteit daarvan.
  • Het waarborgen van een leefbare en veilige omgeving waarin unieke natuurlijke en cultuurhistorische waarden behouden zijn. Hiertoe dient onder andere de milieukwaliteit (lucht, bodem, water) te worden verbeterd, dienen mensen tegen geluidsoverlast en externe veiligheidsrisico's te worden beschermd. Ook is ruimte nodig voor waterveiligheid, een duurzame zoetwatervoorziening en klimaatbestendige stedelijke (her) ontwikkeling.

De onderhavige ontwikkeling, waarin een bestaand pand wordt herontwikkeld c.q. uitgebreid tot seniorenappartementen, heeft geen invloed op de gestelde doelen in het SVIR. Deze transformatie voorkomt verpaupering c.q. leegstand en draagt juist bij om de ruimtelijke situatie ter plaatse van het besluitgebied in relatie tot de omgeving te verbeteren. Hiermee wordt een leefbare en veilige omgeving gewaarborgd. Derhalve zijn vanuit het SVIR geen beperkingen aan de orde voor het planvoornemen.

4.2.3 Besluit algemene regels ruimtelijke ordening

Op 30 december 2011 is het Besluit algemene regels ruimtelijke ordening (Barro) in werking getreden.

Voor de nationale belangen die kaderstellend zijn voor besluiten van gemeenten zijn in het Besluit algemene regels ruimtelijke ordening (Barro) regels opgenomen die direct het bestemmingsplan en daarmee gelijk te stellen besluiten betreffen. Zij strekken ertoe dat de nationale ruimtelijke afweging, die door het kabinet in samenspraak met de Tweede en Eerste Kamer der Staten-Generaal is gemaakt, bij besluitvorming over bestemmingsplannen wordt gerespecteerd.

Onderwerpen waarvoor het rijk ruimte vraagt zijn de mainportontwikkeling van Rotterdam, bescherming van de waterveiligheid in het kustfundament en in en rond de grote rivieren, bescherming en behoud van de Waddenzee en enkele werelderfgoederen, zoals de Beemster, de Nieuwe Hollandse Waterlinie en de Stelling van Amsterdam en de uitoefening van defensietaken.

Op 1 oktober 2012 is het besluit aangevuld met de ruimtevraag voor de onderwerpen veiligheid op rijksvaarwegen, toekomstige uitbreiding van infrastructuur, de elektriciteitsvoorziening, de ecologische hoofdstructuur (EHS), de veiligheid van primaire waterkeringen, reserveringsgebieden voor hoogwater langs de Maas en maximering van de verstedelijkingsruimte in het IJsselmeer. Ook is het onderwerp duurzame verstedelijking in de regelgeving opgenomen.


Het planvoornemen heeft geen invloed op de nationale belangen zoals aangegeven in het Barro. Vanuit het Barro gelden dan ook geen beperkingen ten aanzien van het planvoornemen.

4.2.4 Ladder voor duurzame verstedelijking

In de Structuurvisie Infrastructuur en Ruimte is de 'Ladder voor duurzame verstedelijking' geïntroduceerd. Deze Ladder is ingericht voor een zorgvuldige afweging en transparante besluitvorming bij nieuwe stedelijke ontwikkelingen, zodat de ruimte in stedelijke gebieden optimaal wordt benut. De Ladder is per 1 oktober 2012 verankerd in het Besluit ruimtelijke ordening (artikel 3.1.6, tweede lid Bro). Kern van de Ladder is dat de stedelijke ontwikkeling op een locatie pas doorgang kan vinden als op regionaal niveau is aangetoond dat er daadwerkelijk een actuele behoefte aan is en dat de beschikbare ruimte in het stedelijk gebied optimaal wordt benut. In juli 2017 is het Bro gewijzigd, waarbij de afzonderlijke treden zijn losgelaten. Artikel 3.1.6, tweede lid Bro luidt nu als volgt:

“De toelichting bij een bestemmingsplan dat een nieuwe stedelijke ontwikkeling mogelijk maakt, bevat een beschrijving van de behoefte aan die ontwikkeling, en, indien het bestemmingsplan die ontwikkeling mogelijk maakt buiten het bestaand stedelijk gebied, een motivering waarom niet binnen het bestaand stedelijk gebied in die behoefte kan worden voorzien.”

Nieuwe stedelijke ontwikkeling

De Ladder-onderbouwing is verplicht voor 'nieuwe stedelijke ontwikkelingen'. Voordat getoetst wordt of een voorziene ontwikkeling 'nieuw' is, dient te worden getoetst of deze ontwikkeling kan worden aangemerkt als een 'stedelijke' ontwikkeling. De definitie van 'stedelijke ontwikkeling' is: ruimtelijke ontwikkeling van een bedrijventerrein of zeehaventerrein, of van kantoren, detailhandel, woningbouwlocaties of andere stedelijke voorzieningen (artikel 1.1.1 lid 1 sub i van het Bro).

In de definitie voor stedelijke ontwikkeling (artikel 1.1.1 lid 1 sub i van het Bro) is geen ondergrens opgenomen. Hieruit zou men kunnen concluderen dat iedere stedelijke ontwikkeling, hoe kleinschalig ook, valt binnen het toepassingsbereik van de Ladder. Echter, blijkt uit vaste jurisprudentie van de Afdeling, dat er wel sprake kan zijn van een voorziene ontwikkeling die te kleinschalig is om als nieuwe stedelijke ontwikkeling te kunnen worden aangemerkt. In de literatuur wordt er bij voorziene ontwikkelingen met betrekking tot woningbouw zelfs gesproken over een daadwerkelijke ondergrens.

Volgens vaste jurisprudentie zijn elf woningen (welke op één dezelfde locatie worden gerealiseerd) het maximale aantal woningen wat door de Afdeling als te kleinschalig wordt geacht om als een stedelijke ontwikkeling te kunnen worden gekwalificeerd (ABRvS 18-11-2015, ECLI:NL: RVS:2015:3542, r.o. 8.2.). Het minimale aantal woningen wat gerealiseerd moet worden (op dezelfde locatie) om als stedelijke ontwikkeling te worden gekwalificeerd is aldus twaalf (ABRvS 22-07-2015, ECLI:NL: RVS:2015:2329,r.o. 6.3).

Onderhavige ontwikkeling omvat de realisatie van 14 appartementen voor 1-2 persoonshuishoudens (senioren, starters) in het midden huursegment. Dat betekent dat de ontwikkeling moet worden aangewezen als een stedelijke ontwikkeling en dat toetsing aan de ladder voor duurzame verstedelijking derhalve dus aan de orde is. Er zal derhalve moeten worden aangetoond dat er een concrete behoefte bestaat voor de stedelijke ontwikkeling waarvoor in stedelijk gebied kan worden voorzien.

Behoefte

Het besluitgebied is gelegen binnen het stedelijk gebied van de kern van Beek. Er zal dus niet aangetoond hoeven te worden dat de behoefte in het stedelijk gebied kan worden voorzien. Wel zal de behoefte aan sich aangetoond moeten worden.

In het kader van onderhavige ontwikkeling is heel concreet deze behoefte reeds in het lokale beleid verankerd. Op basis van de regionale afspraken ten aanzien van de Structuurvisie Wonen Zuid Limburg en het besluit Volkshuisvesting is in het bestuurlijk overleg Wonen van 2 maart 2018 de (regionale) woningmarkt- programmering door de wethouders Wonen vastgesteld. Het initiatief binnen het besluitgebied is opgenomen in de programmering voor 14 appartementen ten behoeve van de transformatie van het voormalige politiebureau naar een wooncomplex. Het planvoornemen is reeds op 5 juni 2018 regionaal afgestemd en opgenomen in de subregionale woningbouwprogrammering van de Westelijke Mijnstreek. Daarmee is het initiatief reeds verankert in het regionale en gemeentelijke beleid. Daarmee is ook de behoefte geborgd. Met name het brede scala aan doelgroepen (1-2 persoonshuishoudens: senioren, starters) waarvoor de appartementen geschikt zijn speelt hierbij een rol. De te realiseren appartementen kunnen door bijna alle doelgroepen worden bewoond. Van starters of senioren tot een klein gezin of twee persoonshuishoudens (generatieneutrale woningen). Daarbij komt dat er een duidelijke behoefte is aan huur in het middensegment (factsheet: 'Blik op Middenhuur', regio Westelijke Mijnstreek). Door het hergebruik van bestaande bebouwing en deels nieuwbouw is geen sprake van nieuw ruimtebeslag. Geconcludeerd kan worden dat ten aanzien van het type woningen (huurwoningen in de midden huursector) gebouwd wordt voor de juiste doelgroep. Er is sprake van 'de juiste woning op de juiste plek'. Het planvoornemen voorziet daarmee in de lokale en regionale behoefte en deze behoefte is ook vastgelegd in het lokale en regionale beleid (woningmarktprogrammering 2018 - 2035).

4.3 Provinciaal beleid

4.3.1 Provinciaal omgevingsplan Limburg 2014

Op 12 december 2014 is door Provinciale Staten het Provinciaal Omgevingsplan 2014 (POL2014) vastgesteld. Het POL 2014 heeft vier wettelijke functies: structuurvisie (Wet ruimtelijke ordening), provinciaal milieubeleidsplan (Wet milieubeheer), regionaal waterplan (Waterwet) en het Provinciaal Verkeer- en Vervoersplan (Planwet verkeer en vervoer). In het POL 2014 komen alleen die zaken aan bod, die er op provinciaal niveau echt toe doen en die vragen om regionale oplossingen. Dat sluit aan bij de basisfilosofie en ook bij de aanpak van de rijksoverheid die zich beperkt tot een 13-tal nationale ruimtelijke belangen. Zo veel mogelijk ligt de verantwoordelijkheid bij gemeenten en andere partners die met lokale kennis prima maatwerk kunnen leveren.

In het POL staan de fysieke kanten van het leef- en vestigingsklimaat centraal. Belangrijke uitdagingen zijn het faciliteren van innovatie, het aantrekkelijk houden van de regio voor jongeren en arbeidskrachten, het versnellen van de energietransitie, de fundamenteel veranderde opgaven op het gebied van wonen en voorzieningen, de leefbaarheid van kernen en buurten en het inspelen op de klimaatverandering. De belangrijke principes in het Limburgse omgevingsbeleid zijn:

  • 1. Kwaliteit staat centraal. Dat komt tot uiting in het koesteren van de gevarieerdheid van Limburg onder het motto 'meer stad, meer land', het bieden van ruimte voor verweving van functies, in kwaliteitsbewustzijn, en in dynamisch voorraadbeheer dat moet resulteren in een nieuwe vorm van groeien. Algemene principes voor duurzame verstedelijking sluiten hierop aan, zoals de ladder van duurzame verstedelijking en de prioriteit voor herbenutting van cultuurhistorische en beeldbepalende gebouwen.
  • 2. Uitnodigen staat centraal. Dat gaat over de manier waarop de provincie, samen met de partners, dat voortreffelijke leef- en vestigingsklimaat willen realiseren. Met instrumenten op maat en ruimte om te experimenteren.

De grote variatie in omgevingskwaliteiten is een kenmerk en een sterk punt van Limburg. Om daaraan recht te doen, worden in dit POL zeven globaal afgebakende gebiedstypen onderscheiden. Dit zijn zones met elk een eigen karakter, herkenbare eigen kernkwaliteiten, en met heel verschillende opgaven en ontwikkelingsmogelijkheden. In het bebouwd gebied gaat het om de zones “bedrijventerrein”, “stedelijk centrum” en “overig bebouwd gebied” en in het landelijk gebied gaat het om de “goudgroene natuurzone”, de “zilvergroene natuurzone”, de “bronsgroene landschapszone” en het “buitengebied”. Voor het besluitgebied is bezien welk gebiedstype van toepassing is.

Het besluitgebied is gelegen binnen het bebouwd (stedelijk) gebied en binnen het de regio 'Wonen Zuid - Limburg'.

afbeelding "i_NL.IMRO.0888.PBRAADHUISPARK2-ON01_0014.png"

Uitsnede POL kaart met besluitgebied bij blauwe marker

Binnen het stedelijk bebouwd gebied ligt de focus op stedelijke functies en voorzieningen. Het accent ligt hier op de transformatie van de regionale woningvoorraad, de bereikbaarheid, de balans voorzieningen en detailhandel, stedelijk groen en water en kwaliteit leefomgeving.

In de visie op Zuid-Limburg zijn de belangrijkste uitgangspunten voor wonen: werken aan de kwaliteit van de bestaande voorraad door kwaliteitsverbetering, herstructurering (transformatieopgave zorgvastgoed en huursector) en waar nodig sloop en nieuwkomers (waaronder arbeidsmigranten). Maar ook het terugdringen van nog niet gerealiseerde plannen die niet bijdragen aan de beoogde vernieuwing.

Er is een verandere vraag naar woningen. Enerzijds is er een overschaot aan woningen, terwijl er anderzijds een impuls in de vorm van nieuwbouw nodig is om ook op de langere termijn de gevraagde kwaliteit te kunnen bieden. Deze kwalitatieve opgave moet, gezien de afnemende kwantitatieve vraag, vooral gerealiseerd worden in de bestaande woningvoorraad, waarbij nieuwbouw (uitbreiding dan wel vervanging) vooral moet worden ingezet om te voorzien in de vraag naar datgene waaraan ook op langere termijn het meest behoefte bestaat. In een gezamenlijk door de Zuid-Limburgse gemeenten overeengekomen structuurvisie voor Wonen wordt de detaillering bepaald, zoveel mogelijk gedifferentieerd naar segment en doelgroepen en gebaseerd op de kwalitatieve woonmilieubenadering. In de regionale structuurvisie Wonen Zuid-Limburg worden de keuzes verder uitgewerkt die op regionale schaal noodzakelijk zijn. Met het planvoornemen (herontwikkeling van leegstaand (voormalig) politiekantoor) is sprake van een ontwikkeling die past binnen het stedelijk gebied. Van belang is dat aangesloten wordt bij het accent voor de transformatie van de regionale woningvoorraad. In de volgende paragrafen wordt nader ingegaan op het provinciale en regionale woonbeleid en de wijze waarop het planvoornemen hier binnen past.

4.3.2 Omgevingsverordening Limburg 2014

Met het vaststellen van het provinciaal omgevingsplan is ook de Omgevingsverordening Limburg 2014 vastgesteld. Op basis van de omgevingsverordening blijkt dat het volkshuisvestingsbeleid strikter is geworden. In het kader van dynamisch voorraadbeheer is er nog slechts ruimte voor nieuwe toevoegingen aan de woningvoorraad als deze echt kwaliteit toevoegen én samengaan met het schrappen van slechte voorraad. Ten aanzien van de woningtoevoegingen is in de Omgevingsverordening Limburg 2014 opgenomen dat er in Zuid-Limburg géén nieuwe woningen mogen worden toegevoegd, tenzij deze passen in de bijbehorende beleidsregel kwaliteitscriteria. In de kwaliteitscriteria is het toevoegen van één woning als uitzondering benoemt. In onderhavig planvoornemen worden er 14 appartementen toegevoegd. Dit is daarmee in strijd met de in de Omgevingsverondering opgenomen volkshuisvestingsregels. Deze zijn meer geconcretiseerd in de regionale woningsafspraken (structuurvisie Wonen Zuid Limburg) waar onderstaand nader op in zal worden gegaan.

4.4 Regionaal beleid

4.4.1 Structuurvisie Wonen Zuid Limburg

Op 20 oktober 2016 is de Structuurvisie Wonen Zuid-Limburg vastgesteld door de gemeenteraad van Beek. Deze visie verwoordt de gezamenlijke aanpak van de Zuid-Limburgse gemeenten om te komen tot een excellent woon- en leefklimaat in Zuid-Limburg door een goed functionerende woningmarkt met aantrekkelijke, elkaar aanvullende woonmilieus. De driedelige opgave die de structuurvisie bevat is:

  • 1. het verdunnen van de bestaande voorraad waar sprake is van een overschot;
  • 2. het terugdringen van de (ongewenste) planvoorraad tot het niveau van de transformatieopgave en;
  • 3. het toevoegen van woonproducten waar een tekort aan is, passend binnen de uitgangspunten van de structuurvisie.

Om invulling te kunnen geven aan deze opgaven zijn een dertiental beleidafspraken gemaakt. Zo is onder meer afgesproken dat in een subregionale woningmarktprogrammering de toevoegingen en onttrekkingen op basis van de transformatieopgave per gemeente worden vastgelegd, wordt voorzien in het schrappen van harde plancapaciteit aan met name de randen van steden en kernen en in te zetten op herinvulling van cultuurhistorisch waardevol bestaand vastgoed. Tevens is voorzien in een compensatieregeling voor het toevoegen van nieuwe woningen. Deze compensatie regeling is opgenomen in de beleidsregel 'Financiële compensatie bij kleine woningbouwinitiatieven Zuid-Limburg'.

Het onderhavige initiatief is opgenomen in de woningmarktprogrammering 2018-2035 en voldoet daarmee aan de eisen voor Volkshuisvesting. Er is in deze programmering ruimte voor 14 appartementen. Deze worden middels het planvoornemen gerealiseerd.

Door de benoeming van het project in de lokale programmering is reeds rekening gehouden met dit plan in de subregionale programmering. De compensatie kan worden overgenomen door de gemeente. Doordat de gemeente het initiatief heeft opgenomen op de woningmarktprogrammering is initiatiefnemer niet ontheven van de plicht om voor de financiële compensatie te zorgen. Deze financiele compensatie zal bepaald worden op basis van de gemeentelijke beleidsregel 'Financiele compensatie bij kleine woningbouwinitiatieven Zuid-Limburg' (zie paragraaf 4.5.4).

4.5 Gemeentelijk beleid

4.5.1 Ondernemend Beek: veelzijdig en vitaal in Zuid - Limburg, Toekomstvisie 2010-2030

Op 10 december 2009 heeft de gemeenteraad de strategische toekomstvisie van de gemeente vastgesteld. Deze toekomstvisie beschrijft in hoofdlijnen de ambities en speerpunten van beleid tot 2030.

Als belangrijkste ontwikkeling de komende 20 jaar krijgt Beek, net als de andere gemeenten in haar omgeving, de komende jaren te maken met demografische krimp. Beek onderkent deze demografische ontwikkelingen en de financiële beperkingen die dit met zich meebrengt voor de gemeente. Het maken van keuzes is daarom noodzakelijk. Beek gaat niet actief inzetten op het van buiten aantrekken van nieuwe inwoners, maar wil een goede woon- en leefomgeving bieden voor haar huidige en toekomstige inwoners.

De leefbaarheid en het voorzieningenniveau, waar inwoners van Beek tevreden over zijn en die ze graag willen behouden, kunnen in de toekomst alleen op voldoende niveau blijven als Beek ook economisch krachtig blijft. Naast het goede woon- en leefklimaat is de bedrijvigheid, in combinatie met de goede bereikbaarheid via weg, spoor én lucht, de belangrijkste kracht van Beek.

Om ook in de toekomst goed te kunnen blijven wonen en leven zal Beek haar economische kracht verder moeten versterken. Een economisch krachtige gemeente biedt niet alleen een basis voor een evenwichtige bevolkingssamenstelling, maar daarmee ook een basis om de voorzieningen en sociale cohesie in de kernen op peil te houden. Om die voorzieningen binnen de gemeente te kunnen behouden zal gekozen worden om een aantal voorzieningen de komende jaren meer en meer te clusteren.


Het planvoornemen kan een duidelijke impuls geven aan deze doelstellingen. In de eerste plaats voorkomt het planvoornemen verpaupering en leegstand in de directe nabijheid van het centrum. In de tweede plaats voorziet het planvoornemen in de behoefte ten aanzien van appartementen voor een brede doelgroep, zoals ook aangetoond in de woningbouwprogrammering.

4.5.2 Structuurvisie Beek 2012 - 2022, Ruimte voor veelzijdigheid en vitaliteit

Op 22 maart 2012 heeft de gemeenteraad van Beek de Structuurvisie Beek 2012-2022 vastgesteld.

Centraal in de structuurvisie staat het streven van Beek om een goed woon-, leef- en werkklimaat te (kunnen) blijven bieden aan zowel de huidige als de toekomstige bewoners. Hoofddoel daarbij is behoud en versterking van een duurzame omgeving waarin het prettig wonen, werken en recreëren is, met oog voor wat Beek heeft en wil nalaten voor toekomstige generaties. Beek wil zich blijven ontwikkelen tot een eigentijdse maar authentieke woon-, werk- en leefgemeente, met voorzieningen op maat in elke kern en in een hoogwaardige, duurzame landelijke omgeving met blijvende en beleefbare natuurlijke, landschappelijke en cultuurhistorische kwaliteiten.

Gezien deze doelstellingen zijn de drie centrale ambities van Beek tot 2030:

  • Een ondernemende gemeente. Hieronder vallen de volgende subdoelen:
  • 1. in regionaal verband stimuleren van de bedrijvigheid en ondernemersklimaat;
  • 2. stimuleren kleinschalige bedrijvigheid in de kernen;
  • 3. versterken centrum Beek;
  • 4. bereikbaarheid op peil;
  • 5. versterken dagrecreatieve voorzieningen;
  • Aangenaam wonen en leven: Hieronder vallen de volgende subdoelen:
  • 1. kwaliteit van woon- en leefomgeving staat centraal;
  • 2. duurzame ontwikkeling van het buitengebied met grotere rol voor agrariërs;
  • 3. op termijn een clustering van voorzieningen; multifunctioneel gebruik van bestaande voorzieningen;
  • 4. vergroten van participatie van vitale en betrokken inwoners;
  • 5. inzet op sport, met speciale aandacht voor gehandicapten en senioren;
  • Dienstverlenend en actief naar de inwoners. Hieronder vallen de volgende subdoelen:
  • 1. proactieve houding richting ondernemers en inwoners;
  • 2. stimuleren van actieve betrokken inwoners en ondersteunen van initiatieven die binnen deze toekomstvisie passen.

Het planvoornemen draagt aanzienlijk bij aan het behalen van deze doelen. In de eerste plaats wordt het centrum van Beek versterkt door het voorkomen van verpaupering en leegstand. Ook krijgt de kwaliteit van de woon- en leefomgeving hierdoor een impuls, te meer omdat er wordt voorzien in de behoefte aan appartementen voor een breed scala aan doelgroepen. Het planvoornemen past daarmee binnen de structuurvisie.

4.5.3 Woonvisie Beek

Samen met de regiogemeenten, stakeholders en de Provincie heeft de gemeente Beek gewerkt aan de totstandkoming van de regionale ‘Structuurvisie Wonen Zuid-Limburg’. De Structuurvisie is bij raadsbesluit van 20 oktober 2016 vastgesteld en bepaalt de kaders op het gebied van wonen binnen de regio Zuid-Limburg. De Structuurvisie is een nadere uitwerking van het ‘Provinciaal Omgevingsplan Limburg 2014’ en de basis voor de gemaakte bestuurs-afspraken met de regiogemeenten en de provincie. Deze ‘Structuurvisie Wonen Zuid-Limburg’ is vervolgens lokaal uitgewerkt in de gemeentelijke ‘Woonvisie Beek 2019-2035’.

De Woonvisie heeft als doel om een woningvoorraad te bewerkstelligen die voldoet aan de huidige en toekomstige woonwensen van de inwoners van de gemeente Beek. Secundair doel naar aanleiding van de huishoudensdaling is het behouden en aantrekken van huishoudens (het zoveel als mogelijk voorkomen van leegstand).

De doelgroep ‘pensionados’ (alleenstaand of koppel) is sterk vertegenwoordigd in de gemeente Beek. Op dit moment (2020) bestaat deze doelgroep uit 35% van de huishoudens. Als we doorkijken naar 2035, dan zal deze doelgroep vele malen groter worden (groeien naar 51% van de huishoudens oftewel een behoefte aan 3.547 woningen). De woningvoorraad daarentegen bestaat voor het over grote deel uit eengezinswoningen Deze eengezinswoningen passen niet bij de kwalitatieve vraag die de gemeente in de nabije toekomst krijgt. De vervangings- of transformatieopgave van de bestaande woningvoorraad is de grootste uitdaging voor de gemeente. Nieuwbouw van woningen en sloop kunnen slechts een minimale bijdrage leveren aan deze uitdaging.

Binnen de Woonvisie wordt geconcludeerd dat nieuwe ontwikkelingen binnen het stedelijk weefsel, in of nabij centra moeten plaatsvinden. Door nieuwbouw aan de randen kan er immers uitholling van het centrum plaatsvinden wat negatieve gevolgen heeft voor de middenstand en voorzieningen. De Woonvisie geeft daarnaast aan dat er binnen de gemeente Beek een tekort is aan gelijkvloerse nieuwbouw woningen (appartementen of patio’s) gericht op gepensioneerden. Ook in het actuele aanbod staan er weinig woningen van dit type te koop. Er is derhalve een transformatie noodzakelijk van de bestaande voorraad. Door het realiseren van gelijkvloerse nieuwbouw woningen (appartementen of patio’s) gericht op 1-2 persoonshuishoudens (senioren, starters) wordt een doorstroming in de woningvoorraad op gang gebracht,

Er zijn teveel eengezinswoningen en te weinig woningen geschikt voor de groter wordende groep 50-plussers of starters (1-2 persoonshuishoudens). Hierdoor is er sprake van een kwalitatieve mismatch.

Het planvoornemen betreft een ontwikkeling nabij het centrum van Beek. In onderhavige situatie worden de appartementen gerealiseerd binnen het voormalige politiekantoor binnen bebouwd gebied. Hiermee wordt verpaupering en leegstand voorkomen. Daarnaast is het initiatief reeds opgenomen in de gemeentelijke woningbouwprogrammering.

4.5.4 Beleidsregel 'Financiele compensatie bij kleine woningbouwinitiatieven Zuid-Limburg'

De gemeenteraad heeft op 27 november 2017 de Beleidsregel 'financiële compensatie bij kleine woningbouwinitiatieven Zuid-Limburg'" vastgesteld. De beleidsregel is een uitvoeringsinstrument van de Structuurvisie Wonen Zuid-Limburg beschreven in paragraaf 3.4.1 waarmee het voor particulieren mogelijk blijft om woningtoevoegingen financieel te compenseren in plaats van fysieke compensatie door de sloop van een andere woning (1 woning erbij is 1 woning eraf). Aangezien particulieren vaak niet in staat zijn de fysieke compensatie te realiseren, zoals gesteld in paragraaf 3.3.2, kan de gemeente onder een aantal voorwaarden de sloopverplichting op zich nemen. De fysieke compensatie blijft in stand, maar wordt overgenomen door de gemeente.

Deze beleidsregel is van toepassing op kleine woningbouwinitiatieven tot maximaal 5 woningen. Op d.d. 21 maart 2019 is de beleidsregel 'Tijdelijke versoepeling van de compensatiesystematiek van de Structuurvisie Wonen Zuid-limbug'. vastgesteld in het bestuurlijk overleg Wonen Zuid-Limburg. (zie paragraaf 4.5.5) Deze tijdelijke versoepling van de compensatiesystematiek is op 27 juni 2019 door de gemeenteraad van Beek vastgesteld. Gezien het aantal van 14 appartementen kan deze versoepeling van de beleidsregel bij dit planvoornemen worden toegepast.

Voorafgaand aan de toepassing van de financiële compensatie vindt altijd een ruimtelijke beoordeling plaats om te beoordelen of het de juiste plaats is voor een woningtoevoeging en het de juiste woning betreft (de juiste woning op de juiste plaats). Slechts na het positief doorlopen van de ruimtelijke toets kan er sprake zijn van compensatie voor de woningtoevoeging. Voor particulieren blijft het met deze beleidsregels mogelijk om financieel te compenseren.

Conform de beleidsregel kunnen er nieuwe kwalitatief goede, woningbouwinitiatieven toegevoegd worden aan de subregionale woningbouwprogrammering indien een financiële bijdrage als sloopcompensatie wordt aangeboden. Tussen de initiatiefnemer en de gemeente zal in dit geval een privaatrechtelijke overeenkomst gesloten worden waarin overeengekomen wordt dat fysieke onttrekking niet mogelijk is gebleken en er een verplichting tot financiële bijdrage is.

De realisatie van de appartementen doet geen afbreuk aan het gemeentelijk beleid. De woningen dragen bij aan een goede woon- en leefomgeving in Beek alsmede aan het behoud en versterking van een duurzame omgeving waarin het prettig wonen, werken en recreëren is. De appartementen dragen bij aan het hergebruik en behoud van het voormalig politiekantoor. Verpaupering en leegstand in de directe nabijheid van het centrum wordt hiermee voorkomen. Het voormalig politiekantoor wordt ten behoeve van de te realiseren appartementen maximaal hergebruikt in combinatie met de uitbreiding van de bebouwing.

4.5.5 Beleidsregel 'Tijdelijke versoepeling van de compensatiesystematiek van de Structuurvisie Wonen Zuid-Limburg'

Op 27 juni 2019 heeft de gemeente Beek de beleidsregel 'Tijdelijke versoepeling van de compensatiesystematiek van de Structuurvisie Wonen Zuid-Limburg' vast gesteld. Deze beleidsregel treedt voor een periode van maximaal 2 jaar in werking, tenzij de evaluatie van de Structuurvisie Wonen Zuid-Limburg eerder wordt vastgesteld. Woningbouwinitiatieven die mogelijk worden gemaakt via deze versoepeling, dienen binnen 2 jaar te zijn vastgesteld en binnen 5 jaar te zijn gerealiseerd (vanaf het moment van toevoeging aan de subregionale woningmarktprogrammering). Woningbouwplannen die deze termijn niet halen, verliezen hun status op de subregionale woningmarktprogrammering. Deze regeling betreft een tijdelijke aanvulling op beleidsregel VI van de Structuurvisie Wonen Zuid-Limburg en kan niet met terugwerkende kracht worden ingezet.

Gedurende de periode van versoepeling van de compensatie worden woningbouwplannen beschouwd in vier categorieën. Voor elke categorie is aangegeven welke eventuele compensatie wordt verwacht. De reeds bestaande compensatiemogelijkheden blijven vigerend als invulling van de compensatie.

Het betreft de volgende vier categorieën:

  • Uitzonderingplannen - geen compensatie.
  • Kwalitatief goede plannen - licht compensatie regime.
  • Vernieuwingsplannen - verlicht compensatie regime.
  • Kwalitatieve verbetering van woningbouwplannen.

De herontwikkeling van het voormalig politiekantoor valt onder de categorie 'Kwalitatief goede plannen - licht compensatie regime'. Dit betreffen woningbouwplannen ter grootte van maximaal 25 woningen gericht op betaalbare levensloopbestendige sociale huurwoningen (maximaal € 720,42 per maand, voor met name starters) en middeldure huurwoningen (tot maximaal € 950,-- huur per maand) en vergelijkbare betaalbare levensloopbestendige koopwoningen voor starters (maximaal prijsniveau tot en met de startersleninggrens, provinciaal € 185.000,--) en voor senioren (tot maximaal NHG-grens € 290.000,-- VON).

Voorwaarde is wel, dat deze woningen gebouwd worden in de dorpskernen en de stedelijke centra. Dit in de lijn met de kaders van de Structuurvisie Wonen Zuid-Limburg en het Provinciaal Omgevingsplan Limburg.

De herontwikkeling van het voormalig politiekantoor blijft met 14 appartementen onder de grens van 25 woningen. Het betreffen huurwoningen in het middensegment voor (generatie neutrale woningen), senioren, starters, klein gezin dan wel 1-2 persoons huishoudens. Gezien de liggen nabij het gemeentehuis en andere functies is de locatie in de directe nabijheid van het centrum van Beek gelegen. Daarnaast is de realisatie binnen 5 jaar beoogd. Hiermee voldoet het planvoornemen aan de gestelde voorwaarden om voor de versoepeling van de beleidsregel in aanmerking te komen.

Hoofdstuk 5 Milieuaspecten

5.1 Inleiding

Milieubeleid wordt steeds meer ingebed in andere beleidsvelden. Verbreding van milieubeleid naar andere beleidsterreinen is dan ook een belangrijk uitgangspunt. Ook in de ruimtelijke planvorming is structureel aandacht voor milieudoelstellingen nodig. De milieudoelstellingen worden daartoe integraal en vanaf een zo vroeg mogelijk stadium in het planvormingsproces meegewogen. Een duurzame ontwikkeling van de gemeente is een belangrijk beleidsuitgangspunt dat zijn doorwerking heeft in meerdere beleidsterreinen.

5.2 Geluid

Voor nieuwbouwplannen geldt dat in het kader van de Wet geluidhinder (Wg) een akoestisch onderzoek noodzakelijk is indien de geluidgevoelige bestemmingen zijn gelegen binnen de zone van een weg, industrieterrein of het spoor. Aangetoond dient dan te worden dat de geluidsbelasting voldoet aan de wettelijke geluidgrenswaarde. Het betreft hier de realisatie van een woningbouwlocatie, die voorziet in de realisatie van 14 appartementen binnen bestaande (voormalig politiekantoor) dan wel nieuw te realiseren bebouwing. Bij een dergelijke ontwikkeling is er sprake van de realisatie van geluidgevoelige objecten als bedoeld in de Wet geluidhinder. Er dient derhalve te worden bezien in hoeverre kan worden voldaan aan de normen ten aanzien van wegverkeerslawaai, industrielawaai en (spoor)wegverkeerslawaai. De ontwikkeling is niet gelegen in de invloedszone van een spoorweg, echter wel in de zone van de Maastrichterlaan, industrieterrein Chemelot en Maastricht Aachen Airport (MAA).

In dat kader is er een akoestisch onderzoek wegverkeerslawaai, industrielawaai en luchtvaartlawaai uitgevoerd door Tritium, d.d. 5 maart 2020, met rapportnummer 1905/011/RV-02, versie 2 dat is bijgevoegd als Bijlage 1. Uit dit onderzoek is gebleken dat:

"Voor wegverkeerslawaai is het plan gelegen binnen de geluidzone van de wegen Maastrichterlaan, Wolfeynde, Stationstraat, Raadhuisstraat, Brugstraat en Adsteeg. Het plan is tevens gelegen aan 30 km/uur weg Raadhuispark. Het plan is tevens gelegen in de nabijheid van industrieterrein Chemelot en luchthaven Maastricht Aachen Airport.

Voor de gezoneerde wegen Wolfeynde, Raadhuisstraat, Brugstraat, Adsteeg en Stationstraat geldt dat de geluidbelasting ten gevolge van het wegverkeer op deze wegen de voorkeursgrenswaarde van 48 dB op geen enkele gevel van de appartementen overschrijdt.

Voor de 30 km/uur weg Raadhuispark geldt dat de geluidbelasting op de gevels van de appartementen de richtwaarde van 48 dB met maximaal 1 dB overschrijdt.

Voor de Maastrichterlaan geldt dat de geluidbelasting op de gevels van de appartementen de voorkeursgrenswaarde wel overschrijdt. De maximale ontheffingswaarde van 63 dB voor nieuwbouw in stedelijk gebied wordt nergens overschreden. Derhalve is het mogelijk om een beschikking hogere waarde aan te vragen bij de gemeente indien de toepassing van overdrachts- of bronmaatregelen gericht op het terugbrengen van de geluidbelasting onvoldoende doeltreffend is dan wel overwegende bezwaren ontmoet.

Het aanleggen van een geluidwal of geluidscherm (overdrachtsmaatregelen) gericht op het terugbrengen van de geluidbelasting ten gevolge van het wegverkeer tot de voorkeursgrenswaarde ontmoet in de onderhavige situatie overwegende bezwaren van stedenbouwkundige en landschappelijke aard. Het vergroten van de afstand tussen geluidbron en ontvanger is niet mogelijk in onderhavige situatie. Voor het toepassen van stiller wegdek (bronmaatregel) geldt dat de voorkeurgrenswaarde nog altijd wordt overschreden. Deze geluidreducerende maatregel is derhalve niet erg doeltreffend. Het toepassen van een stiller wegdek ontmoet bovendien overwegende bezwaren van financiële aard. Derhalve wordt onderbouwd verzocht hogere waarde te verlenen conform artikel 110a, lid 5 van de Wet geluidhinder.

Het plangebied is gelegen binnen de 50 tot 55 dB(A)-contour van industrieterrein Chemelot. De exacte geluidbelasting is bepaald door de zonebeheerder. De vastgestelde geluidbelasting bedraagt maximaal 51 dB(A). De hogere waarde is bepaald op de maatgevende gevel. Deze waarde geldt echter voor alle appartementen op de 1e en 2e verdieping. Maatregelen voor het reduceren van de geluidbelasting ten gevolg van het industrieterrein aan zowel de geluidbron als in de overdracht zijn niet mogelijk.

Conform opgave ligt het plan binnen de 35-36 Ke-contouren van luchthaven Maastricht Aachen Airport. Maatregelen voor het reduceren van de geluidbelasting ten gevolg van het luchtvaartverkeer aan zowel de geluidbron als in de overdracht zijn eveneens niet mogelijk.

Aangezien er voor onderhavige appartementen sprake is van een procedure hogere waarde ten gevolge van industrie-, luchtvaart- en wegverkeerslawaai dient te worden voldaan aan de eisen vanuit het bouwbesluit en is een aanvullend onderzoek ter bepaling van de geluidwering van de gevels nodig. Bij toepassing van de juiste geluidwerende materialen en maatregelen (conform een nader onderzoek) is vervolgens een goed akoestisch woon- en leefklimaat gewaarborgd."

Initiatiefnemer heeft bij de uitwerking van de ontwerpen van de appartementen (voor de activiteit bouwen) op basis van het nadere onderzoek de juiste geluidwerende materialen en maatregelen toegepast, zodat het akoestisch woon- en leefklimaat van de appartementen wordt gewaarborgd. Daarnaast is een ontheffing hogere waarde aangevraagd.

5.3 Luchtkwaliteit

Sinds 15 november 2007 vormt het aspect luchtkwaliteit uit de Wet milieubeheer de basis voor de besluitvorming in het kader van de Wet ruimtelijke ordening. Op basis van deze Wet luchtkwaliteit gelden milieukwaliteitseisen voor de luchtkwaliteit. Deze kwaliteitseisen zijn middels grenswaarden vastgelegd voor de luchtverontreinigingscomponenten stikstofdioxide (NO2), zwevende deeltjes (PM10 of fijn stof), zwaveldioxide (SO2), lood (Pb), benzeen (C6H6) en koolmonoxide (CO). De grenswaarden gelden overal in de buitenlucht. De Wet Luchtkwaliteit maakt onderscheid tussen projecten die 'Niet in betekenende mate' (NIBM) en 'In betekenende mate' (IBM) bijdragen aan de uitstoot van luchtverontreinigende stoffen.

In de regeling NIBM is een lijst met categorieën van gevallen opgenomen die NIBM zijn. Voor projecten die de hoeveelheid fijn stof en stikstofdioxide in de lucht met maximaal 3% verhogen hoeven geen aanvullende maatregelen getroffen te worden. Het project draagt dan niet in betekende mate (NIBM) bij aan de luchtverontreiniging. De NIBM-grens voor woningbouwlocaties is als volgt bepaald: 3% criterium = 1500 woningen (netto) bij minimaal één ontsluitingsweg, en = 3000 woningen bij minimaal twee ontsluitingswegen met een gelijkmatige verkeersverdeling. Dit houdt in dat de ontwikkeling op basis van de Wet Luchtkwaliteit niet in betekende mate bijdraagt aan aantasting van de luchtkwaliteit.

Het betreft hier de realisatie van slechts 14 appartementen ter plaatse van het voormalig politiekantoor dat reeds de nodige verkeersaantrekkende werking had als gevolg van het komen en gaan van personeel en het uitrukken van politieauto's. Ook in de tussenliggende periode heeft het voormalige politiekantoor altijd een functie gehad met verkeersaantrekkende werking. Door de transformatie naar wonen blijft de verkeersaantrekkende werking ongeveer gelijk, maar zal zeker niet substantieel toenemen . Daarnaast kan het planvoornemen gezien het beperkt aantal woningen ook worden aangemerkt als NIBM. Er zijn vanuit het aspect luchtkwaliteit dan ook geen belemmeringen aan de orde m.b.t. het planvoornemen.

5.4 Bodem

Uitgangspunt van een goede ruimtelijke ordening is dat de bodemkwaliteit geschikt is voor de beoogde bestemming en de daarin toegestane gebruiksvormen. Dit betekent dat het aspect bodemkwaliteit voor vrijwel alle nieuwe ontwikkelingen, die met ruimtelijke plannen mogelijk worden gemaakt, onderzocht moet worden.

Ten behoeve van het planvoornemen is een verkennend bodemonderzoek uitgevoerd door Tritium, d.d. 26 februari 2020, met rapportnummer 1904/286/MIB-01, versie A en bijgevoegd als bijlage 2. Uit dit verkennend bodemoderzoek is gebleken dat de onderzoeksresultaten geen beperkingen opleveren ten aanzien van het huidige en voorgenomen gebruik van het besluitgebied. Het onderzoeksbureau is van mening dat er geen belemmeringen zijn voor een bestemmingswijziging en voor de afgifte van een omgevingsvergunning voor de bouwactiviteiten.

Indien grond wordt afgegraven (bijvoorbeeld bij bouwwerkzaamheden) en van de locatie wordt afgevoerd, dient er rekening mee te worden gehouden dat deze grond elders niet zonder meer toepasbaar is. Met betrekking tot het elders hergebruiken van grond zijn de regels van het Besluit bodemkwaliteit van toepassing, die doorgaans een grotere onderzoeksinspanning vereisen.

5.5 Externe veiligheid

Het algemene rijksbeleid voor externe veiligheid is gericht op het beperken en beheersen van risico's voor de omgeving vanwege: het gebruik, de opslag en de productie van gevaarlijke stoffen (inrichting), het transport van gevaarlijke stoffen (openbare wegen, wateren spoorwegen, buisleidingen), het gebruik van luchthavens. Externe veiligheid heeft betrekking op de veiligheid van degenen die niet bij de risicovolle activiteit zelf zijn betrokken, maar als gevolg van die activiteit wel risico's kunnen lopen, zoals omwonenden. Het beleid is onder andere verankerd in het Besluit externe veiligheid inrichtingen (Bevi), de bijbehorende Regeling externe veiligheid inrichtingen (Revi) en verder uitgewerkt/toegelicht in o.a. de Handleiding Externe Veiligheid Inrichtingen en de Handreiking Verantwoordingsplicht Groepsrisico. Voor het vervoer van gevaarlijke stoffen is het beleid opgenomen in de zogenaamde 'Wet Basisnet', dat op 1 april 2015 in werking is getreden. Deze bestaat uit de Wet vervoer gevaarlijke stoffen, het Besluit externe veiligheid transportroutes en de Regeling Basisnet.

In het externe veiligheidsbeleid staan twee doelen centraal: de bescherming van individuen tegen de kans op overlijden als gevolg van een ongeluk en de bescherming van de samenleving tegen het ontwrichtende effect van een ramp met een groter aantal slachtoffers; respectievelijk het plaatsgebonden risico (PR) en het groepsrisico (GR). Het plaatsgebonden risico van een bepaalde activiteit is de kans per jaar op een bepaalde plaats, dat een continu daar aanwezig gedacht persoon die onbeschermd is, komt te overlijden als gevolg van eenmogelijk ongeluk met die activiteit. Het groepsrisico is de kans per jaar dat in één keer een groep mensen van een bepaalde omvang komt te overlijden bij een ongeval met gevaarlijke stoffen. Voor het groepsrisico is geen norm gesteld. Uit het vigerende beleid, zoals onder andere vastgelegd in het Bevi, geldt een verantwoordingsplicht. Iedere verandering (af- of toename) van het groepsrisico moet inzichtelijk worden gemaakt en worden voorzien van een onderbouwing (verantwoording groepsrisico).

Betekenis voor besluitgebied

Hierna is een uitsnede van de risicokaart toegevoegd.

afbeelding "i_NL.IMRO.0888.PBRAADHUISPARK2-ON01_0015.png"

Uitsnede risicokaart met rode marker het besluitgebied.

Hieruit blijkt ten aanzien zien van inrichtinen, buisleidingen en transport van gevaarlijke stoffen het volgende.

Inrichtingen

Het benzinestation Vossendal langs de A2 in het zuiden en de gasleiding met een gasdrukregel- en meetstation in het noorden (beide aangeduid op de kaart) zijn op voldoende afstand, respectievelijk 610 en 650 meter gelegen. Het invloedsgebied van deze inrichtingen is niet van invloed op het besluitgebied gezien de afstand van meer dan 600 meter. De risicovolle inrichtingen vormen derhalve geen belemmeringen voor het planvoornemen.

Buisleidingen

Op ongeveer gelijke afstand als het gasdrukregel- en meetstation is de hogedruk aardgasleiding Z-530-02 gelegen. Het besluitgebied bevindt zich niet binnen de 1% (= 45 meter) en 100% (= 30 meter) letaliteitsafstand en vormt derhalve geen belemmeringen voor het plan.

Transport over wegen, spoor en water

Water

Het maximaal invloedsgebied van het transport van gevaarlijke stoffen over waterwegen bedraagt 1.070 meter. Het Julianakanaal ligt op meer dan 2,0 kilometer afstand en vormt derhalve geen belemmering voor het plan.

Spoor

De spoorlijn Lutterade - Visé (B) is gelegen op een afstand van meer dan 1.000 meter van het besluitgebied. Over het spoortraject vinden conform het Basisnet transporten uit de stofcategorieën A (brandbaar gas), B2 (toxisch gas), C3 (zeer brandbare vloeistof) en D3 (toxische vloeistof) plaats. De maatgevende 1% letaliteitsafstand wordt hierbij veroorzaakt door toxisch gas (B2), zijnde 995 meter. Geconstateerd kan worden dat het planvoornemen buiten het invloedsgebied ligt van de spoorlijn Luttarade - Visé (B).

Weg

Transport van gevaarlijke stoffen vindt niet plaats door de kern Beek. het dichtst bijzijnde transport van gevaarlijke stoffen vindt plaats over de rijksweg A2 en A76. Deze wegen zijn respectievelijk op ongeveer 600 meter en 2000 meter gelegen van het besluitgebied. Gelet op de grote afstand tussen het besluitgebied en de voornoemde wegen, is het plaatsgebonden risico en het plasbrandaandachtsgebied in geval van de A2 geen aandachtspunt voor het planvoornemen. Daarnaast bevinden de wegen zich op meer dan 200 meter afstand van het planvoornemen, waardoor de invloed van het plan op de hoogte van het groepsrisico niet middels een berekening inzichtelijk hoeft te worden gemaakt. Wel ligt het planvoornemen binnen het invloedsgebied van de A2. Conform de telgegevens van Rijkswaterstaat worden over de A2 de stofcategorieën LF1, LF2, LT1, LT2, LT3, GF2, GF3, GT3 en GT4 getransporteerd. De stoffen LT3 en GT4 hebben de grootste 1% letaliteitsafstand, zijnde > 4.000 meter. Het planvoornemen ligt derhalve binnen het invloedsgebied van de A2. Conform de telgegevens van Rijskwaterstaat is het invloedsgebied van de A76 eveneens > 4.000 meter op basis van de stof LT3. Het planvoornemen ligt hiermee binnen het invloedsgebied van de A76. Op basis van het gestelde in artikel 8 van het besluit externe veiligheid transportroutes dienen de risico's als gevolg van de transporten met gevaarlijke stoffen over de A2 en de A76 te worden meegenomen in een beperkte verantwoording van het groepsrisico.

Het bestuur van de veiligheidsregio Zuid-Limburg dient in de gelegenheid te worden gesteld om advies uit te brengen over een ramp of zwaar ongeval en over de zelfredzaamheid van personen binnen het planvoornemen. Op 8 juni 2020 heeft de veiligheidsregio advies (bijlage 3) uitgebracht. Geadviseerd wordt om de volgende maatregelen te nemen om de effecten van eventuele scenario's te minimaliseren en/of de zelfredzaamheid van aanwezige te vergroten:

  • Het object uitvoeren met een afsluitbare ventilatie die centraal kan worden gestuurd. De ventilatieopeningen (aanzuiging) dienen (indien mogelijk) niet aan de zijde van de risicobronnen (A2, A76) te worden aangebracht.

Conclusie

De externe veiligheidsrisico's als gevolg van het transport van gevaarlijke stoffen over het spoor, de weg, door buisleidingen en door inrichtingen veroorzaken geen harde beperkingen voor het plan. Het besluitgebied is wel gelegen binnen het invloedsgebied van de Rijksweg A2 en A76. Hiermee dienen de risico's als gevolg van het transport van gevaarlijke stoffen over de weg meegenomen te worden in een beperkte verantwoordingsplicht van het groepsrisico. Hiertoe dient het bevoegd gezag bij besluitvorming het bestuur van de Veiligheidsregio Zuid-Limburg in de gelegenheid te stellen om advies uit te brengen over een ramp of zwaar ongeval en over de zelfredzaamheid van personen binnen het plan.

5.6 Verantwoordingsplicht groepsrisico

Met het invullen van de verantwoordingsplicht wordt antwoord gegeven op de vraag in hoeverre externe veiligheidsrisico's in het besluitgebied worden geaccepteerd en welke maatregelen getroffen zijn om het risico zoveel mogelijk te beperken. Het invullen van de verantwoordingsplicht is een wettelijke taak van het college van burgemeester en wethouders van de gemeente Beek. Door de verantwoordingsplicht wordt het externe veiligheidsaspect meegewogen bij het maken van ruimtelijke keuzes.

Het Besluit transportroutes externe veiligheid (Bevt) geeft de veiligheidsregio een wettelijke adviestaak bij het invullen van de verantwoordingsplicht voor de onderdelen bestrijdbaarheid en zelfredzaamheid.

Inhoud verantwoordingsplicht

In onderhavige situatie is sprake van een beperkte verantwoordingsplicht voor de weg. Het Bevt geeft een opsomming van onderdelen die in ieder geval in de verantwoording van het groepsrisico dienen te worden opgenomen. De verantwoording dient in te gaan op de volgende onderdelen:

  • 1. De mogelijkheden tot voorbereiding van bestrijding en beperking van de omvang van een ramp of zwaar ongeval;
  • 2. De mogelijkheden van personen die zich bevinden in het invloedsgebied van de risicobron om zichzelf in veiligheid te brengen.

Het besluitgebied is in de huidige situatie bestemd als maatschappelijke doeleinden. Het beoogde planvoornemen voorziet in de realisatie van 14 appartementen in de bestaande bebouwing in combinatie met de nieuw te realiseren vleugel. Het besluit gebied bevindt zich op grote afstand tot de risicobron (A2 en A76). Vanwege de grote afstand tot de risicobron zal een toename van personendichtheden niet significant doorwerken in de rekenkundige hoogte van het groepsrisico. De beschouwing van het groepsrisico en de verantwoording daarvan is om deze reden volledig kwalitatief uitgevoerd.

Het maatgevende scenario voor de A2 en A76 is het toxisch scenario. Effecten als gevolg van een plasbrand of BLEVE reiken niet tot het besluitgebied. Het bestrijdbaarheid vraagstuk op deze grote afstand van de risicobron speelt niet. Bestrijding vindt plaats bij de bron.

Blootstelling aan een toxisch gas is het bepalende scenario. In geval van een calamiteit dienen personen te schuilen. De mate waarin deze bouwwerken afsluitbaar zijn tegen indringing van toxisch gas en de tijdsduur dat deze bouwwerken worden blootgesteld zijn hierbij parameters.

Bouwwerken zijn doorgaans goed geïsoleerd, waardoor ze een goede bescherming bieden tegen het binnendringen van het toxisch gas. Belangrijk is wel dat de ventilatievoorzieningen / luchtbehandelingsinstallaties snel kunnen worden uitgeschakeld of worden gesloten.

Daarnaast dient in geval van een calamiteit tijdig gewaarschuwd te worden. Dit gebeurt door het in werking stellen van het WAS (landelijk Waarschuwing Alarm Systeem, voorheen luchtalarm genaamd) in als onderdeel van de algemene Rampenbestrijding.

Conclusie

Geconcludeerd wordt dat er vanuit het oogpunt van externe veiligheid geen belemmeringen zijn voor de planrealisatie binnen het besluitgebied. Aandacht moet worden besteed aan de volgende punten:

  • Er moet gezorgd worden voor een snelle alarmering in geval van een ongeluk op de A2 en A76.
  • Er dient rekening te worden gehouden met een incident met een giftige wolk (vanaf A2 en A76). Luchtbehandelingsinstallaties / ventilatievoorzieningen moeten snel kunnen worden uitgeschakeld of worden gesloten.

Bovengenoemde aandachtspunten zijn niet wettelijk afdwingbaar maar kunnen in onderling overleg met de eigenaar genomen worden. De aspecten bestrijdbaarheid en zelfredzaamheid dienen voor advies te worden voorgelegd aan de Veiligheidsregio Zuid-Limburg. Dit advies dient de gemeente Beek mee te nemen in haar verantwoording van het groepsrisico.

5.7 Flora en Fauna

5.7.1 Inleiding

Bij elk ruimtelijk plan moet, met het oog op beschermenswaardige natuurwaarden, rekening worden gehouden met de regelgeving op het gebied van gebiedsbescherming en soortenbescherming en nagegaan worden of er schade wordt toegebracht aan beschermde dier- en plantensoorten.

5.7.2 Gebiedsbescherming

De bescherming van Natura 2000-gebieden is geregeld in de Wet natuurbescherming, die de implementatie vormt van de Europese Vogelrichtlijn en Habitatrichtlijn. De Natura 2000-gebieden vormen samen een Europees netwerk van natuurgebieden: Natura 2000. Als ontwikkelingen (mogelijk) leiden tot aantasting van natuurwaarden binnen een Natura 2000-gebied, moet een vergunning worden aangevraagd. Gedeputeerde staten van de provincie zijn het bevoegd gezag voor verlening van deze vergunning. Indien eerst een omgevingsvergunning wordt aangevraagd voor een activiteit waarvoor tevens een vergunning op grond van de Wet natuurbescherming is vereist, dan haakt de natuurtoets aan bij de omgevingsvergunning.

Verder moet rekening worden gehouden met het beleid ten aanzien van het Natuurnetwerk Nederland (NNN). De regels met betrekking tot het NNN zijn opgenomen in de provinciale verordening. Ten aanzien van ontwikkelingen binnen het NNN geldt het 'nee, tenzij-principe'.

Het besluitgebied ligt buiten de begrenzing van het NNN. De provincie limburg hanteert geen externe werking als het gaat om NNN. In de omgeving van het besluitgebied op een afstand van ongeveer 2,2 km bevindt zich, op relatief korte afstand, het dichtstbijzijnde Natura2000-gebied Bunder- en Elsloërbos. Gezien de beperkte aard van de ingreep (gedeeltelijk sloop en verbouwing van een bestaand pand binnen de bebouwde kom) valt een significant effect echter niet te verwachten.

Een toename van stikstofdepositie op Natura 2000-gebieden ten gevolge van de ontwikkeling kan ook worden uitgesloten. Uit de notitie 'Beoordeling stikstof (bijlage 4) blijkt voor de realisatie- en gebruiksfase respectievelijk het volgende.

Conclusies realisatiefase

  • Uit een analyse van de maximale emissies NOx ten aanzien van mobiele werktuigen en maximaal aantal verkeersbewegingen is gebleken dat emissies tot 91 kg NOx/ jaar voor mobiele werktuigen en 368 zware verkeersbewegingen per jaar niet leiden tot een toename (>0,00 mol/ha/jaar) van de stikstofemissie op nabijgelegen Natura 2000 gebieden.
  • Uit de inschatting van de emissieniveaus tijdens de realisatiefases blijkt dat deze beiden onder de voornoemde maximale emissieniveaus blijven, namelijk 38,3 kg NOx/ jaar ten aanzien van de inzet van mobiele werktuigen en ca. 60 zware verkeersbewegingen, 180 middelzware verkeersbewegingen en 190 lichte per jaar.
  • Ten aanzien van de inzet van mobiele werktuigen komt de gemiddelde emissie NOx/jaar neer op ca. 2,74 kg. Op basis van de handreiking ‘Handreiking Woningbouw en Aerius’ van de Rijksoverheid wordt aangegeven dat de gemiddelde emissie voor woningbouw in Nederland op ca. 3 kg NOx/jaar ligt. De inschattingen in deze notitie zijn derhalve in lijn met het gestelde in de notitie ‘Handreiking woningbouw en Aerius’ en zijn daarmee een betrouwbare weergave van de werkelijkheid.
  • De daadwerkelijke emissieniveaus tijdens deze realisatiefase zijn ter controle ook nog ingevoerd in de Aerius calculator en bijgevoegd in bijlage 3. Uit deze berekening kan geconcludeerd worden dat er geen stikstofdepositie hoger dan 0,00 mol/ha/jaar optreedt op nabijgelegen Natura 2000 gebieden.
  • Rekening houdend met voorgaande conclusies kunnen significant nadelige effecten op Natura2000-gebieden ten gevolge van de realisatiefase worden uitgesloten.

Conclusies gebruiksfase

  • De stookemissies in de gebruiksfase bedragen ca. 9,4 kg NOx/jaar en de maximale verkeersgeneratie in de gebruiksfase bedraagt maximaal 77 verkeersbewegingen per etmaal.
  • Rekening houdend met voorgaande conclusies kunnen significant nadelige effecten op Natura2000-gebieden ten gevolge van de gebruiksfase worden uitgesloten.

Op basis van voorgaande conclusies leidt het bouwplan (realisatie en de gebruiksfase) niet tot een toename van stikstofdepositie op Natura 2000-gebieden. Negatieve effecten van stikstof op de instandhoudingsdoelen van Natura 2000-gebieden kunnen op basis hiervaan met zekerheid worden uitgesloten, waardoor een vergunning in het kader van de Wet natuurbescherming niet vereist is.

5.7.3 Soortenbescherming

De bescherming van dier- en plantensoorten is eveneens in de Wet natuurbescherming geregeld. In deze wet zijn drie beschermingsregimes opgenomen: voor vogels in de zin van de Vogelrichtlijn, voor dier- en plantensoorten uit de Habitatrichtlijn en voor overige soorten. Kort gezegd is het verboden om beschermde diersoorten opzettelijk te doden, te vangen of te verstoren. Hun voortplantings- en rustplaatsen mogen niet (opzettelijk) worden beschadigd of vernield. Verder is het verboden beschermde plantensoorten te vernielen. Onder voorwaarden is ontheffing van de verbodsbepalingen mogelijk. Het bevoegd gezag voor het verlenen van een ontheffing zijn gedeputeerde staten van de provincie. Als eerst een omgevingsvergunning wordt aangevraagd, dan haakt de ontheffing op grond van de Wet natuurbescherming daarbij aan.

Het voormalige politiekantoor waarin de realisatie van de appartementen is beoogd is momenteel nog steeds in gebruik. Het besluitgebied is gelegen in de bebouwde omgeving van de kern Beek. Het perceel is volledig bebouwd dan wel verhard. Gezien de 'stenige' omgeving zijn er met de realisatie van de appartementen geen natuurwaarden in het geding.

5.8 Bedrijven en milieuzonering

Het besluitgebied is gelegen in een gemengd gebied met verschillende functies in de nabijheid van het centrum van de kern Beek. Ten aanzien van de functie detailhandel geldt dat er op ca. 40 meter een supermarkt is gelegen. Op basis van de VNG brochure: 'Bedrijven en milieuzonering' wordt een dergelijke functie aangemerkt als een milieucategorie 1 bedrijf met een grootste afstand van 10 meter ten aanzien van geluid. Door de ligging in een gemengd gebied mag deze grootste afstand met een trap verlaagd worden tot 0 meter. Aangezien de afstand tussen het bedrijf en het besluitgebied meer dan 30 meter bedraagt zijn de bedrijfsactiviteiten van dit bedrijf niet van invloed op het planvoornemen. Omgekeerd vormt de realisatie van de woning geen belemmering voor deze supermarkt gezien de afstand en het feit dat reeds andere woningen op kortere afstand gelegen zijn. Deze woningen zijn maatgevend voor de betreffende detailhandelsbestemming.

Aan de achterzijde van het besluitgebied bevindt zich het gemeentehuis van de gemeente Beek. Deze maatschappelijke voorziening (openbaar bestuur) is vergelijkbaar met een kantoorfunctie en wordt aangemerkt als een milieucategorie 1 bedrijf met eveneens een grootste afstand van 10 meter ten aanzien van geluid. Ook hiervoor geldt dat deze grootste afstand met een trap verlaagd kan worden tot 0 meter.

Aan de overzijde van de Maastrichterlaan zijn een aantal winkels (fietswinkel, scooters) en horecagelegenheid (café) gelegen. Dergelijk functies worden ook als een milieucategorie 1 bedrijf aangemerkt met een grootste afstand van 10 meter ten aanzien van geluid. Door de gemengde omgeving geldt hiervoor ook een afstand van 0 meter.

Deze functies in de directe omgeving van het besluitgebied vormen hiermee geen belemmering voor het planvoornemen. Het woon- en leefklimaat van de te realiseren appartementen wordt gewaarborgd.

Het voormalige politiepand aan het Raadhuispark 2 is sinds enige tijd in gebruik als dierenkliniek. Deze functie c.q. activteiten worden beeindigd ten behoeve van het planvoornemen. Het realiseren van 14 appartementen leidt niet tot een belemmering voor de omgeving. Er is juist sprake van een kwaliteitsverbetering ter plaatse omdat een woonfunctie juist past in de aanwezige woonomgeving.

Ook omgekeerd vormen de te realiseren appartementen geen belemmering voor de genoemde functies in de omgeving. De afstand tot het besluitgebied en het feit dat er reeds woningen op korte afstand gelegen zijn tot deze functies zijn maatgevend voor de situatie.

5.9 Kabels en leidingen

In of nabij het besluitgebied liggen geen kabels en leidingen die ten behoeve van het gebruik en/of de veiligheid planologische bescherming behoeven en daarmee een belemmering voor het planvoornemen betekenen. Wel zijn in het straatprofiel van het Raadhuispark de huisaansluiting voor gas, water en electra gelegen. Het voormalige politiekantoor is hierop aangesloten.

5.10 Archeologie en cultuurhistorie

5.10.1 Archeologie

Sinds 1 september 2007 is de nieuwe wet op de archeologische monumentenzorg (Wamz) van kracht. Hiermee geeft de rijksoverheid uitvoering aan de implementatie van het Europese Verdrag van Valletta ("Malta") uit 1993 dat beoogt het cultureel erfgoed in de bodem beter te beschermen. Met de inwerkingtreding van de Wamz krijgt de gemeente Beek een eigen verantwoordelijkheid voor het bodemarchief (veelal aangeduid als 'archeologische zorgplicht'). De kern daarvan is dat de gemeente verplicht is om archeologische waarden en verwachtingen van meet af aan volwaardig mee te laten wegen in ruimtelijke plannen. Doel is om archeologische waarden zoveel mogelijk in de grond te bewaren. Pas als dat niet mogelijk is, dienen de archeologische waarden door middel van een opgraving veiliggesteld te worden. Daarbij geldt het "veroorzaker-principe": de initiatiefnemer (bodemverstoorder) betaalt de kosten van archeologisch onderzoek.

Een verantwoord beheer van het archeologisch bodemarchief in de gemeente kan niet zonder een gedegen inzicht in de ligging van alle bekende archeologische waarden en verwachtingen. Daartoe is de archeologische beleidskaart van de gemeente Beek gemaakt. In feite gaat het om twee kaarten: de Archeologische Verwachtingskaart en de Archeologische Beleidsadvieskaart, die zijn vastgesteld door de gemeenteraad in mei 2009.

De Archeologische Verwachtingskaart geeft, op basis van een analyse van landschappelijke en archeologische informatie, een vlakdekkend overzicht van alle bekende en verwachte archeologische waarden op het grondgebied van de gemeente Beek. Zes soorten archeologische gebieden zijn onderscheiden.

Op de Archeologische Advieskaart zijn aan de verschillende archeologische gebieden beleidsadviezen gekoppeld. Voor de verwachtingsgebieden (categorie 1-4) en de gebieden met bekende waarden (categorie 5 en 6) wordt voorgesteld om initiatiefnemers van toekomstige bodemingrepen te verplichten tot het (laten) uitvoeren van onderzoek naar de archeologische waarde van het terrein.

afbeelding "i_NL.IMRO.0888.PBRAADHUISPARK2-ON01_0016.png"

Uitsnede archeologische verwachtingskaart met besluitgebied in rode cirkel

Het besluitgebied is aangeduid met de rode cirkel en is gelegen in een gebied met monumenten met een hoge verwachtingswaarde. In dat kader is voor het besluitgebied een dubbelbestemming opgenomen 'waarde - archeologie 3'. In deze dubbelbestemming is bepaald dat bodemingrepen met een grootte van meer dan 2.500 m2 en dieper dan 0,3 meter een archeologisch onderzoek behoeven.

Het planvoornemen behelst de realisatie van 14 appartementen in een bestaand politiekantoor waarbij er slechts één vleugel nieuw aangebouwd moet worden. Deze ingreep omvat een oppervlakte kleiner dan 2.500 m2 en derhalve is een archeologisch onderzoek niet noodzakelijk. Indien tijdens de werkzaamheden toch archeologisch waardevolle elementen worden aangetroffen zullen deze uiteraard worden veiliggesteld.

Het aspect archeologie vormt dan ook geen belemmering voor het planvoornemen.

5.10.2 Cultuurhistorie

Per 1 januari 2012 is de Modernisering Monumentenzorg (MoMo) in Werking getreden. Als gevolg van de MoMo wijzigt het Bro (artikel 3.6.1, lid 2). Wat eerst alleen voor archeologie gold, geldt nu ook voor al het cultureel erfgoed. In een bestemmingsplan dient een beschrijving te worden opgenomen hoe met de in het gebied aanwezige cultuurhistorische waarden en in de grond aanwezige of te verwachten monumenten rekening is gehouden.

De verlener van de omgevingsvergunning en het daarbij behorende besluit is daarmee dus verplicht om breder te kijken dan alleen naar het facet archeologie. Ook de facetten historische (stede)bouwkunde en historische geografie dienen te worden meegenomen in de belangenafweging. Hierbij gaat het om zowel beschermde als niet formeel beschermde objecten en structuren.

Het voormalige politiekantoor is niet aangemerkt als een rijks- dan wel gemeentelijk monument. Verder heeft de bestaande bebouwing geen cultuurhistorische waarden en is op dat gebied ook niet beeldbepalend. De te realiseren appartementen worden binnen de bestaande bebouwing van dit pand gerealiseerd, waarbij er één extra vleugel zal worden gerealiseerd. De uiterlijke verschijningsvorm zal uiteraard worden afgestemd op de gemeentelijke welstandsnormen en de omgeving.

Het aspect cultuurhistorie vormt dan ook geen belemmering voor het planvoornemen.

5.11 Waterparagraaf

5.11.1 Beleid ten aanzien van waterhuishouding

Waterwet 

Op 22 december 2009 is de Waterwet in werking getreden. Een achttal wetten is samengevoegd tot één wet, de Waterwet. De Waterwet regelt het beheer van oppervlaktewater en grondwater, en verbetert ook de samenhang tussen waterbeleid en ruimtelijke ordening. Daarnaast levert de Waterwet een flinke bijdrage aan kabinetsdoelstellingen zoals vermindering van regels, vergunningstelsels en administratieve lasten. Een belangrijk gevolg van de Waterwet is dat de huidige vergunningstelsels uit de afzonderlijke waterbeheerwetten worden gebundeld. Dit resulteert in één vergunning, de watervergunning.

Nationaal waterplan 

Het doel van dit als structuurvisie te beschouwen plan is het zodanig omgaan met de waterhuishouding dat ook latere generaties veilig en welvarend van de ruimte gebruik kunnen maken. Bescherming tegen droogte en wateroverlast, maar ook het zorgen voor een goede waterkwaliteit zijn hierbij van groot belang. Door bij ruimtelijke ontwikkelingen rekening te houden met waterhuishoudkundige eisen op korte en lange termijn kan een duurzaam en klimaatbestendig watersysteem bereikt worden.

Provinciaal waterplan 2016-2021

Het Provinciaal Waterplan 2016-2021 is de opvolger van het Provinciaal Waterplan 2010-2015 en heeft de status van een regionaal waterplan, als bedoeld in artikel 4.4 van de Waterwet en is daarmee voor de ruimtelijke aspecten tevens een structuurvisie op grond van de nieuwe Wet ruimtelijke ordening. Het is een uitwerking en verdere detaillering van het regionaal waterbeleid in het POL2014, noodzakelijk om verdere invulling te geven aan het provinciale waterbeleid en om aan de vereisten van de KRW en de Waterwet te voldoen. Na inwerkingtreding van de Omgevingswet zal het waterplan de status hebben van een provinciaal waterprogramma, als bedoeld in artikel 3.7 van het ontwerp van de Omgevingswet.

Het Provinciaal Waterplan 2016-2021 is dus tevens een onderdeel van het tweede Nationale Stroomgebiedbeheersplan Maas dat door het Rijk is opgesteld op grond van de Kaderrichtlijn Water. Het Provinciaal Waterplan bevat specifieke ambities en beleidsregels gericht op de rechtstreekse doorwerking en uitvoering van het provinciaal waterbeleid richting waterschap en gemeenten als kader voor het operationele Waterbeheerplan van het waterschap en het gemeentelijk waterbeleid.

Waterschap Limburg

Waterschap Roer en Overmaas en Waterschap Peel en Maasvallei hebben het Waterbeheerplan 2016-2021 vastgesteld. Zo konden zij, alvast vooruitlopend op de fusie in 2017 naar Waterschap Limburg, alvast invulling geven aan gezamenlijk waterbeheer. Met dit Waterbeheerplan zetten de waterschappen de koers uit voor een toekomstbestendig waterbeheer in Limburg; hoe invulling wordt geven aan de taak om te zorgen voor veilige dijken, droge voeten en voldoende en schoon water. In dit plan is vastgelegd hoe het watersysteem en waterkeringen op orde worden gebracht en gehouden. Beschreven is voor welke thema’s het waterschap aan de lat staat, de strategie hiervoor, welke maatregelen worden uitgevoerd, wie de partners daarin zijn en hoe dit wordt gemonitord om waar nodig bij te sturen. Ook staat hierin welke bijdrage de waterschappen leveren aan de Europese Kaderrichtlijn Water. Voorbeelden van maatregelen zijn: het aanleggen en verbeteren van dijken tegen overstromingen, het aanpakken van knelpunten van wateroverlast, herstellen van beken en het verbeteren van de effluentkwaliteit van de rioolwaterzuiveringsinstallaties. In het beleid van het waterschap staat centraal dat een duurzaam waterhuishoudkundig systeem dient te worden gerealiseerd. Concreet betekent dit dat sprake moet zijn van gescheiden schoon- en vuilwaterstromen die afzonderlijk worden verwerkt. Daarbij gelden de volgende uitgangspunten:

  • afkoppelen van 100% van het verhard oppervlak, waarbij de beslisboom verantwoord afkoppelen van toepassing is;
  • de trits vasthouden-bergen-afvoeren is van toepassing, waarbij hergebruik dan wel infiltratie van schoon regenwater de voorkeur heeft;
  • verontreiniging van het water dient door bronmaatregelen te worden voorkomen;
  • grondwateroverlast dient voorkomen te worden;
  • een gelimiteerde afvoer naar het oppervlaktewater is toegestaan.

Beleidsplan Afvalwater Westelijke Mijnstreek (2015-2020

In dit beleidplan is beschreven waar de gemeente Beek staat en naar toe wil ten aanzien van de zorgplicht inzake hemelwater. Het doel is een doelmatig en duurzame omgang met hemelwater. De strategie om dit doel te bereiken is om samen met inwoners dan wel initiatiefnemers in te spelen op klimaatverandering, o.a. door bij nieuwbouw hemelwater op eigen terrein te verwerken.

In aanvulling hierop heeft het college op 27 oktovber besloten om de uitvoeringsnotitie 'Verwerekn hemelwater particulier terrein bij nieuwbouw' Westelijke Mijnstreek vast te stellen. Deze uitvoeringsnotitie geeft invulling aan in wetgeving en gemeentelijk beleid verankerde voorschriften voor particulieren aangeaande de verwerking van hemelwater. Daarin ligt vast dat een initiatiefnemer bij nieuwbouw (en verbouw) zijn hemelwater op eigen terrein dient te verwerken. In deze notitie is het beleid en de invulling daarvan weergegeven, inclusief een referentiesysteem. Dit referentiesysteem dient als handreiking voor de praktische uitvoering van relatief kleine initiatieven, zoals in onderhavige situatie. Voor bouwplannen van grotere omvang worden tevens uitvoeringsrandvoorwaarden gesteld voor het duurzaam waterbeheer. In de Westelijke Mijnstraake wordt door de gemeente samengewerkt in het waterbeheer, waardoor deze notitie dan ook is opgestled door en voor de regio.

In navolging op de uitvoeringsnotitie heeft de gemeente Sittard-Geleen de flyer 'Regenwater verwerken binnen perceelsgrens' opgesteld met een bijbehorende voorbeeldtekening voor het ontwerp van de hemelwatervoorziening.

afbeelding "i_NL.IMRO.0888.PBRAADHUISPARK2-ON01_0017.png"

Voorbeeldtekening

Volgens dit principe moet het hemelwater binnen het besluitgebied opgevangen worden en worden geinfiltreerd in de bodem.

5.11.2 Waterhuishoudkundige situatie

Uit de legger van het waterschap Limburg blijkt dat in of in de directe omgeving van het besluitgebied geen primaire watergangen zijn gelegen. Ten zuiden en oosten van het besluitgebied is op enige afstand de primaire watergang Keutelbeek met bijbehorende beschermingszone gelegen. Gezien de afstand is het planvoornemen hierop niet van invloed.

afbeelding "i_NL.IMRO.0888.PBRAADHUISPARK2-ON01_0018.png"

Leggerkaart Waterschap Limburg met besluitgebied bij ronde punt en Keutelbeek in blauw

Het besluitgebied is in de huidige situatie volledig verhard en aangesloten op het gemengde rioolstelsel. De appartementen worden deels gerealiseerd binnen de bestaande bebouwing van het voormalig politiekantoor en deels binnen de te realiseren nieuwe vleugel ter plaatse van huidige verharding. De waterhuishoudkundige situatie blijft hierdoor ter plaatse ongewijzigd, met dien verstande dat de appartementen wel voorzien worden van een gescheiden stelsel. Het hemelwater wordt daarmee afgekoppeld en dient op eigen terrein verwerkt te worden met een overstort voor extreme situaties.

Om de haalbaarheid van infiltratie van het hemelwater in de bodem is een infiltratieonderzoek (Geonius, documentnummer GA200229.RO1.V1.0, d.d. 10 april 2020) uitgevoerd en is tevens de noodzakelijke dimensionering van de infiltratievoorziening bepaald. Daarvoor wordt verwezen naar hoofdstuk 5 en 6 van bijlage 5. Uit de gemeten doorlatendheden en grondwaterstand blijkt dat infiltratie van hemelwater tot de mogelijkheden behoort. De doorlatendheid van de ondergrond is voldoende. Geadviseerd wordt een infiltratievoorziening in de ondiepe ondergrond door middels van bijvoorbeeld kratten en/of grindkoffers. Tevens is een gecombineerde voorziening bestaande uit infiltratiekratten met daaronder grindpalen beschouwd. Het aantal kratten kan hiermee beperkt worden.

Op basis van de gehanteerde uitgangspunten is berekend welke dimensionering de infiltratievoorziening minimaal moet hebben om aan de eisen te voldoen (680 m2 x 0,08 = 54,4 m3) en of de infiltratievoorziening daarmee aan de ledigingstijd voldoet.

afbeelding "i_NL.IMRO.0888.PBRAADHUISPARK2-ON01_0019.png"

Afmetingen infiltratievoorzieningen: infiltratiekratten

afbeelding "i_NL.IMRO.0888.PBRAADHUISPARK2-ON01_0020.png"

Situering infiltratiekratten (onder parkeerplaatsen)

Het hemelwater van het bestaande, te verbouwen gebouwdeel wordt aangesloten op de bestaande riolering. Voor de opvang van het hemelwater van de nieuwbouw in combinatie met de bestrating en parkeerplaatsen is gekozen voor kratten (met leegloopvoorziening). Deze worden gesitueerd onde de aan te leggen parkeerplaatsen aan de voorzijde van de bebouwing.

Verder dient de infiltratievoorziening van een noodoverstort te worden voorzien. Bij (eventuele) zeer intensieve buien (T>100), zal de infiltratievoorziening het toestromende hemelwater mogelijk niet kunnen verwerken en kan het hemelwater gecontroleerd naar elders afstromen. Er wordt gekozen voor een ondergrondse overstort op het gemeentelijk riool, welke wordt voorzien van een terugslagklep.

5.11.3 Riolering

Het voormalige politiekantoor is aangesloten op de reeds aanwezige riolering van het Raadhuispark. Deze situatie wijzigt niet. Het afvalwater wordt via het riool afgevoerd naar de regionale RWZI.

Hoofdstuk 6 Haalbaarheid

6.1 Inleiding

Naast het toetsen van een omgevingsvergunning in afwijking van het bestemmingsplan aan diverse milieu- en veiligheidsaspecten, dient de omgevingsvergunning ook getoetst te worden aan de uitvoerbaarheid van het planvoornemen. Hierbij wordt gekeken naar de economische uitvoerbaarheid en de maatschappelijke uitvoerbaarheid.

6.2 Financiële haalbaarheid

Het betreft hier een private ontwikkeling waarbij het risico geheel gedragen wordt door de initiatiefnemer, tevens eigenaar. Dit wordt geregeld door middel van een anterieure overeenkomst met de gemeente Beek. In deze overeenkomst wordt de aan de gemeente te betalen financiële bijdrage op grond van de woningbouwcompensatie, bijdrage parkeerfonds en exploitatiebijdragen vastgelegd. Bovendien zal in deze overeenkomst de afwenteling van eventuele planschadeclaims worden geregeld.

Voor de gemeente Beek zelf zijn er geen kosten verbonden aan de verwezenlijking van het plan. Op grond van het voorgaande kan worden geconcludeerd dat de economische en financiële uitvoerbaarheid van het project voldoende is gegarandeerd.

6.3 Maatschappelijke haalbaarheid

Het planvoornemen betreft de realisatie van 14 appartementen in een voormalig politiekantoor aan het Raadhuispark 2 te Beek. Hierdoor komt de maatschappelijke functie, c.q. kantoorfunctie te vervallen. Er is hierdoor sprake van een kwaliteitsverbetering voor de omliggende woningen. De appartementen worden tevens grotendeels gerealiseerd binnen de bestaande bebouwing. Er zal één vleugel worden aangebouwd. De ruimtelijke structuren zulllen hierdoor niet substantieel wijzigen.

Aangezien het planvoornemen ruimtelijk gezien zorgt voor een kwaliteitsverbetering (voorkoming van verpaupering en leegstand) en de appartementen invulling geven aan de lokale behoefte naar dergelijke appartementen, mag aangenomen worden dat tegen het planvoornemen geen overwegende bezwaren bestaan. De ruimtelijke onderbouwing wordt echter wel conform de procedure die voor het verkrijgen van de vereiste omgevingsvergunning moet worden doorlopen, ter inzage gelegd.

6.4 Conclusie

Het planvoornemen zal gezien het bovenstaande niet leiden tot overwegende planologische bezwaren. Onderhavige afwijking van het bestemmingsplan betekent, na een afweging van de verschillende belangen, een aanvaardbare invulling van het besluitgebied en het voorkomen van verpaupering en leegstand aan het Raadhuispark 2 te Beek.

Hoofdstuk 7 Procedure

7.1 De te volgen procedure

Deze ruimtelijke onderbouwing is opgesteld als onderdeel van en ten behoeve van de realisatie van 14 appartementen in het voormalige politiekantoor van de gemeente Beek en de hiervoor noodzakelijke omgevingsvergunning als bedoeld in artikel 2.12, eerste lid, onder a, onder 3 Wabo. Voor de procedure van een dergelijke omgevingsvergunning geldt dat afdeling 3.4 Algemene wet bestuursrecht (Awb) van toepassing is. Dit maakt dat de volgende stappen doorlopen moeten worden:

  • a. Verklaring Van Geen Bedenking (VVGB) raad: deze is niet noodzakelijk aangezien bij besluit van 10 februari 2011 geen verklaring noodzakelijk is voor het bouwen van woningen met dien verstande dat het bouwplan voorziet in maximaal 30 grondgebondenof gestapelde woningen.
  • b. Voorbereiding: mogelijk vooroverleg met overheidsinstanties, zijnde betrokken diensten van rijk, provincie en andere belanghebbende.
  • c. Ontwerp: publicatie en terinzagelegging ontwerpbesluit. Een ieder kan gedurende deze terinzagelegging een zienswijze indienen.
  • d. Vaststelling: vaststelling door bevoegd gezag. Publicatie en terinzagelegging verleende omgevingsvergunning gedurende de beroepstermijn.
  • e. Inwerkingtreding: na afloop van de beroepstermijn (tenzij een verzoek om voorlopige voorziening is ingediend.
  • f. Beroep: beroep bij Afdeling bestuursrechtspraak van de Raad van State.

7.2 Watertoets

Het waterschap Limburg heeft medegedeeld dat ruimtelijke ontwikkelingen met een verhard oppervlak minder dan 1000 m² en die niet in een aandachtsgebied liggen niet meer ten behoeve van het vooroverleg hoeven te worden voorgelegd aan het watertoetsloket.

In onderhavige situatie is het oppervlak van het perceel minder dan 1000 m² en vindt de realisatie van de appartementen binnen het voormalige politiekantoor in combinatie met een nieuw te realiseren vleugel plaats. Het verhard oppervlak blijft als gevolg van het planvoornemen ongewijzigd en neemt niet toe. Verder zijn er geen belangen van het waterschap in het geding. Het planvoornemen is dan ook aan te merken als een klein plan en heeft daarmee geen of nauwelijks invloed op de waterhuishouding. In dat kader wordt onderhavige ruimtelijke onderbouwing dan ook niet voorgelegd aan het watertoetsloket in het kader van de watertoets.